
Archivos diarios: 22 de mayo, 2022
Postal nº 308

Para visualizar la imagen en mejor resolución VER AQUÍ
ALGO MÁS SOBRE LA POSTAL Nº 308

Es inevitable percibir a través de la imagen que recoge el espacio central de la quinta “Mágica” de Alejandro Pietri (1924-1992) que engalana nuestra postal del día de hoy, la presencia de la fantasía y la imaginación desbordada que en diversas ocasiones mostró este talentoso arquitecto venezolano a lo largo de su trayectoria. El uso del color tanto en la cubierta acristalada que filtra y refleja la luz, como en los peldaños de la impactante escalera en caracol que protagoniza el ambiente y cerramientos del mismo, su verticalidad y proporciones, a lo que se suma el tratamiento de los diversos elementos presentes entre los cuales destacan las esbeltas columnas que sostienen en parte los niveles superiores, remiten por un lado a la arquitectura islámica y por el otro al barroquismo que siempre vinculó a Pietri con su maestro en la Facultad de Arquitectura de la Universidad de Oklahoma: Bruce Goff.
Esta obra, cuyo proyecto fue realizado en el año 1990, terminó de construirse en 1992 poco después del fallecimiento de su autor, por lo que puede ser considerada como obra póstuma. El encargo provino de un sobrino de Pietri y la finalización le correspondió llevarla a cabo al constructor Iñaki Odriozola.

Ubicada en una parcela de 2.383,8m² en la calle Vicuña del Valle Arriba Golf Club en Caracas, la quinta “Mágica” se concibe en torno al espacio que hemos descrito y su escalera, la más importante de una serie de ellas que aparecen a lo largo de la planta, comunica el área social y los diferentes niveles directamente con la terraza jardín que funge de remate y desahogo del edificio. De allí cuelgan una serie de plantas ubicadas en jardineras que aportan otro toque particular al espacio a doble altura cubierto por la cúpula central. Los niveles intermedios fueron destinados a albergar las zonas privadas y sus servicios de apoyo siempre cuidando el contacto e integración con el exterior.


La “Mágica” conforma junto a “La Margarita” (su vivienda personal ubicada en San Román, de 1963) y la “Girahara” (diseñada también para su sobrino Andrés Sosa Pietri en Santa Paula, 1970) una trilogía residencial que los arquitectos dominicanos Omar Rancier y Juan Mubarak en el texto “Alejandro Pietri. Un arquitecto redescubierto”, publicado en https://arquitexto.com/2019/04/alejandro-pietri/, no dudarán en calificar como “fantástica de antología”. Y añadirán: “En estas tres residencias es que se evidencia de una manera más clara la influencia de Bruce Goff por la imaginería y los efectos aleatorios en términos de materiales, luces y parafernalia. La Mágica, convertida en su legado póstumo, es arquitectura en su más profunda expresión lúdica, las vidrieras, las rejas, los muros, la conformación de sus espacios es poesía tridimensional y exagerada. Las imágenes de este exuberante diseño basta para explicar la bizarría de Pietri”.
Por otro lado, la quinta «Mágica» cierra un interesante recorrido vital que se hizo visible, permitiéndonos determinar su envergadura, gracias al libro Alejandro Pietri. Arquitecto, de Silvia Hernández de Lasala en colaboración con Alfredo Brillembourg Tamayo, publicado en 1995 por la Fundación A.S.P.


La obra de Pietri “redescubierta” en República Dominicana por el interés que despertó el rescate del pabellón venezolano por él diseñado para la Feria de la Paz y Confraternidad del Mundo Libre de 1955 realizada en ese país, ha permitido ratificar la condición de arquitecto “difícil” o “incómodo” que en su momento develara la publicación del libro dedicado a su obra. En particular, el ya mencionado Omar Rancier, decano de la Facultad de Arquitectura y Artes de la Universidad Nacional Pedro Henríquez Ureña (UNPHU), en la página ya señalada de Arquitexto que se dedicó a rescatar y sensibilizar sobre la obra de Pietri, firma, a modo de colofón luego de repasar su trayectoria, apoyándose en el libro de Hernández de Lasala, un discutible artículo titulado “Lo fractal en la arquitectura de Pietri”, de donde hemos decidido extraer los siguiente: “En los últimos años hemos estado interesados por la geometría de la naturaleza y sus posibles aplicaciones a la arquitectura y al urbanismo. Pocas veces hemos encontrado un arquitecto con un catálogo tan avanzado en los términos que actualmente conocemos como teoría fractal o de la filosofía contemporánea aplicada a la arquitectura como el que encontramos en Pietri. Todas las formas de iteración fractal o de autosemejanza estructural, así como los pliegues deleuzianos los descubrimos en la sombrilla organicista en que se forma y en la cual se regodea Pietri en su obra que data de muchos años antes de que Mandelbrot popularizara su interesante propuesta de una geometría alternativa. Y esto lo explica Brillembourg sin la más mínima conciencia de ello cuando escribe: ‘En todos los proyectos de Alejandro, bien sean estructurados de forma circular o una combinación de éstas, existe un desinterés por la demanda convencional de la simetría’”.
Pietri, alineado como mencionáramos con la arquitectura organicista y bizarra de Goff, “de alguna forma, continua la tradición personalísima y barroca de Antonio Gaudí” comentará Rancier. A ellos podrían sumarse en un segundo nivel sus preferencias (de cuando estudiaba en Oklahoma entre 1947 y 1950) manifestadas por Frank Lloyd Wright, Eric Mendelson y Oscar Niemeyer. Y, en tercer lugar, aparecerían Le Corbusier y Mies van der Rohe producto de las enseñanzas impartidas por Carlos Raúl Villanueva, Martín Vegas y José Miguel Galia cuando termina su carrera en 1955 en la Facultad de Arquitectura y Urbanismo de la UCV.

Se podría decir que prácticamente recién graduado se presenta lo más prolífico e interesante de la producción arquitectónica de Pietri. En tiempos de dictadura será el encargado de proyectar las estaciones de Maripérez y El Cojo (Macuto) del Teleférico al Ávila (1956), tres pabellones con los que Venezuela estaría representada en sendas ferias internacionales: dos de ellos construidos (Bogotá -1954- y Santo Domingo -1955-) y uno no construido (Damasco -1957-), y será el encargado de proponer el plan maestro y proyectar las más importantes edificaciones a partir de 1956 para la frustrada Exposición Internacional que se llevaría a cabo en Caracas en 1960.

Tres edificios residenciales de Pietri pueden encontrarse dentro del paisaje urbano caraqueño con acentos muy diferentes en cuanto a lo que proponen, lo que habla sin duda de su versatilidad: el Centro Residencial Plaza en Los Palos Grandes (1970), el edificio Moros I en la urbanización San Antonio (1971) y el edificio Los Morochos en El Paraíso (1956), este último toda una lección en el manejo espacial y estructural de la tipología, digno de ser tomado en cuenta.
Pietri, reiterará Rancier, “es uno de los ‘arquitectos difíciles’ cuya obra, incomprendida se ha olvidado, y que se comienza a descubrir y colocar en el sitial que se merece, como sucedió en su momento con Terragni o con Asplund, por mencionar dos arquitectos europeos revalorizados al ser redescubiertos”.
ACA
Procedencia de las imágenes
Postal, 1, 2, 3 y 6. Silvia Hernández de Lasala. Alejandro Pietri. Arquitecto, 1995
4. Colección Crono Arquitectura Venezuela
5. https://arquitexto.com/2019/04/alejandro-pietri/
7. Colección Crono Arquitectura Venezuela y Colección Fundación Arquitectura y Ciudad
¿SABÍA USTED…
… que en 1955 se concluyen los trabajos de remodelación de la Plaza La Candelaria?

Dentro de lo que fue la ampliación del damero fundacional de Caracas, consistente en la prolongación directa de las calles y en dar igual medida a la dimensión de las manzanas, se registra ya en el idealizado “Plan de la Ciudad de Caracas, con división de sus Barrios” de 1775 de Joseph Carlos de Agüero, la presencia al extremo este, próximo a la quebrada Anauco que establecía el límite urbano, del señalamiento “Par. de Candelaria”. Dicha señal fue colocada junto a lo que parecía ser una iglesia dentro de un sector que por su color azul establecía la existencia de la Parroquia Candelaria, una de las ocho divisiones proporcionales en las que se dividió la ciudad, gestionada cada una por el correspondiente “alcalde de barrio”. Como bien señalan Iván González Viso y Federico Vegas al referirse al plano de 1775 en el ensayo “Historia de Caracas a través de sus planos”, que sirve de introducción a Caracas del valle al mar. Guía de arquitectura y paisaje (2015): “Cada uno de estos ‘barrios’ mantiene las mismas proporciones, funciones y leyes de crecimiento que el resto de la trama, incluyendo una plaza y una iglesia en su centro. Existe un criterio urbano de continuidad, homogeneidad y legibilidad entre las partes y el todo. Al mismo tiempo, el caraqueño encuentra una unidad de menor escala a la cual referirse. Es un ciudadano y también un vecino, un parroquiano”.


Y es que, en efecto, ya desde mucho antes, en el sector que se constituyó en parroquia en 1750, se había ido congregando una comunidad conformada por un importante número de oriundos de las Islas Canarias (a quienes se les denominaba “blancos de orilla”), la cual formó parte fundamental dentro de la estructura social colonial y cuya patrona justamente dio el nombre a la parroquia. En tal sentido, el 14 de diciembre de 1708 se finaliza, con la participación de maestros de cantería emigrantes de “las islas”, la construcción de la iglesia de Nuestra Señora de La Candelaria, iniciada en 1703, costeada por venezolanos naturales del archipiélago español, quienes ya habían traído desde allá una imagen de la virgen. Frente al templo, casi al unísono, se definió una plaza que tomó el mismo nombre y, hacia finales de siglo, se consiguió que el gobernador Juan Guillelmi ordenara la construcción allí de una fuente, con el objetivo que los pobladores de la zona no tuvieran que recorrer largas distancias en busca de agua potable.

Luego del terremoto de 1812 y durante las guerras de Independencia y Federal, la parroquia tuvo por muchos años una imagen de devastación y ruinas. La recuperación comenzó durante el gobierno de Antonio Guzmán Blanco, reconstruyéndose en la Candelaria, entre otras edificaciones, la iglesia, colocándose al frente de la obra a los ingenieros Pablo Miguel González, Lorenzo Melencio Osío, Jesús Muñoz Tébar, Santiago Aguerrevere, Juan Hurtado Manrique y Pablo Castillo quienes refaccionaron la fachada entre 1868 y 1872 y, respetando su planta rectangular, la dotaron de una distribución espacial de tres naves divididas entre sí por columnas de orden dórico. Cabe añadir que el templo ya se había desplomado en 1742 lo que ameritó su reconstrucción y tras el sismo de 1766 sufrió daños importantes a los que se sumaron los ocasionados en 1812.

Desde su creación, la plaza de La Candelaria había servido como lugar de encuentro, para realizar corridas de toros y para la celebración de fiestas de la comunidad canaria o sus descendientes que, como ya señalamos, era una de las colonias más numerosa de entre los españoles que poblaban mayoritariamente el sector. Luego de la Independencia las corridas se terminaron en la plaza y sólo se celebraban fiestas patrias. En 1895, con motivo del centenario del nacimiento del General José Gregorio Monagas (a quien correspondió abolir definitivamente la esclavitud en el país en 1854), se decidió cambiarle el nombre a “Plaza de la Democracia”. Años después la estatua pedestre de Monagas erigida entonces en el espacio fue desmontada y la plaza retornó a su nombre original.

A raíz de la realización de las obras que entre 1952 y 1953 convirtieron la avenida Este-Oeste 1 en avenida Urdaneta, fue demolida la edificación que por años ocupó el frente norte de la plaza La Candelaria, entre las esquinas de Candilito y Urapal, dándose origen a la creación de la plaza Urdaneta a modo de ampliación de aquella. Finalizado en 1955, el proyecto realizado por los arquitectos José Miguel Galia y Martín Vegas con la colaboración del arquitecto suizo Richard Binggeli, buscó la integración de ambos espacios: el correspondiente a la Urdaneta se plantearía pavimentado, con carácter ceremonial, urbano, y estaría presidido por una escultura del prócer realizada por Francisco Narváez (1905-1982); el de La Candelaria tendría connotaciones más locales, prevalecería la sombra ofrecida por la vegetación y estaría destinado darle desahogo a la iglesia y al descanso, recreación y disfrute de la comunidad de los alrededores.
El alcance del proyecto realizado por Vegas & Galia, de 4.460 m2, incluyó un estacionamiento subterráneo para 300 vehículos, un pequeño edificio que funciona como concha acústica y la Jefatura Civil de la parroquia, construida al lado de la iglesia.

Con respecto a la estatua ecuestre de Urdaneta realizada por Narváez, hemos sabido por el portal https://iamvenezuela.com/2015/08/estatua-ecuestre-de-rafael-urdaneta-de-francisco-narvaez/ que se ejecutó en 1952, y que “el artista se trasladó a Pistoia, Italia, donde vivió durante 6 meses mientras supervisaba su fundición. Esta estatua originalmente estaba destinada a la Plaza O’Leary, que inicialmente se iba a llamar Plaza Urdaneta. Se le contrató a Narváez en 1949 para El Silencio. Sin embargo, en vista de que para ese momento se construía también la Avenida Urdaneta (ensanchando la Avenida Este-Oeste 1), se decidió ubicarla en una Plaza anexa a la tradicional Plaza La Candelaria. Es así como la estatua de Narváez se ve finalmente erigida en la Nueva Plaza Urdaneta”.

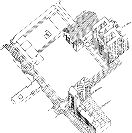
Las plazas de La Candelaria y Urdaneta constituyen el gran vacío de la manzana que abarca las esquinas de La Cruz, Candilito, Urapal y Alcabala. Los llenos están conformados por la iglesia, la jefatura civil, una serie de pequeños edificios ubicados sobre la avenida Urdaneta y la avenida Sur 15 (entre Alcabala y Urapal, ubicados al este de la calle de servicios que permite el acceso a la iglesia), y el edificio París (1948, esquina de Alcabala) del arquitecto Luis Malaussena, también rodeado por otra calle que sirve a la plaza y a la iglesia.

Recordemos que el nombre dado a la esquina de Alcabala recuerda cómo en la colonia allí existió una de las cinco estaciones de control y pago de peaje que daba entrada y salida a la ciudad. Sería solo en 1776 que se logró construir un poco más adelante el Puente Anauco el cual permitió el paso hacia el este del valle. A principios del siglo XX, allí estuvo una de las estaciones del tranvía que conectaban con el centro y con la terminal Santa Rosa del Ferrocarril Central de Venezuela.
Como es de todos conocido, en el presbiterio de la Iglesia de Nuestra Señora de La Candelaria reposan desde 1975 (traslados desde el Cementerio General del Sur) los restos del Dr. José Gregorio Hernández, recientemente canonizado como beato el 30 de abril de 2021 y parte importante de la devoción venezolana. La decisión de llevar las cenizas del “Médico de los pobres” a este templo tiene que ver con requerimientos solicitados por la Santa Sede para su proceso de canonización (iniciado en 1949 y ratificado en 1972 cuando se le concedió, como primer paso, el título de Siervo de Dios), con su veneración en las Islas Canarias y con el hecho de que Doña Josefa Cisneros, madre del ilustre y piadoso médico, era de origen canario.

Para finalizar, añadir que en 2002 se inició un programa de refracción de la Plaza Urdaneta por iniciativa de la Alcalía Metropolitana y la Fundación Francisco Narváez, y que en 2016 al espacio se le sustituyó el pavimento original y se eliminaron las pocas jardineras y bancos que poseía acrecentando, si cabe, su condición inhóspita.
Por su parte, la iglesia de Nuestra Señora de La Candelaria afectada en 1967 por el terremoto de Caracas fue posteriormente reparada, registrándose su más reciente restauración en 2013 a cargo de la Dirección de Patrimonio de la Cancillería de la República.
Además, en la plaza, frente al templo, fue develado en 1973 un busto del educador y escritor José Manuel Núñez Ponte, obra del escultor Santiago Poletto. Núñez Ponte fue autor en 1924 de la biografía de José Gregorio Hernández.
El 2 de agosto de 1960 la iglesia de La Candelaria es declarada Monumento Nacional, declaratoria extendida a todos los templos construidos antes de 1830, mediante Resolución de la Junta Nacional Protectora y Conservadora del Patrimonio Histórico y Artístico de la Nación.
ACA
Procedencia de las imágenes
2 y 5. https://curadas.com/2021/10/21/la-candelaria-historia-de-una-patrona-que-se-convirtio-en-parroquia/
3. https://curadas.com/2021/10/21/la-candelaria-historia-de-una-patrona-que-se-convirtio-en-parroquia/ y https://www.pinterest.de/pin/290200769720892485/
4. https://www.pinterest.com/pin/384917099385654365/ y https://uma.edu.ve/periodico/2018/03/29/nuestra-senora-candelaria/
6 y 8. http://guiaccs.com/obras/plaza-la-candelaria-o-plaza-urdaneta/
7. https://iamvenezuela.com/2015/08/estatua-ecuestre-de-rafael-urdaneta-de-francisco-narvaez/, http://estatuasdecaracas.blogspot.com/2010/05/general-rafael-urdaneta.html y https://mapio.net/pic/p-45939280/
9. http://guiaccs.com/planos/el-plano-de-mendoza-solar/, https://www.researchgate.net/figure/Figura-26-Primeros-perfiles-topograficos-del-Valle-de-Caracas-Revenga-y-Mendez-1852_fig4_260017256 y http://guiaccs.com/planos/ultimo-plano-de-razetti/
10. Colección Fundación Arquitectura y Ciudad
NOVEDADES EDITORIALES DE AQUÍ Y DE ALLÁ

Golconde
The Introduction of Modernism in India
Pankaj Vir Gupta, Christine Mueller, Cyrus Samii
Actar Publishers
2021
Segunda edición
Idioma: inglés
Sinopsis
Golconde es un logro arquitectónico asombroso. Con delicadeza técnica y artesanía extraordinaria, ofrece un testimonio vivo del credo modernista original: la arquitectura como la unión manifiesta de tecnología, estética y reforma social.
Aquí existe una visión pura de un Modernismo tropical totalmente triunfante, construido durante los años tumultuosos de la Segunda Guerra Mundial.
Mira Nakashima, la hija de George Nakashima, contribuye con un nuevo ensayo de introducción de 800 palabras para esta nueva edición.
ACA
NOVEDADES EDITORIALES DE AQUÍ Y DE ALLÁ

NOVEDADES EDITORIALES DE AQUÍ Y DE ALLÁ
Le Corbusier, catalogue critique des dessins
Tome II
Début de l’activité picturale (1917-1928)
Danièle Pauly
AAM Editions/Fondation Le Corbusier
2022
Idioma: francés
Sinopsis
Entre octubre de 1902 y mayo de 1965, Le Corbusier realizó varios miles de dibujos, a menudo de rara belleza. Unos 5.000 de ellos se conservan en la Fundación Le Corbusier y los demás en colecciones públicas y privadas. Ediciones AAM, en colaboración con la Fundación Le Corbusier, comenzó su publicación en cuatro volúmenes a partir de 2019. El segundo volumen recorre los inicios de su actividad pictórica (1917-1928), desde su instalación en París y sus bodegones hasta los del Music-hall y en particular de Joséphine Baker.
ACA