… que en julio de 1983 se completa la restauración y el cambio de uso del antiguo Ministerio de Educación, ubicado en la esquina El Conde, Caracas?

Cuando el elegante edificio que hoy ocupa el noreste de la esquina de El Conde en el casco central de Caracas fue proyectado y calculado por los ingenieros Guillermo Salas y Armando Vegas en 1934, decretándose su construcción ese mismo año, tenía por destino ser el Palacio de Agricultura, sede del Ministerio de Salubridad y Agricultura y Cría del gobierno de Juan Vicente Gómez.

El inicio de las obras que abarcaron de 1935 a 1938 tuvo varias implicaciones y debió atravesar algunas vicisitudes. La primera fue la demolición de la casona colonial del Conde de San Javier que hasta entonces había ocupado el terreno donde la edificación se levantaría. La segunda fue el fallecimiento en diciembre de 1935 del “Benemérito”, el fin de su cruenta dictadura y la llegada al poder del general Eleazar López Contreras en 1936. Y la tercera fue la decisión tomada por el gobierno entrante en cuanto al destino que debía acompañar al inmueble.

Sobre la decisión de echar abajo la que fuera considerada una de las casas con mayor abolengo de cuantas ocupaban el cuadrilátero histórico de la capital venezolana, pocas informaciones se tienen en cuanto a posibles reacciones a lo que hoy sería considerado como una grave afrenta al patrimonio edificado. El comentario cobra sentido si se tiene en cuenta de que, más allá de la condición nobiliaria de su propietario original, Don Antonio Pacheco, Conde de San Javier, rico hacendado dueño de las mejores vegas de café y cacao, quien construyó una de las pocas viviendas de dos plantas del centro en 1736, allí se instaló la Junta Suprema de Caracas Conservadora de los Derechos de Fernando VII, el 20 de abril de 1810 y, en 1811, se congregaron en sus salones los Diputados del Primer Congreso de Venezuela, dos hechos si se quiere antagónicos desde el punto de vista político, pero de indudable trascendencia en el devenir independentista venezolano.
Sin embargo, todo ese importante bagaje se fue diluyendo y obviando en el tiempo. La propiedad pareciera que cambió de manos y también de uso hasta el punto de que allí funcionó la “Imprenta Nacional”, luego «El Eco Venezolano» y por último «El Nuevo Diario», órgano de la dictadura gomecista, lo cual habla por sí solo de su inexorable destino que culminaría con la demolición aprobada por decreto en 1934.

El que en medio de su construcción iniciada en 1935 el novedoso edificio ministerial se viese envuelto en la transición entre la muerte de Gómez y la llegada de López Contreras, no deja de tener una importancia simbólica en lo que se refiere a su destino inicial y posterior. Para nadie es un secreto el estancamiento y bajo nivel en el que cayó la educación a nivel nacional durante los 27 años que duró la dictadura gomecista. También es sabido el decidido impulso dado a la reactivación educativa y cultural del país por López Contreras a partir de 1936. De allí que nada mejor que designar lo que ya se percibía como un noble, moderno y elegante edificio como sede del Ministerio de Educación Nacional, punta de lanza de una de las principales líneas políticas emprendidas por el gobierno lopecista e impulsar su terminación en 1938, convirtiéndose, además, dada su escala, en uno de los hitos del inicio de la modernización de la ciudad y en el Palacio de Educación Nacional.

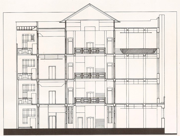
Guillermo Salas, su proyectista, dotó a la edificación de cuatro pisos de altura de un indudable sello institucional, provisto de una contundente volumetría en la que predomina la línea recta y la ausencia de elementos decorativos, que acompañó con el sobrio manejo del estilo en boga: el art déco. Concebida como una totalidad arquitectónica, en la obra se dieron cita avances tecnológicos importantes e insospechados para época (estructura en concreto armado, sistema de aire acondicionado central y el primer ascensor de la ciudad), que refuerzan su cuidadoso planteamiento formal y espacial.

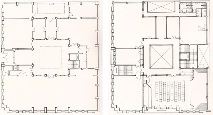
Beatriz Meza Suinaga en la nota que acompaña la obra, publicada en Caracas del valle al mar. Guía de arquitectura y paisaje (2015), precisará lo siguiente: “El edificio de planta cuadrada y dos ejes compositivos cuenta con un notable espacio central de acceso con triple altura, cubierto por un lucernario con vitrales coloreados similares a los situados detrás de escalera principal y el ascensor. Marquetería, mármoles, bajorrelieves y altorrelieves del escultor Lorenzo González (1877-1948) se distribuyen en interiores y exteriores, ricos en referencias Art Déco tanto en la combinación de materiales, colores y la simplificación esquemática como en la geometrización, las formas angulares y los escalonamientos de las fachadas”.

Cabría añadir que a la aparente pesadez exterior que muestra el edificio, producto de la preponderancia del lleno sobre el vacío, se contraponen la ligereza y verticalidad que le imprimen tanto las aberturas como los paños que modulan la envolvente. La sensación de estar ante una gran pieza cúbica de piedra blanca esculpida, adaptada adecuadamente a la geometría del lugar en el que se encuentra colaboran a realzar su presencia y a reforzar la definición de la esquina.

Por otro lado, el manejo de los dos ejes compositivos que denota la planta permite ver como el principal (sentido este-oeste), que va del acceso al núcleo de circulación vertical, se ve realzado gracias a la escogencia de mármol blanco como material de recubrimiento y por la posibilidad de apreciar la presencia de la luz natural procedente del lucernario que cubre el espacio central. El eje secundario (norte-sur), perpendicular al anterior, relaciona los espacios de mayor área ubicados al sur con los de apoyo situados al norte, que incluyen la presencia de un pequeño y agradable patio.

Tal vez ningún aspecto del edificio es más fascinante que la presencia en cada detalle o elemento que lo compone, de la mano de un artesano o artista perfectamente coordinados en pro de un espíritu de totalidad acorde con el gusto de la época. Los vitrales (uno que cubre el espacio central y otro que cierra la cara este de la escalera), proveen a la luminosidad reinante de un moderado colorido. Los bajo y altorrelieves utilizados como motivo de remate en el encuentro de techos y paredes, el diseño de los pisos (tanto los de madera como los de mármol), las puertas, las ventanas y la herrería reafirman al edificio como una de las más importantes muestras de art déco de Caracas.
La calidad del edificio diseñado por Salas en la esquina de El Conde es tal vez la responsable del olvido en que cayó la antigua edificación que ocupó el solar por más de 200 años, por lo que se puede decir que el histórico lugar, a diferencia de otros muchos, se dignificó. Así, tras 41 años de ser ocupado por el Ministerio de Educación y una vez construida para éste una nueva sede, el inmueble es destinado, luego de ser decretado en enero de 1980 como Monumento Histórico Nacional, a albergar otro uso de similar nobleza: el de la Biblioteca Pública Central de Caracas, cabeza de la red metropolitana dentro del proceso de institucionalización del Sistema Nacional de Bibliotecas e Información de Venezuela llevado a cabo entre 1974 y 1998 liderizado por Virginia Betancourt desde el Instituto Autónomo Biblioteca Nacional.

El proyecto de restauración y remodelación que llevaba implícito un importante cambio de uso, ejecutado entre julio de 1981 y diciembre de 1983, estuvo a cargo del arquitecto Lesmes Castañeda. Al momento de su reapertura se le daría por nombre Biblioteca Metropolitana Simón Rodríguez.
Castañeda lleva a cabo un cuidadoso y respetuoso trabajo producto de un sensible estudio y análisis de la obra, que no deja de mostrar que se trata de una intervención acorde al tiempo que transcurre entablando un necesario diálogo sin necesidad de hacer concesiones formales al pasado. Ello conllevó a tomar medidas de acondicionamiento espacial y ambiental dirigidas a sus dos principales objetivos: los libros y los usuarios.
La incorporación visual del sistema de aire acondicionado a los ambientes que lo requieren, a través de un plafón resuelto con una malla metálica tridimensional que sostiene las luminarias, se utiliza como recurso que adicionalmente permite el reconocimiento del trabajo en yeso, presente en el techo original. Así mismo, el mobiliario y la dotación en general establecen un adecuado contrapunto con el resto de los elementos que constituyen el equipamiento, originándose, conjuntamente con la edificación, una relación de armonía por contraste.

El estupendo trabajo que en su momento creó una verdadera sinergia entre el arquitecto restaurador y la obra restaurada, devolvió a la ciudadanía una hermosa edificación que ha podido realizar cabalmente las actividades para las que fue prevista e incluso adaptarse a un nivel de demanda creciente.
Su condición de Monumento Histórico y su ya tradicional vinculación con la cultura han permitido a las nuevas generaciones apreciar cómo un edificio concebido hace 90 años como Palacio de Agricultura se ha convertido en el Templo de la Cultura y la Educación.
ACA
Procedencia de las imágenes
1, 6, 7, 8, 9, 10 y 11. Azier Calvo Albizu. «El templo de la educación». Revista ESPACIO, nº 2, mayo-junio, 1988.
2. Captura de Google Earth.
3. Viajar y celebrar. A travel blog by Betariz ( https://www.viajarycelebrar.com/single-post/2018/03/15/la-calle-m-c3-a1s-aristocr-c3-a1tica-de-caracas-de-la-esquina-el-conde-a-la-esquina-de-ca); y Caracas en Retrospectiva (https://www.facebook.com/photo.php?fbid=10150160732087211&id=19122052210&set=a.10150089384232211&locale=fo_FO)
4. Caracas en Retrospectiva. Ministerio de Educación Nacional (antigua sede) (http://mariafsigillo.blogspot.com/2013/09/ministerio-nacional-de-educacion.html)
5. Caracas en Retrospectiva. Ministerio de Educación Nacional (antigua sede) (http://mariafsigillo.blogspot.com/2013/09/ministerio-nacional-de-educacion.html); y CCS Caracas del valle al mar (http://guiaccs.com/obras/biblioteca-metropolitana-simon-rodriguez/)

















