…que en 1929 se inicia el desarrollo de la urbanización La Florida en Caracas?

Luego del éxito obtenido a mediados de los años 1920 por Juan Bernardo Arismendi (1887-1982), asociado con Juan M. Benzo, Luis Roche y Santiago Alfonzo Rivas, en la construcción de San Agustín del Norte (la primera expansión de Caracas hacia el sureste) y más tarde, con Benzo y Tomás Sarmiento, en el desarrollo de urbanización El Conde (prolongación del trazado vial de la anterior), Arismendi junto a Roche (1888-1965) contratan en 1928, bajo la figura ampliada de una Asociación Civil (o “Sindicato”), al arquitecto Manuel Mujica Millán (1897-1963) para que diseñe, en terrenos de la Estancia Ávila (antigua hacienda cafetalera Los Bueno) y la Granja de los Chapellín, el plan de la urbanización La Florida, considerada el primer suburbio-jardín construido en la capital.

El nuevo desarrollo, que contó con la participación del ingeniero-arquitecto Carlos Delgado Sarmiento y para el que se sumaron en la etapa constructiva Carlos Morales y la firma Miranda-Velutini, fue concebido por Mujica (llegado a Venezuela en 1927 contratado para corregir las fundaciones del hotel Majestic), apoyado en la formación recibida en la Escuela Técnica Superior de Arquitectura de Barcelona, la influencia del movimiento de la ciudad jardín en Barcelona conformado en 1912 y su órgano de divulgación (la revista Civitas, publicada a partir de 1914 durante una década) y su experiencia acumulada desde 1917, como parte de quienes dan continuidad al urbanismo novecentista catalán. De hecho, en 1925 (el mismo año en que se recibe de arquitecto), Mujica proyecta en Santa Perpètua de Mogoda, en las cercanías de Barcelona, otro desarrollo también denominado “La Florida” (muy bien documentado por Vicente Casals Costa en “Manuel Mujica Millán y el urbanismo novecentista en Cataluña, 1917-1927”, https://www.ub.edu/geocrit/b3w-925.htm), que muestra, pese a su carácter más modesto, los mismos rasgos propios de la ciudad jardín presentes en la urbanización caraqueña, constituyéndose ambas experiencias en referenciales dentro de su trayectoria así como fundamento para el diseño posterior, también en Caracas, de la urbanización Campo Alegre (1929-1932).

El proyecto de Mujica para La Florida, analizado al detalle por Izaskun Landa en “Transferencias del modelo de urbanismo jardín europeo: el caso del primer suburbio jardín de Manuel Mujica en Caracas” (http://www-etsav.upc.es/personals/iphs2004/pdf/111_p.pdf), muestra “su experiencia en el lenguaje académico, destreza en la proyectación y desarrollo de conjuntos urbanísticos, pero en particular el dominio y conocimientos profundos sobre el urbanismo jardín en los términos funcionales, simbólicos y morfológicos planteados por (Raymond) Unwín y (Barry) Parker” en 1904 mediante la propuesta ganadora del concurso de Letcworth Garden City y en 1906 cuando proyectaron el suburbio londinense de Hampstead Garden siguiendo buena parte de los planteamientos formulados con anterioridad por Ebenezer Howard.

Los predios agrícolas en los que se ubica La Florida están “separados del casco tradicional por otros cultivos, en un sector atravesado por una quebrada con abundante vegetación que generaría la atmósfera ideal para lograr el concepto del urbanismo jardín, además, estaba muy bien conectado al casco urbano mediante la ampliada Carretera del Este y el ferrocarril Caracas-Petare a través de la estación Sabana Grande”, explicará Landa.

La urbanización, cuyas fotografías rápidamente se convirtieron en ilustraciones de numerosas postales de la época, constaba de más de doscientas parcelas y en su desarrollo se marcó con toda claridad la diferencia entre dos zonas: una baja, al sur, (objeto del proyecto inicial elaborado por Mujica) que se estructuraba con base en una retícula que presenta una combinación de trazado regular e irregular (primer ejemplo de este tipo en la ciudad), donde destacan grandes avenidas arboladas jerarquizadas en función al ancho de la calle y diferenciadas por los nombres de las especies que les dieron nombre (acacias, samanes, jabillos, naranjos, almendros y manolos), con islas anchas, paseos peatonales y doble hilera de árboles, bancos y ornamentos, así como amplias aceras y variedad de redomas y plazoletas ajardinadas de diversas formas y tamaños propuestas en las intersecciones viales, todo lo cual serviría de marco a la aparición lujosas quintas unifamiliares aisladas con amplios jardines, caldo de cultivo de una arquitectura de variados lenguajes estilísticos.


La zona alta, al norte, con mayor pendiente dada su proximidad al Ávila, fue desarrollada combinando parcelas de mediano tamaño con otras destinadas a ofrecer en venta soluciones dirigidas a la clase media y profesional, muy acordes a la manera cómo Arismendi solía enfrentar sus emprendimientos. Así, aunque las avenidas procurarán mantener nombres de especies de árboles (en este caso mangos, chaguaramos, pinos o pomagás), disminuirán su sección, las parcelas su metraje y las quintas (de menor tamaño) adoptarán otros rasgos más anónimos e incluso aceptarán la presencia de modelos repetitivos, sin dejar de mirar o recrear los estilos de las soluciones que prevalecían al sur. Si en el plan de venta inicial se pueden encontrar parcelas de hasta 3000 m2 de terreno que albergan mansiones de 1000 m2 de construcción, el posterior desarrollo registra la presencia de casas cuya área de construcción oscila entre los 100 y los 200 m2 en terrenos que rondan los 1000 m2.


Cuando La Florida empieza a promoverse como “un jardín en Caracas”, varios aspectos son resaltados en el folleto publicitario impreso para tal fin (toda una novedad para la época) por quienes tienen a su cargo convencer a los futuros compradores de terrenos. De entre ellos el énfasis en el uso del automóvil para desplazarse y conectarse con el resto de la ciudad, síntoma inequívoco de modernidad y de “evolución constante de las condiciones de vida”, surge como paradójico anhelo contrapuesto a la “búsqueda de aire y tranquilidad” que se enarbola como argumento para vender la “superioridad de la casa de campo sobre la casa de la ciudad”, y más aún cuando se plantea “el auto con sus ruidos y sus gases (como) destructor de nervios y de salud”. Al exponerse: “Si el trabajar en la ciudad es inevitable, el vivir fuera también lo es” y se añade “Hemos llegado, pues, a la conclusión de que en bien de nuestros hijos… debemos dejar la ciudad al comercio… y debemos buscar en medio de la naturaleza, oxígeno para los pulmones y sedativo para los nervios”, no deja de sorprender que también se subraye la “proximidad a Caracas” y el asegurar que “se está en plena ciudad: a siete minutos en auto de la Plaza Bolívar”.

El encuentro de la avenida Las Acacias con la Carretera del Este marcará el acceso vehicular a la urbanización y estará enfatizado con la presencia de una plaza ajardinada. Pensada como un bulevar y a la vez vía principal, Las Acacias fue diseñada inicialmente con una anchura de 52 metros y “presenta un trazado en sentido norte-sur adaptado al recorrido y pendientes de la quebrada mediante líneas curvas amplias y muy suaves” que finaliza en las estribaciones de la Silla de Caracas. “Así mismo, en el cruce de esta avenida con la línea del ferrocarril se conforma otra plaza (…) (suerte de) nodo del trazado vial a partir de la cual se originan dos bulevares de menor jerarquía en el mismo sentido norte-sur (las avenidas Los Samanes y Los Jabillos), diseñados también con un trazado sinuoso y suave e integrados mediante calles transversales de menor jerarquía (…), algunas de las cuales finalizan en calles ciegas que rematan en redomas o plazas que presentan una gran riqueza de formas geométricas, tal como los ejemplos ingleses”, puntualizará Landa. El más importante bulevar transversal será la avenida Los Manolos cuya posterior prolongación hacia el oeste hasta San Bernardino dará origen a la avenida Andrés Bello cuyo impacto, sin duda, alterará significativamente las condiciones iniciales deseadas para la urbanización.

Sobre Los Manolos entre las avenidas Los Samanes y Los Jabillos se ubicará el Club Florida, de carácter privado, referencia para la Caracas de entonces y centro institucional, social y simbólico de la urbanización, que incluyó parques, jardines y canchas deportivas pero ningún espacio público. Esta particularidad hará que el desarrollo, pese a sus evidentes similitudes formales con el urbanismo jardín, al no escoger a la iglesia o la escuela para asumir el rol de nodo cívico permita afirmar a Landa que “…La Florida podría ser considerada como el primer ejemplo de suburbio jardín en Caracas únicamente en los términos conceptuales, funcionales y morfológicos planteados por Unwin y Parker, debido a que dos de los conceptos esenciales del urbanismo jardín planteados por Howard nunca fueron aplicados en Caracas”. La inexistencia de espacios públicos notables en La Florida no se producirá ni siquiera cuando el terreno del club, una vez demolido, sea destinado a la construcción de la iglesia de Nuestra Señora de Chiquinquirá y el colegio San Antonio.



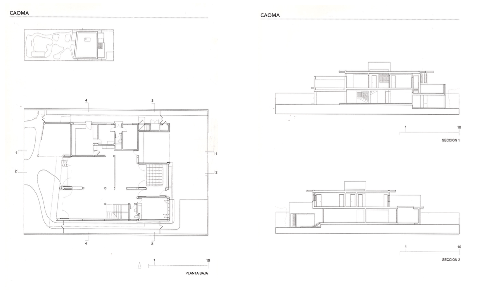
Vale la pena recordar que Carlos Raúl Villanueva llega a Venezuela justamente en 1928 en pleno proceso de gestación de La Florida y que contraerá nupcias con Margot Arismendi Amengual (hija del promotor del urbanismo) en 1933. Este hecho le permitirá diseñar en la urbanización sus dos primeras viviendas familiares: la casa nº36 de la avenida Los Manolos cruce con Los Samanes (frente al club) en 1934 (demolida en 1979), y luego Caoma en la avenida Los Jabillos de 1953 (que habitará hasta su fallecimiento en 1975), construida tras derribar la quinta propiedad de su esposa que ocupaba la parcela donde se habían mudado a finales de la década de 1930 de la que sólo se conservará el nombre. También le dará la oportunidad de colaborar con su suegro proyectando numerosos modelos de quintas dentro de la urbanización que se repetirán y estarán al alcance de un mayor número de personas, las cuales han sido estudiadas por Luis Polito en “Las quintas de Manuel Mujica Millán y Carlos Raúl Villanueva alrededor de los años ’30”, Trabajo Final presentado para obtener el título de Magister Scientiarum en Historia de la Arquitectura de la FAU UCV en 1996.
“Debido a su inmediato éxito inmobiliario entre la creciente clase media alta, que no solamente exigía un urbanismo de calidad sino que también requería identificarse a través de los nuevos códigos y valores estéticos nacientes en los países centrales, La Florida se constituyó como el modelo de urbanización a seguir y por lo tanto se convirtió en arquetipo de los promotores inmobiliarios a partir de los años treinta. Así, San Bosco, San Bernardino, Los Caobos, Altamira, La Castellana, Colinas de Bello Monte y otras urbanizaciones ubicadas en el sur-este de Caracas serían a su vez, trasplantes, reinterpretaciones y adaptaciones -con mayor profusión o menor utilización de elementos comunes, según el caso- del lenguaje formal de La Florida y por lo tanto de los códigos funcionales y morfológicos del urbanismo jardín europeo”, concluirá Landa.

Afectada como ya señalamos por su apertura franca a la ciudad, por cambios en su zonificación y por la aparición cada vez más extendida de usos comerciales, La Florida con el tiempo ha sufrido un proceso de creciente deterioro que ha derivado en la desmejora de su calidad ambiental pese a que conserva el verdor en sus avenidas y la frondosidad de los árboles que aún dan nombre a muchas de sus calles.
ACA
Procedencia de las imágenes
- Colección Crono Arquitectura Venezuela.
2. Casals Costa, Vicente. «Manuel Mujica Millán y el urbanismo novecentista en Cataluña, 1917-1927», Biblio 3W, Vol. XVI, nº 925, 2011 (https://www.ub.edu/geocrit/b3w-925.htm); y Di Pasquo, Carlos. Caracas 1925-1935. Iniciativa privada y crecimiento urbano, Universidad Central de Venezuela, 1985.
3. Roche, Marcel. La sonrisa de Luis Roche, Ediciones Arte, 1967
4. De Sola Ricardo, Irma. Contribución al Estudio de los Planos de Caracas 1567 – 1967, Ediciones del Comité de Obras Culturales del Cuatricentenario de Caracas, 1967
5. De Sola Ricardo, Irma. Contribución al Estudio de los Planos de Caracas 1567 – 1967, Ediciones del Comité de Obras Culturales del Cuatricentenario de Caracas, 1967; y Polito, Luis. Las quintas de Manuel Mujica Millán y Carlos Raúl Villanueva alrededor de los años ’30, Trabajo Final presentado para obtener el título de Magister Scientiarum en Historia de la Arquitectura, FAU UCV, 1996.
6, 8, 9 y 10. Fundación CIEV. «El éxodo de la ciudad hacia el este o breve historia de las urbanizaciones de Caracas a partir de 1928 – Parte 2», 2017 (https://fundacionciev.com/el-exodo-de-la-ciudad-hacia-el-este-o-breve-historia-de-las-urbanizaciones-de-caracas-parte-2?x-host=fundacionciev.com)
7. Colección Fundación Arquitectura y Ciudad; Caracas Cuéntame (https://twitter.com/Caracascuentame/status/1061058955655430144); Fundación CIEV. «El éxodo de la ciudad hacia el este o breve historia de las urbanizaciones de Caracas a partir de 1928 – Parte 2», 2017 (https://fundacionciev.com/el-exodo-de-la-ciudad-hacia-el-este-o-breve-historia-de-las-urbanizaciones-de-caracas-parte-2?x-host=fundacionciev.com); y El Universal. «La Florida conserva su apariencia tradicional» (https://www.eluniversal.com/caracas/23599/la-florida-conserva-su-apariencia-tradicional)
11. Fundación CIEV. «El éxodo de la ciudad hacia el este o breve historia de las urbanizaciones de Caracas a partir de 1928 – Parte 2», 2017 (https://fundacionciev.com/el-exodo-de-la-ciudad-hacia-el-este-o-breve-historia-de-las-urbanizaciones-de-caracas-parte-2?x-host=fundacionciev.com); y Jorge Peña, CARACAS en retrospectiva II (https://www.facebook.com/caracasretro/photos/a.21187152210/436207152210/?type=3)
12. Gómez, Hannia. El Cerrito: la obra maestra de Gio Ponti en Caracas, ULTREYA/Fundación Planchart, 2009; y Gasparini, Graziano y Posani, Juan Pedro. Caracas a través de su arquitectura, Armitano Editores/Fundación Fina Gómez, 1969.
13. IAM Venezuela. «Manuel Mujica Millán, el español que modernizó la arquitectura en Venezuela» (https://iamvenezuela.com/2019/05/manuel-mujica-millan-el-espanol-que-modernizo-la-arquitectura-en-venezuela/); y Polito, Luis. Las quintas de Manuel Mujica Millán y Carlos Raúl Villanueva alrededor de los años ’30, Trabajo Final presentado para obtener el título de Magister Scientiarum en Historia de la Arquitectura, FAU UCV, 1996.
14. Villanueva, Paulina y Pintó, Maciá. Carlos Raúl Villanueva, Alfadil Editores, 2000.
15. Captura de Google Earth y La Caracas Inolvidable (https://www.facebook.com/groups/586879391415561/posts/3482186595218145/)














