
1963• Se termina la construcción e inicia la venta en régimen de propiedad horizontal del Edificio El Progreso, ubicado en la esquina de la Av. Victoria (hoy Presidente Medina) con la Calle El Progreso, Urbanización Las Acacias, diseñado por el arquitecto José Miguel Galia.

El edificio de planta rectangular, de 14 pisos de altura, tiene una planta de comercio (por debajo del nivel de la avenida), una planta libre en la que se encuentran los ascensores, la escalera, los servicios generales, la conserjería y el estacionamiento, al cual se accede lateralmente por la Calle El Progreso.

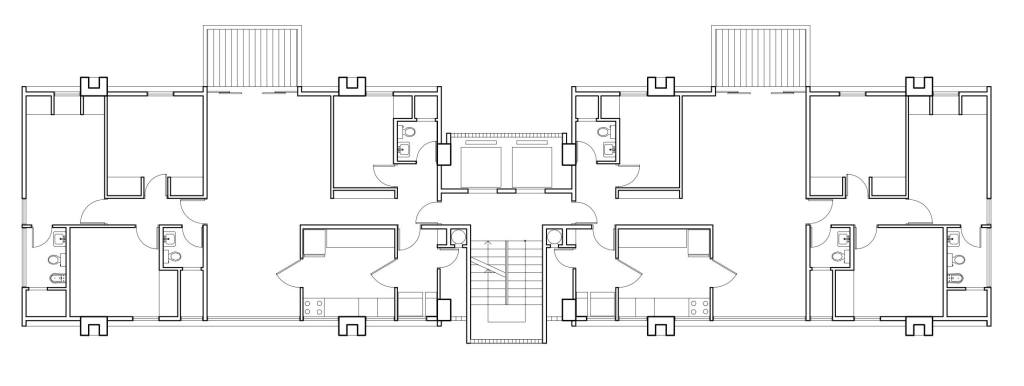
Galia distribuye claramente el apartamento en tres áreas, la del acceso y servicio, la social y la privada. Esto criterio se repite en cada uno de los 24 apartamentos del edificio. Al entrar esta ubicada la cocina, el lavandero y un área de faena. Enfrente una habitación con baño incorporado que bien puede ser utilizada como dormitorio o estudio.
La segunda área, la social, está compuesta por el comedor con acceso desde la cocina y el salón con un balcón, dispuestos con orientación norte-sur lo cual facilita la ventilación cruzada y una buena iluminación.
En la tercera área, con independencia y privacidad, el arquitecto dispuso 3 habitaciones, la principal con un sanitario incorporado y dos habitaciones más compartiendo el sanitario.


La estructura del edificio fue realizada en concreto armado dejando columnas, vigas y antepechos de los balcones a la vista, sobredimensionando estos últimos para que produzcan protección solar a el balcón del apartamento inferior. Los cerramientos fueron revestidos en el exterior con ladrillos de arcilla dejados en obra limpia.
HVH


















