Archivo de la etiqueta: Dirk Bornhorst

1977• Conjunto Residencial La Corniche

1977• Se concluye la construcción del Conjunto Residencial La Corniche, ubicado en la 10º Transversal, Urbanización Altamira, proyectado por los arquitectos Dirk Bornhorst (revalida FAU UCV promoción 8/1958), Pedro Neuberger (1923-2011) (Universidad de Buenos Aires 1946), con la colaboración de Ivanka Schaumann.

HVH

ALGO MÁS SOBRE LA POSTAL Nº 276

Dentro del grupo de casas que forman parte de un selecto catálogo que retrata la entrada definitiva de nuestra arquitectura a la modernidad, “Hato Hamburgo” ocupa un lugar especial por diversas razones.

En primer lugar porque se constituye en clara muestra de lo que significó durante los años 50 del siglo XX “colonizar” el entonces inexplorado y lejano sureste de Caracas cuando Jorge Romero Gutiérrez acomete alrededor de 1948, desde su sociedad con Ernesto Fuenmayor, primero la urbanización Charallavito (sobre la carretera vieja de Baruta) y luego, con la experiencia acumulada, desde 1951 el diseño a través de la oficina “Arquitectura y Urbanismo C.A” (en la que lo acompañan Carlos Pietri Martínez, gerente; José Luis Gómez, urbanista; Pedro Neuberger, Dirk Bornhorst y Humberto Vera Barrios como arquitectos), y mediante la empresa “Inversiones Planificadas”, la promoción y venta primero de la urbanización Prados del Este y posteriormente de Terrazas del Club Hípico y “La Ciudad Satélite” de La Trinidad. Así, como demostración de que aquello era posible Bornhorst y Neuberger, construirán las que serán sus viviendas en estos desarrollos: el primero en Charallavito donde proyecta justamente “Hato Hamburgo” (1956-1957) inicialmente diseñada para su hermana y ocupada por el arquitecto y su familia en 1962, y el segundo años después primero en Prados del Este (quinta “Tacalí”, 1963) y luego en Terrazas del Club Hípico (quintas “Tanolo” y “Yarín”, 1977).

También porque “Hato Hamburgo” marca un momento importante dentro de la primera etapa de la trayectoria de Dirk Bornhorst (1927-2019), conformada por un ramillete de quintas, algunas proyectadas en sociedad con Pedro Neuberger, en la que no sólo manejó de manera brillante una espacialidad plenamente contemporánea y un impecable funcionalismo sino porque ya empezaba a dar lecciones del significado de respetar y convivir con el medio donde se insertaban: consideración por la vegetación, adaptación a la topografía, apertura hacia las visuales largas y adecuado control solar.

1. Tres quintas proyectadas por la oficina Bornhorst-Neuberguer. Arriba izquierda: “Altamira” (Altamira, 1955). Arriba derecha: “Lida” (Lomas de San Román, 1955). Abajo: “Dunsterville” (Oripoto, 1958).
2. Dirk Bornhorst, Quinta «Lubeca» (Altamira, 1954).

De aquella primera etapa son producto de su sociedad con Neuberger: “Altamira” (Altamira, 1955), “Las Mercedes” (San Román,1955), “Villasmar” (Prados del Este, 1955), “Lida” (Lomas de San Román, 1955) y “Dunsterville” (Oripoto, 1958) como punto culminante, pudiéndose referir todas a la quinta “Lubeca” (Altamira, 1954), primera vivienda propia diseñada y construida por Bornhorst para su familia, como posible punto de partida.

“Hato Hamburgo”, cuyo nombre rememora una entrañable propiedad de una hectárea que los Bornhorst tenían en El Milagro, a orillas del Lago de Maracaibo, adquirida tras emigrar a Venezuela desde Lübeck (Alemania), donde Dirk pasó su infancia y parte de la adolescencia (entre 1927 y 1941), está concebida a partir del paisaje y las condiciones topográficas del terreno donde se implanta en la que “se trató de moldear la forma y silueta de la casa a las líneas suaves de las colinas que la rodean”, tal y como se recoge en la ficha elaborada para el catálogo de la exposición “La casa como tema. Primera aproximación antológica de la casa en Venezuela”, organizada bajo la curaduría de la Fundación Museo de Arquitectura en los espacios del Museo de Bellas Artes entre octubre y noviembre de 1989. Allí también se señala que “para lograrlo se utilizó el recurso, innovador en la Caracas de los años cincuenta, de un techo-jardín que pareciera hacer de la casa una emanación de la propia colina surgida por la fuerza telúrica de una necesidad de cambio funcional y plástico en la concepción propia de la tierra.”

3. «Hato Hamburgo». Ubicación en la urbanización Charallavito
4. «Hato Hamburgo». Plantas
5. «Hato Hamburgo». Vistas exteriores
6. «Hato Hamburgo». Entrada principal y espacios interiores.

En otra buena referencia, el artículo “Todo paisaje presume una edificación”, publicado por Henry Vicente el 23 de junio de 2002 en la revista Todo en domingo que acompañaba los fines de semana al diario El Nacional, el análisis de “Hato Hamburgo” remite a resonancias provenientes de El Helicoide, el cual se diseñaba casi en simultáneo, en algunas de las decisiones formales que asociadas a lo funcional se toman para proyectar la vivienda: “Un eco del manto espiral que envuelve a la Roca Tarpeya aparece en la nueva casa… Un significativo cilindro, alternado de luz y sombra, según las distintas horas del día, actúa como bisectriz que concreta la célebre recomendación de Le Corbusier, separar claramente la circulación vehicular de la peatonal. La suave pared curva nos adentra en un micromundo apacible, en el que Caracas se divisa a lo lejos y en el que la arquitectura recrea el lugar y lo rubrica al poner sobre él las señas de una herencia interpretada y adaptada a un momento dado”.

Iván González Viso en Caracas del valle al mar. Guía de arquitectura y paisaje (2015) señala que “Hato Hamburgo” es de “dos plantas independientes, amoblada y distribuida bajo criterios modernos, está cubierta con un techo a dos aguas que cubre el último nivel percibido lateralmente. En planta baja, se ubican las áreas sociales abiertas al jardín y al Ávila, a través de grandes ventanales y líneas sinuosas, mientras que la planta superior destinada a las habitaciones se desarrolla en un bloque ortogonal”. Cabe añadir que también en la planta baja se ubicaron las áreas de servicio, el estacionamiento techado con depósito y área de mantenimiento para vehículos. También se ubicó en este nivel al área de cocina-comedor y la sala que se conecta directamente con el jardín y la biblioteca-estudio. En la segunda planta se encuentran tres habitaciones y un pequeño apartamento que incluye una cocina, sala-comedor, una habitación y su baño privado. Este segundo nivel cuenta con la particularidad de tener una losa curva que funciona a su vez como techo del estacionamiento y que fue cubierto con vegetación logrando así funcionar como aislante térmico. El segundo nivel está rodeado de terrazas y jardines a los cuales se pueden acceder directamente desde las habitaciones.

El tema de la casa será para Bornhorst, tal y como ya apuntáramos en el Contacto FAC nº 129 (09/06/2019) objeto de reflexión y desarrollo a lo largo de su extensa carrera. Del “Prólogo” escrito por Bornhorst para el libro Del modernismo a lo transpersonal. Casas. Arquitecto Dirk Bornhorst (1994) de Omar Seijas, vale la pena volver a citar lo siguiente: “La Casa como tema siempre ha acompañado a los proyectos grandes elaborados en nuestro taller de arquitectura. En proyectos de casas, más personales, más íntimos y humanizados, libres de influencias comerciales, he podido desarrollar ideas estéticas y arquitectónicas con mucho más soltura y libertad que en grandes conjuntos, donde las restricciones económicas y las múltiples influencias de tantas personas involucradas, tendían muchas veces a debilitar los intentos de aportes frescos y novedosos. (…) En la casa yo trataba con una sola familia, resolvía sobre todo los múltiples aspectos de la vida humana en contacto con el jardín y la naturaleza, lo que siempre resulta en una programación compleja pero estimulante. La difícil topografía del valle de Caracas aumentaba el reto y ofrecía al mismo tiempo una gran diversidad de soluciones.”

7. Izquierda. Dos libros de Dirk Bornhorst. Arriba: Valores Perennes en la Arquitectura (2001). Abajo: Arquitectura, Ciencia y Tao:
el nuevo pensar ecológico, bio-cibernético y holístico, más allá de espacio-tiempo, en la ciencia y en el diseño (1999).
Derecha: Del modernismo a lo transpersonal. Casas. Arquitecto Dirk Bornhorst (1994) de Omar Seijas.

Más adelante, como también decíamos entonces, Bornhorst confesará cómo lo que siempre le ha fascinado de este tema ha sido “su calidad de espejo en la búsqueda de los valores más profundos y trascendentes de la arquitectura”, que le llevaron a “investigar y escribir en los años setenta, un trabajo de escalafón, … en la UCV en 1981 titulado: Una búsqueda de los valores permanentes en la fase mental-creativa y material-expresiva de la arquitectura”, el cual luego fue revisado y publicado como libro bajo el título de Valores Perennes en la Arquitectura (2001). Dichos valores, “independientes de estilos y de modas, traté de definirlos y clasificarlos según los cinco sentidos involucrados; traté de descubrir si estas calidades estéticas fueron captadas por la intuición o por el intelecto”, generándose así una especie de guía con la cual poder adentrarse en sus proyectos y obras.

Posteriormente, esa visión gestáltica, herencia de su estadía durante siete años entre 1941 y 1947 en Asia y de sus estudios  de arquitectura en Berkeley (de donde egresa en 1951), se ampliará cuando entre en contacto con investigaciones científicas más recientes provenientes de la física cuántica, más alejadas de las leyes racional-mecánicas, hasta llegar a niveles transpersonales, dando pie a la aparición del libro Arquitectura, Ciencia y Tao: el nuevo pensar ecológico, bio-cibernético y holístico, más allá de espacio-tiempo, en la ciencia y en el diseño (1999). Sobre su pensamiento y obra, Omar Seijas, quien fuera su discípulo y socio desde 1986, publicará en 1994 el ya mencionado libro Del modernismo a lo transpersonal. Casas. Arquitecto Dirk Bornhorst. En 2011 saldrá a la luz Dirk Bornhorst arquitecto. Mi vida en maqueta con la que se cerraba el prolífico capítulo reflexivo de un importante profesional.

Dentro de este marco, y para concluir, Henry Vicente subrayará: “en … Hato Hamburgo, lejos de la clonación de la vieja casa de familia, se pretendió construir una relación familiar con una atmósfera extinta y venerada, que asume el relieve como la condición más inmediata y determinante de la arquitectura, a tal punto que la casa semeja nacer de la misma colina en la que se encuentra incrustada. (…) De esta forma, la obra escapa del previsible ejercicio contemplativo del paisaje, y lo recrea más allá del simple espectáculo, para convertirlo en campo de acción. Una relación con el paisaje que es viva y que se acentúa a través del verdor de la vegetación que substancia la terraza y los muros, y que parece arrancado de un entorno natural idílico, como si el paisaje proveyera los materiales de la arquitectura”.

Bornhorst no sólo actuó como colono en Charallavito donde, ubicado al final de una calle ciega, durante mucho tiempo no tuvo vecinos, sino que también habitó en “Hato Hamburgo”, convertida con los años en lugar de peregrinaje, durante 57 años hasta su fallecimiento en 2019.

ACA

Procedencia de las imágenes

Postal. http://guiaccs.com/obras/hato-hamburgo-2/

1. AA.VV. Pedro Neuberger. Arquitecto, 2014.

2. Omar Seijas. Del modernismo a lo transpersonal. Casas. Arquitecto Dirk Bornhorst. 1994.

3. http://fundamemoria.blogspot.com/2008/06/

4 y 6. https://www.instagram.com/arquitecturavzl/.

5. http://guiaccs.com/obras/hato-hamburgo-2/, Colección Crono Arquitectura Venezuea y https://www.instagram.com/arquitecturavzl/

7. Colección Fundación Arqutectura y Ciudad

ALGO MÁS SOBRE LA POSTAL nº 164

Pedro Neuberger (1923-2011) y Dirk Bornhorst (1927-2019), acorde al espíritu que privaba en el ejercicio de la profesión durante los 50’s y 60’s del siglo XX, se asociaron durante muchos años conformando una oficina de arquitectura de rasgos muy particulares, donde la firma conjunta de la mayoría de los proyectos se alternaba ocasionalmente con la personal de cada uno de sus integrantes. Dentro de esta libertad de acción, cobra singular importancia la aparición, en fechas tempranas, de un grupo de obras signadas por el espíritu de la modernidad entre las cuales la vivienda unifamiliar tuvo un lugar preponderante.

A pesar de que ambos nacen el Alemania y descienden de alemanes, será en Caracas donde se conocerán, sentarán raíces y desarrollarán sus respectivas carreras profesionales. Neuberger, oriundo de Frankfurt, cuyos nombres de pila fueron Peter Rolf (aunque con el tiempo prefirió llamarse Pedro), queda huérfano de padre (Joseph Neuberger, próspero industrial y comerciante) a los 7 años y se traslada junto a su madre (Rosy Gattmann) y su hermana mayor (Ruth) a Florencia (Italia) donde vivieron durante 7 años para, a los 14 emigrar de nuevo a Uruguay país en el que, compartido con Argentina, terminó sus estudios de bachillerato, despertándose desde muy temprano su vocación por la arquitectura. Allí realiza sus primeras pasantías profesionales sin lograr concluir estudios formales en la disciplina. Por otra parte, en la Argentina de principios de los 50, donde residía tras regresar luego de haber pasado año y medio en Uruguay, gobernada por Juan Domingo Perón y sumida en una fuerte crisis económica que reducía las posibilidades de trabajo, conoce a Juana Sujo (actriz oriunda de allí residenciada en Venezuela), quien lo convence de venir a un país donde estaba todo por hacerse. Dejando a su madre y hermana en Buenos Aires, llega finalmente a Venezuela en 1951, con 28 años, donde entra en contacto con Gustavo Guinand (al frente de la construcción del hotel Tamanaco), Diego Carbonell y Tomás Sanabria (quienes conformaban una prestigiosa oficina de la época) y Jorge Romero Gutiérrez (asociado por entonces con Ernesto Fuenmayor). Será con Romero con quien, en vista del alejamiento de Fuenmayor, definitivamente establecerá una fructífera relación (a la que se sumará luego Bornhorst en 1952): a la actitud emprendedora y visionaria del uno (Romero) se sumará la experiencia en construcción y gerencia de obras del otro (Neuberger).

El periplo vital de Bornhorst no es menos interesante. Descendiente de familia alemana radicada en Venezuela desde 1850, nació en Lübeck y pasó su niñez en Maracaibo. Tras decidir todo el grupo familiar emprender un viaje a Europa vía Japón a comienzos de los años 40, quedan atrapados durante 7 años en Asia a causa de la Segunda Guerra Mundial. Así, el joven Dirk se forma en colegios alemanes que existían en Kobe (Japón) y Tientsin (China), saliendo de bachiller en China en 1946. Regresa a Venezuela y decide estudiar arquitectura en la Universidad de Berkeley (USA) graduándose en 1951. A su regreso entra en contacto con Romero y Neuberger con quienes se asocia durante nueve años a través de la firma “Arquitectura y Urbanismo C.A.”, realizando proyectos tan importantes como el Centro Profesional de Este (1954), la Aduana de Maracaibo (1956) y el Helicoide de la Roca Tarpeya (1957). Revalida su titulo en la UCV en 1958, y desarrolla allí su carrera docente entre 1960 y 1987 como profesor, primero de composición y luego de diseño arquitectónico.

Aunque las biografías tanto de Neuberger (recogida en el libro Pedro Neuberger. Arquitecto, Pablo Nascimento, Tani Neuberger y Claudia Nascimento, 2013), como de Bornhorst (aparecida en los diferentes libros publicados por él y sobre su pensamiento y obra, de los cuales echaremos mano en este caso del realizado por Omar Seijas titulado Del modernismo a lo transpersonal. Casas. Arquitecto Dirk Bornhorst, 1994), fijan el año de 1961 como el de la creación de la firma “Taller de Arquitectura Bornhorst-Neuberger” (luego que El Helicoide llevara a la quiebra a “Arquitectura y Urbanismo C.A.”), se puede constatar como dicha sociedad venía operando desde mucho antes, apareciendo como autores de una serie edificios y casas realizados durante el período 1955-1960, quedando como proyectistas independientes sólo en aquellas viviendas que tuvieron como destino el ser sus propios hogares y algún que otro caso aislado. Esta dinámica flexible en cuanto a un comportamiento que oscila entre la firma conjunta como oficina y la firma personal, como ya dijimos, será una constante hasta que a comienzos de los años 90 Neuberger termine asociándose con Pablo Nascimento (su yerno, quien ya desde 1977 se había incorporado al Taller como pasante y luego como arquitecto -USB- desde 1979), y Bornhorst desde 1986 con Omar Seijas, arquitecto egresado en 1984 de la UCV.

El tema de la casa será para ambos, pero muy particularmente para Bornhorst, objeto de reflexión y desarrollo a lo largo de sus extensas carrera. Del “Prólogo” escrito por Bornhorst del ya referido libro de Seijas, extraemos lo siguiente: “La Casa como tema siempre ha acompañado a los proyectos grandes elaborados en nuestro taller de arquitectura. En proyectos de casas, más personales, más íntimos y humanizados, libres de influencias comerciales, he podido desarrollar ideas estéticas y arquitectónicas con mucho más soltura y libertad que en grandes conjuntos, donde las restricciones económicas y las múltiples influencias  de tantas personas involucradas, tendían muchas veces a debilitar los intentos de aportes frescos y novedosos. (…) En la casa yo trataba con una sola familia, resolvía sobre todo los múltiples aspectos de la vida humana en contacto con el jardín y la naturaleza, lo que siempre resulta en una programación compleja pero estimulante. La difícil topografía del valle de Caracas aumentaba el reto y ofrecía al mismo tiempo una gran diversidad de soluciones.”

1. Dos de los libros escritos por Dirk Bornhorst: Valores Perennes en la Arquitectura (2001) y Arquitectura, Ciencia y Tao: el nuevo pensar ecológico, bio-cibernético y holístico, más allá de espacio-tiempo, en la ciencia y en el diseño (1999).

Más adelante, Bornhorst confesará cómo lo que siempre le ha fascinado de este tema ha sido “su calidad de espejo en la búsqueda de los valores más profundos y trascendentes de la arquitectura”, que le llevaron a “investigar y escribir en los años setenta, un trabajo de escalafón, … en la UCV en 1981 titulado: Una búsqueda de los valores permanentes en la fase mental-creativa y material-expresiva de la arquitectura”, el cual luego fue revisado y publicado como libro bajo el título de Valores Perennes en la Arquitectura (2001). Dichos valores, “independientes de estilos y de modas, traté de definirlos y clasificarlos según los cinco sentidos involucrados; traté de descubrir si estas calidades estéticas fueron captadas por la intuición o por el intelecto”, generándose así una especie de guía con la cual poder adentrarse en sus proyectos y obras. Posteriormente, esa visión gestáltica se ampliará cuando entre en contacto con investigaciones científicas más recientes provenientes de la física cuántica, más alejadas de las leyes racional-mecánicas, hasta llegar a niveles transpersonales, dando pie a la aparición del libro Arquitectura, Ciencia y Tao: el nuevo pensar ecológico, bio-cibernético y holístico, más allá de espacio-tiempo, en la ciencia y en el diseño (1999).

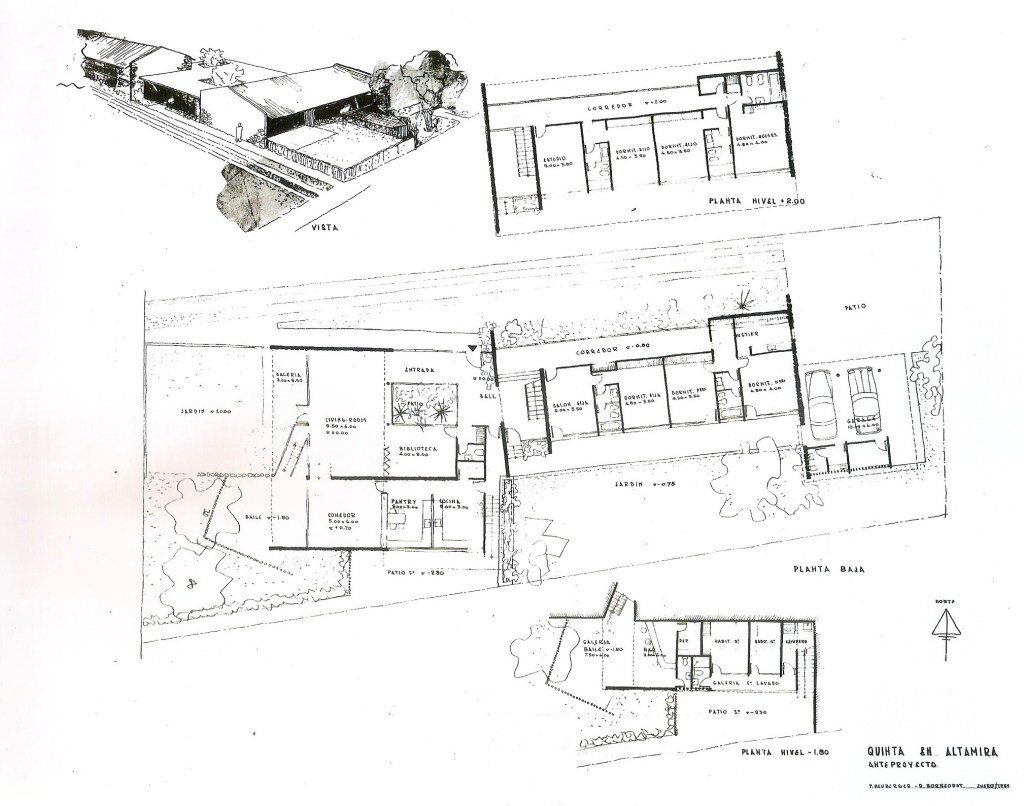
2. Dirk Bornhorst y Pedro Neuberger. Quinta «Altamira», urbanización Altamira, Caracas, 1955
3. Dirk Bornhorst y Pedro Neuberger. Quinta «Lida», urbanización Lomas de San Román, Caracas, 1955
4. Dirk Bornhorst y Pedro Neuberger. Quinta «Dunsterville», urbanización Oripoto, Caracas, 1958
5. Dirk Bornhorst. Quinta «Hato Hamburgo», urbanización Charallavito, Caracas, 1956
6. Pedro Neuberger. Quinta «Tacali», urbanización Prados del Este, Caracas, 1963

De la serie de viviendas proyectadas por Bornhorst-Neuberger entre 1955 y 1960, que según Seijas formaría parte de una etapa más homogénea correspondiente un “modernismo que refleja la formación” (pasando las posteriores a mostrar paulatinamente, más acentuadamente en el caso de Bornhorst, “lo transpersonal como producto de una evolución” dada la diversidad de planteamientos), cabe resaltar los casos de “Altamira” (Altamira, 1955), “Las Mercedes” (San Román,1955), “Villasmar” (Prados del Este, 1955), “Lida” (Lomas de San Román, 1955) y “Dunsterville” (Oripoto, 1958) como punto culminante, pudiéndose referir todas a la quinta “Lubeca” (1954), primera vivienda propia diseñada y construida por Bornhorst para su familia, como posible punto de partida. Además tendrían en “Hato Hamburgo” (proyectada por Bornhorst para su hermana en 1956 y habitada por él mismo y su familia desde 1962) y en “Tacalí” diseñada y construida por Neuberger también como casa familiar en 1963 como momentos en los que se pueden notar claras similitudes y diferencias de enfoque dentro de los dos integrantes de la misma oficina.

7. Dirk Bornhorst y Pedro Neuberger. Quinta «Las Mercedes», urbanización San Román, Caracas, 1955

La quinta “Las Mercedes” (cuya extraordinaria foto de Paolo Gasparini ilustra nuestra postal del día de hoy), se concibe y resuelve, dentro de la saga que hemos señalado, en una planta lo que lleva a los proyectistas a modificar el terreno donde se implanta creando un plano horizontal 3 metros sobre el nivel de la calle para el desarrollo de la vivienda, quedando sólo a nivel 0 el garaje, resolviéndose el acceso a través de una elegante escalera. La casa cuenta con una ligera cubierta que define la entrada la cual está acompañada de un acogedor jardín que conduce hasta la puerta principal. Luego, una vez dentro, se define un vestíbulo que permite dirigirse independientemente a las tres zonas que la conforman: la social, constituida por un estar separado del comedor por puertas que se recogen; la de servicios, que cuenta con cocina-pantry, habitación de servicio, baño y patio de faenas y secado con acceso independiente desde la calle; y la más íntima, conformada por un estudio y tres habitaciones, con dos baños, uno de ellos incorporado. Las tres habitaciones tienen salida a un amplio jardín, pleno de frondosos árboles, y el área social a otro más reducido que mira hacia la calle.
Cuidado en los detalles, sabio uso de los materiales y aprovechamiento de sus diferentes texturas a favor de un sensible juego volumétrico en el que el muro pasa a ser tema de diseño y la luz y la sombra sus mejores acompañantes, se dan cita gracias a una correcta orientación que además contempla la ventilación cruzada.

8. Dirk Bornhorst y Pedro Neuberger. Quinta «Villasmar», urbanización Prados del Este, Caracas, 1955

“Las Mercedes” y “Villasmar”, curiosamente, no aparecen registradas en el libro de Seijas dedicado exclusivamente al tema. No así en el que rinde homenaje a Neuberger, mucho más panorámico, al que sin embargo también le faltan algunas piezas. Valga esta nota, pues, como modesto aporte complementario a lo desarrollado por Seijas e intento por contextualizar y comprender la quinta que nos ha ocupado dentro de una trayectoria y un período tras ahondar en sus circunstancias particulares.

ACA

Procedencia de las imágenes

Postal, 2, 3, 4, 6, 7 y 8. Pablo Nascimento, Tani Neuberger y Claudia Nascimento, Pedro Neuberger. Arquitecto, 2013

5. http://guiaccs.com/obras/hato-hamburgo-2/

Con pesar

Hoy, aunque dentro de nuestra línea de trabajo siempre hemos preferido no publicar notas luctuosas, tampoco quisiéramos dejar de comentar cómo en un lapso de tres meses han fallecido tres importantes arquitectos venezolanos: el 28 de diciembre, con 83 años, nos dejó Domingo “el Flaco” Álvarez; el 27 de febrero Pedro Lluberes (nacido en 1928); y el 12 de marzo Dirk Bornhorst (nacido en 1927) Tres figuras con una marcada impronta intelectual, vinculadas a la docencia y la profesión que con aproximaciones, producciones y protagonismos de muy distinto tono permitieron construir las bases disciplinares de lo que en la actualidad es la arquitectura nacional.

ACA