Archivo de la etiqueta: Boulevard Santa Rosa
ALGO MÁS SOBRE LA POSTAL nº 68

En 1975, José Antonio Abreu funda la Acción Social para la Música creando años mas tarde el Sistema Nacional de las Orquestas Juveniles e Infantiles de Venezuela (FESNOJIV), en el que hoy participan casi 350.000 jóvenes. El exitoso programa social que ha sabido sortear las dificultades de la crisis venezolana, y sostenerse financiado por el estado, extendiendose dentro y fuera de las fronteras del país, construye su sede en el 2009, financiada por el Banco Interamericano de Desarrollo (BID) y proyectada por el arquitecto Tomás Lugo (1943-2016).
Inaugurado en el 2011, el Centro de Acción Social por la música (CASM) emerge como un paralelepípedo inserto en el área de influencia del Parque Los Caobos. Allí se planta como uno de los edificios de mayor relevancia en el contexto de la antigua Calle Real de Quebrada Honda (hoy Bulevar Amador Bandayán), donde predominan edificios temáticos producto de la falta de un plan de ordenamiento que le otorgue sentido al sector.

La sede fué concebida como un espacio para la formación de orquestas, donde se integra la academia con otras disciplinas artísticas a fin de promover la difusión del acervo musical artístico nacional y universal. El sentido del programa, fundamentado en la acción social, la masificación de la música y las orquestas, le otorgó al diseño del edificio un carácter austero, con una estructura convencional de concreto armado, aporticada, columnas de sección mínima, vigas altas y materiales de bajo mantenimiento, que en su interior alberga espacios con flexibilidad acústica para acoger distintos géneros musicales.
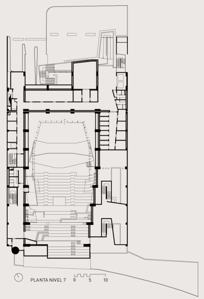
La necesidades del programa obligaron a que el edificio fuera creciendo exponencialmente según los requerimientos del Maestro Abreu, lo cual obligó a concentrar en un lote de solo 3.000 m2, salas de ensayo, aulas, un gran auditorio, áreas de enseñanza, salones de ensayo instrumental y coral, biblioteca, salas de concierto y teatro, salas de música de cámara, áreas para talleres de fabricación de instrumentos musicales, la sede del Centro Nacional Audiovisual, cabinas de grabación, camerinos, cafeterías, servicios administrativos y una concha acústica al aire libre que finalmente se transformaron en casi 16,000 metros cuadrados de construcción. El edificio pese a todos los recursos formales que utiliza, no supera en calidad espacial, capacidad y diseño al Teresa Carreño, pero sin duda logra en sus salas y en la sala «Simón Bolivar”, transmitir los valores de las artes musicales en un auditorio digno y esplendido, revestido de los mejores materiales, con una acústica notable y la más alta tecnología, a lo que se suman elementos clásicos de la música como el gran organo “Klais” con 3.309 tubos tallados en estaño, plomo y madera.
Su austera materialidad exterior en hormigón y bloques a la vista, contrasta con la fineza que se refleja en el uso de la madera y materiales nobles en el interior de la gran sala y los auditorios.

El complejo apuesta al desarrollo vertical del programa, con un volumen conformado por un cuerpo al norte, de once plantas, cercano al Bulevar Amador Bendayán, donde funciona la parte académica del Sistema (aulas y salas de ensayo), estacionamientos y oficinas; y un cuerpo ubicado al sur, hacia el parque Los Caobos, que incluye la gran sala “Simón Bolívar” con cuatro palcos y capacidad para 1.200 personas, asi como la sala “Fedora Alemán”, la anfiteátrica y la concha acústica abierta al parque.

Los suelos del primer nivel exhiben la obra «Inducción cromática a doble frecuencia» de Carlos Cruz-Diez (1923), un río cromático que se extiende a las zonas de acceso a la Sala de Conciertos, balcones y pasillos, e involucran al espectador al caminar permitiéndole que perciban nuevas tonalidades con una condición “inmaterial”. El mosaico produce el color aditivo propio de las investigaciones de Cruz-Diez, y conduce a la obra «Gran virtual amarillo» de Jesús Soto (1923-2005).
Por su parte, la obra de Soto, ubicada en la fachada norte del edificio, se percibe como una lluvia bicolor que se inserta a su vez dentro del edificio procurando el lógico diálogo espacial entre el arte y la arquitectura, emulando los valores presentes en el Teatro Teresa Carreño, sin contar con los generosos espacios del icónico edificio. La pieza acompaña al visitante en su recorrido desde el acceso principal de la plaza hasta el vestíbulo que antecede a la sala «Simón Bolívar». El ovoide blanco y amarillo crea un punto focal en el extremo oeste de la fachada norte. Asímismo, la incorporación de la obra de Carlos Cruz-Diez en los revestimientos de las butacas de la sala “Simón Bolivar” constituye tambien un elemento novedoso y singular.

El edificio fue la última gran obra proyectada por Tomas Lugo. Adyacente a ella se construye hoy el Complejo Internacional de Acción Social por la Música Simón Bolívar, proyecto ganado mediante concurso por la firma ADJKM, que aspira a consolidar el sector al norte del Parque Los Caobos como un importante polo cultural en la ciudad.
ACA
Procedencia de las imágenes
Postal, 3 y 4. https://fundamusical.org.ve/galerias-fotograficas/centro-nacional-de-accion-social-por-la-musica-excelencia-artistica-y-accion-social/
1 y 2. González Viso I.; Peña M.I.; Vegas F. Caracas del Valle al mar. Guía de arquitectura y paisaje, 2015
1989• Monasterio de San Charbel

1989• Se concluye la construcción del Monasterio de San Charbel, de la orden libanesa Maronita, ubicado en el Boulevard Amador Bendayán, Quebrada Honda, Caracas, proyectado por el arquitecto norteamericano Michael McCool.
1993• Mezquita Ibrahim Ibin Abdul Aziz Al-Ibrahim

El arquitecto proyectista empleó en el diseño de la mezquita elementos tales como, un domo, un minarete y un portal para marcar su presencia en el contexto urbano. También utilizó como dispositivo un hall octogonal que se eleva desde una plataforma a un domo circular buscando lograr la transición entre la calle y el espacio central de oración.
2010• Concurso Complejo Internacional de Acción Social por la Música

2010• El día 8 de enero se abrió un concurso de arquitectura organizado por la Corporación Andina de Fomento (CAF) y la Fundación del Estado para el Sistema Nacional de las Orquestas Juveniles e Infantiles de Venezuela (Fesnojiv), para el desarrollo del Complejo Internacional de Acción Social por la Música, Simón Bolívar, en el Bulevar Amador Bendayán de la capital venezolana. Seis meses más tarde, el 2 de julio, el jurado internacional integrado por José Antonio Abreu, director del Fesnojiv; Yasuhisa Toyota, ingeniero acústico de Japón, Iñaqui Ábalos, arquitecto español, Anita de la Rosa, arquitecto paisajista; Lorenzo González Casas, arquitecto y urbanista; Eduardo Guzmán, representante de la Alcaldía Libertador; Omar Seijas, vicepresidente del Colegio de Arquitectos de Venezuela; y los jurados suplentes Pedro Franco, arquitecto y Paola Posani, representante de la Alcaldía Libertador, emitieron su fallo anunciando como ganadores del concurso a los arquitectos Khristian Ceballos, Alejandro Méndez, Mawari Núñez, Daniel Otero, Jean-Marc Río y sus colaboradores. El jurado opinó que la propuesta ganadora se distinguía por “la acertada respuesta a las variables del contexto, estableciendo un importante vínculo entre el Bulevar Amador Bendayán y el Parque Los Caobos mediante la utilización del recurso de la transparencia, y de un programa espacial que valora el uso del espacio público¨.
HVH
1984• Se inicia la construcción del Bulevar Santa Rosa (hoy Amador Bendayán)

1984• Se inicia la construcción del Bulevar Santa Rosa (renombrado en 1990 Amador Bendayán), ubicado en Quebrada Honda, Santa Rosa, al norte del Parque Los Caobos y al sur de la Av. Libertador. Este boulevard, compartido peatonal y vehicularmente, es el frente urbano de instituciones tales como: Colegio de Ingenieros de Venezuela, Centro Nacional de Acción Social para la Música, la Casa del Artista, la Iglesia Santa Rosa de Lima, la Iglesia Católica Maronita San Charbel, la Mezquita Sheikh Ibrahim Al Ibrahimia, la Sinagoga Tiféret Israel, el terminal de una empresa de autobuses interurbanos y la Estación del Metro de Caracas Colegio de Ingenieros.
HVH