
1955• El edificio de vivienda Tabaré fue diseñado por los arquitectos Martín Vegas y José Miguel Galia dos años antes de que se completara su construcción. Está ubicado en la Av. Francisco Fajardo entre Av. Sorocaima y Av. Los Proceres de la urbanización San Bernardino.
El edificio tiene una sencilla volumetría, un claro planteamiento estructural, un correcto uso de los materiales empleados, muy buenos detalles constructivos y un notable sistema de protección solar.

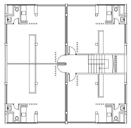
El edificio dispone de planta baja para comercio (que nunca fue utilizado como tal), cuatro pisos tipo (cada uno de ellos con cuatro apartamentos) y el nivel techo de diferente tratamiento.

Los apartamentos son de 48 y 64 m2, disponen de sala–comedor, kitchenette, un dormitorio y un baño.

A los apartamentos se les accede por medio de una escalera interna, recedida en relación a la fachada, creando un pequeño balcón en el descanso, que garantiza la ventilación e iluminación. No se previó ascensor.

Los arquitectos consideraron inicialmente como esquema la posibilidad de crear solo dos apartamentos por piso y utilizar ascensor, sin embargó esta modalidad se descartó por ser, en aquel momento, mucho mejor inversión los apartamentos de menor tamaño.

El volumen resultante del edificio es un cubo, con estructura de concreto armado a la vista y muros exteriores construidos con bloques de cemento sin frisar. Los ventanales de la fachada principal están enmarcados con una sencilla línea de ladrillos de arcilla que separan los materiales usados y marcan delicadas sombras.
El sistema de cerramientos fue diseñado conjuntamente con el ingeniero aeronáutico Felipe Echaniz, dueño del edificio. Cada ventanal de la sala-comedor esta provista de un marco de aluminio, dividido horizontalmente en dos. La parte superior tiene internamente vidrios que se deslizan sobre rieles.

Externamente estos vidrios están protegidos del sol tropical por una romanilla pivotante horizontal, también de aluminio, las cuales al abrirlas cumplen la función de parasoles. La parte baja de cada ventana está dotada de romanillas de aluminio y una fina malla metálica en el interior como protección contra los insectos.
Con este novedoso diseño se garantiza de forma natural la ventilación, la protección solar, el control de la temperatura interna de cada vivienda y las vistas. Las variaciones de luz y sombra producidas por las romanillas del edificio, su tamaño y proporciones denotan y resaltan la calidad del diseño.
Habría que insistir que este edificio es una pieza clave entre las construidas en esa década en Caracas, bien sea por la utilización racional de los materiales y los novedosos apartamentos de marcado carácter urbano, de reducidas dimensiones, sin áreas de servicio ni lavandero, concebidos para parejas o solteros, todo lo cual produce un resultado funcional, tecnológico y formal excelente.
Fotografías- Paolo Gasparini / Fuente consultada – Archivo J.M. Galia
HVH





















