
Gustavo Legórburu Rodríguez (1930-2013), arquitecto venezolano de una sólida y dilatada trayectoria caracterizada por la honestidad, la sencillez, la sobriedad, la austeridad y el sabio manejo de las variables espaciales, climáticas y constructivas del lugar, tuvo pocas oportunidades de proyectar edificios de oficinas para el sector privado.
Recientemente reconocida con la publicación del libro Gustavo Legórburu y la conciencia del lugar de José Humberto Gómez y Víctor Sánchez Taffur (2023), primero de una colección dedicada a los Premios Nacionales de Arquitectura, su obra se desplegó fundamentalmente hacia la arquitectura residencial y la institucional, y se alejó de la llamada arquitectura comercial. Sin embargo, la indagación llevada a cabo para la cristalización del valioso texto deja en el ensayo titulado “Sobre la obra de Legórburu”, con el que se inicia el segundo bloque, suficientes elementos de análisis y reflexión como para considerar que, en su conjunto, la obra del maestro presenta rasgos que permiten desmontarla a partir de una mirada que parte de lo global hasta lo local pasando por lo regional, dejando en claro la persistencia de una serie de ideas que a modo de mantra cruzan transversalmente la producción “legorburiana”. Con ello en mente será más fácil comprender primero y describir después la Torre del Banco del Orinoco, edificio cuya potente imagen hoy engalana dignamente nuestra postal nº 400.

Así, el ejercicio teórico que acompaña el acercamiento a la obra de Legóburu realizado por Gómez y Sánchez Taffur se inicia con una hipótesis que permite ubicar su arquitectura como parte de las sutilezas que se esconden en los pliegues de lo que Charles Jenks definió como la “tardomodernidad”. Se trata, dentro de su especificidad, de una arquitectura de las que se apela “al manifiesto moderno, pero en un sentido mucho más puro y regresivo” y se apuesta “por la fortaleza de las formas universales de limpia geometría hundiendo sus dientes, no en el recurso y exceso tecnológico … sino en el carácter de sus espacios, en la materia y en el desarrollo local del lenguaje propuesto por arquitecturas auténticamente modernas de la posguerra”. Dicha arquitectura se distanciará del refinamiento de los volúmenes blancos del período de entreguerras y se decantará a “favor de una arquitectura un tanto más gris, más cruda y áspera, de fachadas espesas, profundas (¿brutalistas?)”.
En otro momento, Gómez y Sánchez Taffur encuadran la obra de Legóburu dentro de lo que califican como “arquitectura abstracta: aquella que proclama la condición trascendental de los sólidos elementales en desmedro de los híbridos; en la que criterios atados a la ética, eficiencia, modulación y al orden matemático prevalecen como una sintaxis propia cerrada que, en la generalidad de los casos, deja por fuera elementos figurativos. No hay espacio para la distorsión, dualidad, ambigüedad o confusión”.

La idea de que nos encontramos ante una obra gobernada por el pragmatismo, “donde la cautela con que se acercaba al uso del material y su alejamiento de cualquier sumisión a priori e irrestricta al contexto” hablan por sí solas, puede sumarse a otra que enfatiza la pulcritud, precisión, limpieza y economía de esfuerzos para lograr el máximo efecto, donde “no hay espacio para la especulación injustificada” ni para los excesos o los alardes estilísticos, materiales o tecnológicos. Dentro de esta línea, las palabras del propio Legóburu resuenan: ““Yo no podía concebir la arquitectura como un divertimento. No era cuestión de regodearme en buscar formas bonitas, presumiblemente impactantes, que elevaran tu ego y el de tu contratante, no; el arquitecto tenía una señalada responsabilidad social, especialmente si era ciudadano de eso que denominan Tercer Mundo, devaluada porción del planeta Tierra, con el mayor índice de aumento poblacional, pero también con los más significativos problemas en salud, educación y vivienda y todo concentrado, en general, en regiones de clima tropical”.

Un último eslabón asumido por Gómez y Sánchez Taffur les permite calificar la arquitectura de Legórburu como “silente porque, contraviniendo a Jenks, lo que en ella se respira es calma, sosiego; incluso cierta soledad”.
Considerado Legórburu como “un creador recurrente” que, aunque “no necesariamente fue siempre el mismo arquitecto” ni buscó realizar “una arquitectura-manifiesto con ataduras ideológicas”, se puede afirmar que la Torre del Banco del Orinoco, reúne gran parte de las señales que Gómez y Sánchez Taffur han logrado tipificar.

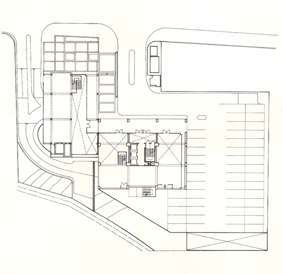
El edificio, ubicado sobre la avenida Francisco de Miranda, sector La Floresta, Municipio Chacao, cuya primera versión data del año 1979, tenía por finalidad construirse y venderse sin asumir el rol representativo de empresa alguna. Sin embargo, no renuncia a la importancia de adquirir una identidad propia que se inscribe en la consistente línea de trabajo desarrollada por su arquitecto.

Sin poseer la escala para ser considerado un rascacielos, ni la estridencia o la búsqueda de protagonismo que a veces caracteriza a las sedes corporativas, el planteamiento desarrollado por Legóburu busca, por un lado, aprovechar al máximo las variables urbanas permitidas para el desarrollo del terreno, y, por el otro ofrecer una respuesta que incorpora la generación de un espacio público, pese a las apremiantes limitaciones que el contexto establecía, su escaso frente a la avenida Francisco de Miranda y la quebrada que en su parte posterior lo delimita.

Para ello recurre a desarrollar un partido en que se hacen presentes la verticalidad de una torre y la horizontalidad de un cuerpo bajo que le sirve de transición. La torre termina ubicándose en la parte sur del lote que permitía mayor desarrollo mientras el cuerpo bajo, más comprometido con el lindero oeste permite, gracias a su aproximación a la calle, resuelve la segregación entre el acceso peatonal (logrado a través de una pequeña plaza) y el vehicular.

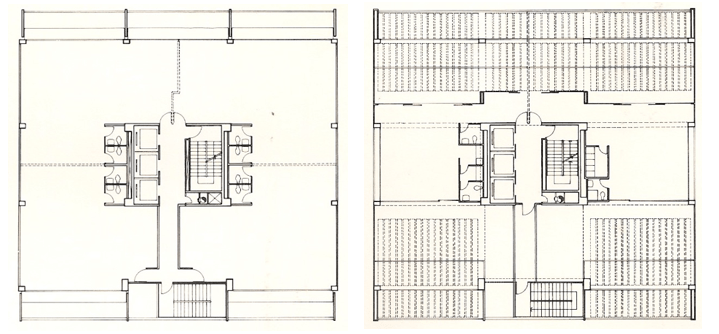
La elegante y bien proporcionada estructura vertical aporticada (donde funcionan las oficinas) tiene quince niveles –once plantas tipo y las de base y remate, ambas de doble nivel-. Por su parte, el cuerpo secundario destinado al uso comercial posee sólo dos plantas, ofreciéndose su techo como área visitable abierta a las visuales de los alrededores. El prisma, de base rectangular, orienta y transparenta sus caras más largas al norte y al sur, recediendo sus cerramientos a un segundo plano protegidos por la prolongación del envigado de borde a modo de alero que junto a la partición vertical le dan profundidad y un particular claroscuro a las correspondientes fachadas. El este y el oeste se cierran utilizándose como recubrimiento panelas de arcilla vitrificada que durante el día toma un atractivo tono cobrizo.

Puesto en funcionamiento en 1984, el Banco del Orinoco recoge los valores esenciales y atemporales que atraviesan toda la producción de Legórburu. Aquí, consecuente como solía serlo, recurre a uno de los rasgos más consuetudinarios de su ejercicio: la fachada fuerte, profunda y celosamente modulada, usada en otros proyectos, certera apreciación que hacen Gómez y Sánchez Taffur. También apela al uso fuerte y limpio de la geometría desde el punto de vista compositivo que facilita la correcta percepción de la forma, “tal vez pensada … para resistir con solvencia tanto el castigo del tiempo como las intervenciones o modificaciones que, como es natural, van apareciendo gradualmente”.

“Definido por una gruesa y elaborada armadura termodinámica pensada en sus cuatro costados para protegernos de las exigentes condiciones ambientales del trópico y, también (si consideramos que la escalera principal al sur de la torre es absolutamente abierta), para coexistir sin tantos prejuicios con él”, como expresan Gómez y Sánchez Taffur, el Banco del Orinoco da así un paso al frente como manifestación de la que puede considerarse como la preocupación más importante dentro de la arquitectura de Legóburu.
Los autores del recomendable libro que hasta aquí nos ha acompañado, cierran diciendo sobre el edificio, ante la tentación de considerarlo como un hito y no como un eslabón dentro de una cadena que “…de una u otra forma, Legórburu va y viene sobre sí mismo, lo que … es también una forma tácita y respetable de decirnos que tal vez no estaba muy interesado en concebir hitos, sino en cuidar la consistencia general de su obra”.
ACA
Procedencia de las imágenes
Postal, 5, 6, 7, 8 y 9. Revista ESPACIO, nº 3, 1988
1 y 2. Colección Fundación Arquitectura y Ciudad
3. PHAIDON (https://www.phaidon.com/agenda/architecture/articles/2019/october/24/ezra-stoller-s-modern-america-the-seagram-building/) ; y Sobrearquitecturas (https://sobrearquitecturas.wordpress.com/2014/06/17/el-lever-house-de-gordon-bunshaft/)
4. José Humberto Gómez y Víctor Sánchez Taffur. Gustavo Legórburu y la conciencia del lugar (2023)























