
Empresas Polar, el consorcio privado más importante de Venezuela, es hoy en día, como se revela en Wikipedia, “una corporación industrial … cuyas actividades productivas abarcan los sectores de alimentos, bebidas alcohólicas, gaseosas y productos de consumo masivo bajo sus filiales Alimentos Polar, Cervecería Polar, y Pepsi-Cola Venezuela”.
Sus inicios se remontan a mediados de los años 1930 del siglo XX cuando, tras la muerte de Juan Vicente Gómez, “el joven abogado caraqueño Lorenzo Alejandro Mendoza Fleury (1897-1969) se hizo socio principal de la empresa familiar ‘Mendoza y Compañía’, que inicialmente fabricaba velas y jabones” y luego “tuvo la idea de establecer una compañía cervecera junto a Rafael Luján y Karl Eggers”, la cual inició sus labores el 14 de marzo de 1941 bajo la denominación de Cervecería Polar C.A., “con capital totalmente venezolano”, en una pequeña planta localizada en Antímano, al oeste de Caracas, cuya capacidad instalada era de 30 mil litros mensuales.

En 1943 con la incorporación a la empresa del joven maestro cervecero judío checoslovaco Carlos Roubicek (1916-2004), la empresa decidió “cambiar la fórmula de la cerveza producida por la planta, basándose en los gustos del público de entonces, lo que, junto a la publicidad adecuada la llevó rápidamente a convertirse en un producto popular”. En aquel entonces contaba “con 50 trabajadores, y debió enfrentar la competencia de otras 14 marcas, lo que fue sorteado tanto con la calidad del producto como un equipo humano de ventas”.


Así, en 1950 surge bajo la supervisión de Juan Lorenzo Mendoza Quintero, hijo de Mendoza Fleury, la primera compañía comercializadora de los productos de Cervecería Polar que se caracterizó por implementar una agresiva campaña de publicidad y promoción que hizo historia en el mercadeo local por “la forma como el inconfundible ‘oso’ invadió visualmente las paredes hasta del último bar de esquina del país”, desarrollándose “el sistema de distribución más completo que se haya instalado en Venezuela”, como se señala en “La historia de Empresas Polar y el origen de la fortuna de Lorenzo Mendoza”, texto publicado en la página web Economía en Crisis el 12 de febrero de 2016.

Desde entonces la compañía mantuvo un crecimiento sostenido: en 1950 se inician las operaciones de una segunda planta cervecera con una capacidad de 500 mil litros al mes, localizada en Barcelona, estado Anzoátegui, en el oriente del país; al año siguiente, se suma otra en Los Cortijos, en Caracas también con 500 mil litros de capacidad complementando la producción de la planta de Antímano; en 1961 se incorporaría otra planta en Maracaibo (la Cervecería Modelo C.A), para atender el occidente del país cuya capacidad ascendió a los 4 millones de litros mensuales.

En 1960, “contando para entonces con tres plantas cerveceras en operación y siendo las hojuelas de maíz uno de los ingredientes principales de la fórmula de cerveza ideada por Roubicek, la empresa decidió construir su propia planta procesadora de maíz en Turmero, estado Aragua, con el fin de sustituir la importación de esta materia prima”. Esta decisión sería un paso determinante en el posterior desarrollo del negocio de alimentos, dando origen al impulso de la producción y comercialización de la harina de maíz precocida, basada en la patente venezolana que adquirió la Polar al ingeniero mecánico Luis Caballero Mejías, quien había inventado en 1954 el procedimiento industrial respectivo. Ello derivará en la aparición en 1960 de la Harina P.A.N., producto que a través de la empresa Remavenca tuvo en el mes de lanzamiento una venta de 50 mil kilos y que al fin de ese mismo año llegaría al millón de kilos mensuales. En 1963 se inauguraría una segunda planta para la producción de maíz precocido surgiendo la empresa Promasa ubicada en la encrucijada de Chivacoa, en el estado Yaracuy.

Un quinto y gran complejo cervecero se comenzará a construir el 5 de diciembre de 1975 en la población de San Joaquín, estado Carabobo, el cual empezó a operar en 1978 con una producción de 12 millones de litros al mes, convirtiéndose en la mayor y más moderna planta de América Latina para ese momento.


Luego vendrán los años de ampliación de la cartera de productos elaborados o comercializados por la empresa y de su internacionalización y, junto a ello, la actividad paralela desde 1977 de la Fundación Polar (hoy Fundación Empresas Polar) a través de la cual fortalecerá su compromiso social y, desde 1994, del Centro Tecnológico Polar, laboratorio destinado a controlar y aumentar la calidad de todos los productos, cuyas sedes se encuentran localizadas en la zona industrial de Los Cortijos de Lourdes, al este de Caracas, próximos al lugar en que se había instalado desde 1951 (como ya se indicó) la segunda planta y donde se habían trasladado las oficinas principales con la adquisición y adaptación de una antigua industria textil. Por otro lado, en los terrenos de lo que fue la planta original (Antímano) se inaugurará en 1995 el Centro de Atención Nutricional Infantil (CANIA) institución que tiene como objetivo prevenir y atender la malnutrición, abordándola integralmente en la población pediátrica y mujeres embarazadas; y gestionar el conocimiento en salud nutricional.
Dentro del recorrido que abarca la creación, primeros pasos y crecimiento de Empresas Polar no deja de ser interesante el constatar cómo, entre plantas industriales y diversas edificaciones realizadas, se posee una variada colección de obras a la espera poder ser auscultada como base de una interesante investigación que recoja el grupo de profesionales involucrados, su relación con la firma y el origen y programación de los diferentes encargos. Por ahora, se conoce de la importante participación de la reconocida empresa Guinand & Brillembourg, C.A. en el proyecto y construcción de varias de las plantas.

De entre ellas sería imposible dejar de lado la solicitud que Mendoza Fleury le hiciera en 1952 a la ya para entonces reconocida firma de arquitectos Vegas & Galia, de proyectar una edificación que contara con una imagen corporativa impactante y acorde con el espíritu modernizador que vivía la capital de Venezuela, así como de dotarla, dada la inclinación de Mendoza hacia el espectáculo de categoría, de un teatro que sirviera de escenario para montar y presentar varias obras y revistas así como a la exhibición de cintas cinematográficas. De tal encargo surgiría el conjunto Torre Polar-Teatro del Este punta de lanza de la conversión de la plaza Venezuela en el nuevo centro de la ciudad y el cual por muchos años el Polar se convirtió en el edificio de oficinas más emblemático de la capital.
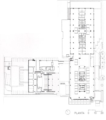
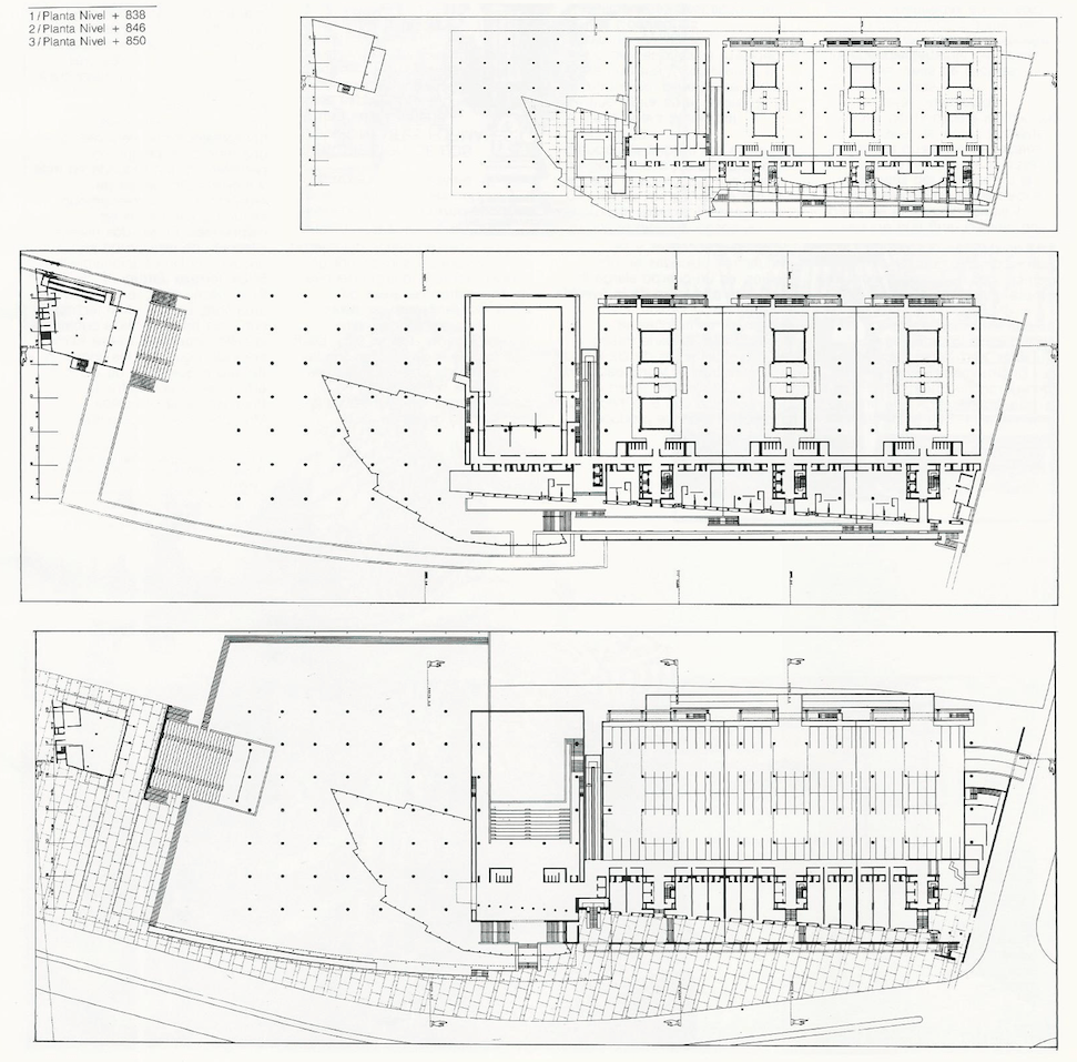
Dentro de esta interesante saga que estaría por elaborarse, ocuparía otro lugar prominente la construcción de la nueva sede, proyectada por Juan Carlos Parilli (Caracas, 1951) en 2003 y terminada de construir en 2005, cuya imagen engalana nuestra postal del día de hoy, el cual se erige como uno de los eslabones más recientes.

Parilli quien ya había sido contratado por la Polar para llevar a cabo, con la colaboración de Francisco Arocha y Tabaire Pérez, la remodelación interna del Teatro del Este (1985-1987) con miras a su revitalización, disminuyendo su aforo e incorporando un bar-restaurante, locales comerciales, un centro de comida rápida y un bar con escenario, espacio para mesas y pista de baile, acomete la solicitud de diseñar la sede principal del consorcio buscando conformar una unidad con el edificio existente (ya mencionado en líneas anteriores), cuyo uso original de industria textil fue adaptado para oficinas, y que ya resultaba insuficiente para los requerimientos de la empresa.



Reinterpretar los valores formales y constructivos presentes en el noble edificio que desde ahora se busca acompañar, será una de las premisas fundamentales que asumirá Parilli en cuanto a la lectura del conjunto desde el frente que da hacia la cuarta transversal de Los Cortijos de Lourdes: “aleros de concreto, ventanas horizontales con antepechos y columnas de concreto a la vista en el plano de la fachada”, formarán parte del repertorio utilizado, según relata el proyectista en la nota publicada en Caracas del valle al mar. Guía de arquitectura y paisaje (2015).


También con respecto a la obra, que cuenta con 55.000 m2 de construcción a cargo de Modulor C.A., su autor señalará lo siguiente: “En el punto de unión entre ambos cuerpos se ubica el nuevo acceso, marcado por una gran marquesina que da paso a un espacio interno, iluminado naturalmente por tragaluces en el techo, que abarca toda la altura del edificio. Desde el atrio de entrada, ubicado en el nuevo centro del conjunto, se accede a los espacios de oficina de ambos cuerpos a través de una rampa que atraviesa un jardín interior, hacia el conjunto formado por el auditorio y las salas de reunión, ubicadas al fondo de la parcela. El jardín, centro recreativo y de intercambio social del conjunto, crea un microclima de exuberante vegetación, alrededor del cual se ubican, además del auditorio, servicios complementarios. La orientación desfavorable oriente-poniente de la parcela y del edificio existente demandó incorporar estructuras de aluminio más bajas y salientes para reducir la exposición de las fachadas, e igualmente se recurrió al uso de vegetación y celosías de aluminio para tamizar la luz en las áreas públicas y de circulación”.
Quizás valga la pena señalar que la inspiradora fachada del edificio existente a la cual hace referencia Parilli en su descripción, posteriormente fue totalmente alterada por otra compuesta de elementos modulares de aluminio en cuya composición se contempla la aparición rítmica de las ventanas ajustadas al orden modular impuesto.
Parilli, formado como arquitecto en la FAU UCV de donde egresa en 1977 de la entonces denominada Unidad Docente 5 (creada en 1972 y predecesora de la actual Unidad Docente Nueve) bajo la guiatura de Joel Sanz (1947-2013), fundó con éste (siendo todavía estudiante) una oficina en 1975 (a la cual también se incorporará Francisco -Paco- Arocha -1945-2021-), en la cual se dedicaban a participar de los variados concursos que por entonces se convocaban en nuestro país. Constituidos como S+P+A, desarrollarán una larga relación que perdurará hasta 2012 en la cual se alternaban la responsabilidad de liderar los proyectos que llegaban a la oficina por encargo o el protagonismo en los concursos en los que continuaron participando.
También compartirán la actividad docente en la Unidad Docente Nueve desde 1984, cuando Parilli gana el concurso de oposición en diseño en la FAU UCV donde ya era profesor contratado desde 1980. También ha sido profesor invitado en la Universidad José María Vargas (2000-2001), en la Universidad Simón Bolivar (1982) y al Workshop del Programa ADU 2020 en la Universidad de Tesalónica, Grecia.



Parilli dentro de S+P+A liderará, además de la nueva sede de Empresas Polar y la remodelación del Teatro del Este (ya citadas), la realización a mediados de 1990 de dos oficinas comerciales para el Banco Provincial (una en La Florida y otra en La Guaira), así como la Propuesta ganadora del Concurso de Ideas para el Palacio Municipal del Distrito Sucre del Estado Miranda (1985) y la que obtendría el primer premio en el Concurso Nacional de Ideas “La Cultura Libera al San Carlos. La transformación del cuartel San Carlos en Centro Nacional de Culturas” (2000). Actualmente Parilli continúa activo en la docencia y ejerce libremente la profesión. Mantiene vínculos con Empresas Polar recibiendo encargos dirigidos a resolver problemas puntuales de pequeña escala y cierta complejidad.
ACA
Procedencia de las imágenes
Postal, 13 y 14. CCS. Caracas del valle al mar (http://guiaccs.com/obras/edificio-sede-de-empresas-polar/)
1. Venezuela de Ayer (@venezueladeayer) (https://www.instagram.com/venezueladeayer/p/Cpx-sGDu5M2/); y wikiwand. Empresas Polar (https://www.wikiwand.com/es/articles/Empresas_Polar)
2. Empresas Polar. 80 años. Nuestra historia (https://empresaspolar.com/nuestra-historia/) ; y Empresas Polar (https://www.facebook.com)
3. Empresas Polar. 80 años. Nuestra historia (https://empresaspolar.com/nuestra-historia/)
4 y 6. Colección Crono Arquitectura Venezuela.
5. Economía En Crisis (https://economiaencrisis.wordpress.com/2016/02/15/la-historia-de-empresas-polar-y-el-origen-de-la-fortuna-de-lorenzo-mendoza/comment-page-1/); y Colección Crono Arquitectura Venezuela.
7 y 11. Captura de Google Earth.
8. 800Noticias (https://800noticias.com/chavismo-atendera-reclamos-de-los-trabajadores-de-empresas-polar) ; y Centro Tecnológico Polar. Investigación e innovación al servicio del consumidor (https://bibliofep.fundacionempresaspolar.org/media/1378252/libro-ctp_web-comprimido.pdf).
9. Caracas Cuéntame ( https://twitter.com/Caracascuentame/status/1251229964265021442)
10. Revista Punto, nº 68, abril 2000.
12. Grupo MDT. Centro Empresarial Polar (https://www.mdt.com.ve/proyecto/centro-empresarial-polar/); y CCS. Caracas del valle al mar (http://guiaccs.com/obras/edificio-sede-de-empresas-polar/)
15. Revista PUNTO, número 66-67, 1997.
16. Semanario Arquitectura HOY, nº 343, 30 de junio de 2000.


















