
La manzana de San Francisco: un palimpsesto urbano en el corazón de Caracas.
Iván González Viso
La historia de esta manzana única del centro de Caracas se revela como un potente crisol donde se funden las tensiones entre la conservación y la transformación, entre la memoria y el progreso, entre la naturaleza implacable y la resiliencia humana. Un relato condensado que ilumina las complejas capas históricas que han dado forma al corazón de la capital venezolana.
¿Puede una sola manzana, incrustada en el corazón de Caracas, narrar las complejas tensiones urbanas que históricamente moldearon el centro de la capital venezolana? La respuesta parece residir en la historia de una de sus manzanas fundacionales: aquella que albergó el antiguo convento de San Francisco. Un enclave cuya trayectoria, desde la génesis misma de Santiago de León de Caracas, se erige como un microcosmos de las dinámicas urbanísticas y sociales que han marcado la ciudad.


Desde aquel primer trazo de Juan de Pimentel en 1578, el convento franciscano ya ocupaba un lugar estratégico al suroeste de la plaza mayor. La llegada de los primeros frailes en 1565 culminaría en 1586 con la construcción del primer claustro.

En 1593, se levantaría la iglesia de San Francisco, anexa al convento bajo la dirección del maestro Alarife Antonio Ruiz Ullán. Esta edificación no solo se erigió como un centro de fervor religioso, sino que también redefinió las relaciones con su entorno al congregar a la feligresía. La relevancia del convento se perpetuó en la cartografía de los siglos XVI y XVII, figurando consistentemente en los planos de la ciudad.
Sin embargo, la solidez de su presencia se vio repetidamente amenazada por la furia telúrica que históricamente ha sacudido Caracas. Los terremotos, especialmente el devastador de 1812, exigieron labores de reconstrucción para preservar su estructura.
En paralelo a estos embates naturales, el panorama social, económico, político y religioso de la Venezuela colonial experimentaba una profunda transformación con el auge del movimiento independentista. Este proceso culminó en 1821 con el decreto de supresión de los conventos masculinos. No obstante, no sería hasta 1837 que la comunidad franciscana se vería directamente afectada, cediendo su espacio para acoger a la Universidad, la Biblioteca y el Colegio Independencia. La iglesia, sin embargo, mantuvo su función para honrar a los héroes de la independencia y para las celebraciones litúrgicas cotidianas. La clausura de los conventos abrió un abanico de nuevas posibilidades para el edificio, que se adaptó como sede de la Universidad Central de Venezuela y como espacio para actividades del Congreso.
En 1840, el arquitecto Olegario Meneses emprendió la tarea de adecuar el espacio para su nuevo cometido universitario, proyectando la parte sur con un patio abierto y arcadas clásicas, marcando una nueva etapa en la vida del antiguo convento. Estas transformaciones no fueron exclusivas de este edificio. Numerosas estructuras del casco central de Caracas sufrieron destinos similares, evidenciando una valoración del patrimonio colonial por su ubicación estratégica, su potencial de uso y sus cualidades espaciales intrínsecas.
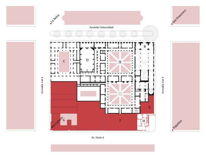
Paradójicamente, a pesar de su desaparición como centro religioso, la presencia urbana del conjunto arquitectónico se afianzó aún más en la memoria colectiva con la consolidación de un sistema de nomenclatura de esquinas basado en hechos históricos, edificaciones emblemáticas o leyendas urbanas. Este sistema, formalizado en el plano de 1843 de Ángel J. Jesurum, legó el nombre del convento-iglesia a la «esquina de San Francisco», bautizando así una manzana delimitada por las esquinas de San Francisco, Mercaderes, Pajaritos y la Bolsa. La plantación de una ceiba hoy centenaria frente al antiguo convento en 1866 añadió un nuevo hito que reforzó aún más la importancia de esta esquina en el imaginario caraqueño.


Tras la designación de Caracas como capital de la República, la necesidad de un cambio de imagen se hizo patente, materializándose durante el periodo de Antonio Guzmán Blanco. En 1872, bajo su mandato, se ordenó la demolición de las construcciones adosadas al lado norte del antiguo convento de San Francisco, dando paso a un proyecto de renovación urbana influido por el modelo francés. El objetivo era crear una nueva fachada acorde a las ideas de transformación que consolidarían el entonces llamado Bulevar Guzmán Blanco, impactando significativamente la estructura de la capital venezolana.




Esta intervención fue publicitada como un logro gubernamental en el plano topográfico de Estevan Ricard de 1874. Paralelamente, se proyectó frente a la manzana del convento el Palacio Federal Legislativo, buscando generar un nuevo espacio urbano para la ciudad. El ingeniero Juan Hurtado Manrique (1837-1896) fue el encargado de esta operación, concentrándose entre 1873 y 1875 en la creación de la nueva fachada norte de la Universidad. Esta comprendía una torre neogótica de 35 metros y cuatro cuerpos, coronada por una flecha octogonal, y el edificio del Museo Nacional, también de estilo neogótico. Este importante conjunto urbanístico, opuesto al Palacio Legislativo, se complementó con un bulevar arbolado y la estatua ecuestre de Guzmán Blanco. Asimismo, se remodelaron los jardines interiores del convento, incorporando un trazado diagonal y esculturas en homenaje a Vargas y Cagigal. Posteriormente, en 1883, Hurtado Manrique se ocupó de trabajos internos de ampliación del Museo Nacional y de la adecuación del conjunto para la exposición del Centenario del Natalicio del Libertador. El espacio se preparó para exhibir los avances técnicos, agrícolas y artísticos del país, en un intento por replicar las exposiciones universales que se celebraban en Europa desde 1851.


A comienzos del siglo XX, en 1911, la manzana experimentó una nueva transformación con la inserción de la Biblioteca Nacional, obra del arquitecto Alejandro Chataing (1873-1928), como parte de las “Obras del Centenario” de la Independencia de Venezuela.

Chataing conservó la fachada neogótica de Hurtado Manrique, pero construyó un edificio completamente nuevo en cuanto a materiales, complementando otras intervenciones en los espacios universitarios. Chataing demostró un hábil manejo de los materiales, introduciendo el hormigón armado, elementos de estructura metálica y una ligera cubierta metálica en la sala de lectura. Ganador del proyecto por concurso, logró, mediante la cubierta translúcida y las rejas acristaladas, una iluminación uniforme en el interior, emulando salas de lectura como la de la Biblioteca Nacional de París. Considerado un edificio de estilo beaux-arts, la sala de lectura ocupaba un lugar central, rodeada por el depósito de libros. El hormigón se erigió como la solución para lograr un marco rígido capaz de sostener la estructura metálica. El carácter de esta arquitectura, que experimentaba nuevamente con el cemento, no dependía directamente del sistema constructivo, sino de la luz cenital y de la colección de libros visible entre los pilares de soporte de la gran cubierta, evocando la sala de lectura de la Biblioteca del Congreso en Washington. Cabe destacar que las “Obras del Centenario” fueron esenciales para el desarrollo de nuevas técnicas en la arquitectura venezolana.

El regreso de la Compañía de Jesús a Caracas en 1922, con el objetivo de regentar la iglesia, planteó la necesidad de construir una nueva edificación en el interior de la manzana, en su lado oriental cercano a la esquina de Pajaritos. Para ello, en 1930, el Hermano Coadjutor Luis María Gogorza y Soraluce, S.J. (1875-1947), con la participación del H. Cecilio Irigoyen, construyeron al sur y adyacente a la Iglesia de San Francisco la Residencia San Francisco, un edificio de viviendas de tres pisos y doble azotea.


Con el significativo aumento de los ingresos petroleros a partir de 1935, que representaban casi el 70% de las divisas del país, se desató un acelerado proceso de modernización que también afectó a la manzana de San Francisco. Entre 1934 y 1936, se construyó el Museo Boliviano, proyectado por Carlos Raúl Villanueva. Un edificio entre las esquinas de San Francisco y La Bolsa con un patio interior destinado a albergar la colección de objetos del Libertador, cuya creación había sido ordenada por un decreto de Juan Vicente Gómez en 1911. Inaugurado el 19 de abril de 1936 por el Presidente Eleazar López Contreras, el edificio de estilo art déco irrumpió en la esquina sureste de la manzana con un nuevo lenguaje que se extendería a otras manzanas del centro de la ciudad.
A principios de los años cuarenta, Caracas experimentaba un rápido crecimiento hacia la periferia, extendiéndose hacia el este y rompiendo el esquema de centralidad que se había mantenido durante siglos. Paralelamente, el casco fundacional sufría grandes transformaciones fruto de presiones demográficas, sociales y económicas, permitiendo a nuevas empresas constructoras demoler antiguas edificaciones para construir nuevas tipologías atadas la temprana modernidad arquitectónica. En 1943, el arquitecto español exiliado en Caracas, Rafael Bergamín, proyectó y construyó a través de su empresa Velutini y Bergamín C.A. un edificio residencial y comercial en la esquina suroeste de la manzana, la esquina de Mercaderes. Este edificio de planta irregular y corte modernista, con patios interiores y un volumen de tres cuerpos verticales, definió la esquina con su cuerpo más alto de forma curva y seis plantas, integrándose al conjunto urbano de la manzana con un lenguaje que se extendería a otras áreas del centro de la ciudad.

A pesar de la importancia histórica de la manzana y del antiguo convento, ellos no escaparon a la vorágine por modernizar la ciudad, pues en 1956, el edificio fue mutilado para adaptarse a la inserción de las nuevas torres del Centro Simón Bolívar, que se convertirían en el nuevo emblema de la capital.

De esta forma, la manzana se fue transformando progresivamente con intervenciones de renombrados arquitectos, a los que se sumó posteriormente Luis Malaussena en 1953, quien realizó modificaciones en la Iglesia, cambiando los techos, colocando vigas de carreto y renovando el pavimento de mármol y los altares. Luego, con el traslado de la Universidad Central de Venezuela al moderno campus proyectado por Carlos Raúl Villanueva en terrenos de la antigua Hacienda Ibarra, el antiguo convento pasó a tener un nuevo uso como sede del Palacio de las Academias, incorporándose también en su interior espacios para la Corte Suprema de Justicia. Ya en el temprano siglo XXI, en 2007, Alessandro Famiglietti tuvo la oportunidad de rehabilitar y dotar de un nuevo programa al antiguo Museo Boliviano de Villanueva, incorporando un núcleo de circulación transparente bajo una lógica contemporánea, devolviéndole su valor urbano a la esquina de Pajaritos.


Con las intervenciones de Hurtado Manrique, Chataing, Villanueva, Bergamín y Famiglietti, la manzana de San Francisco mantuvo su escala, pero adquirió nuevas lecturas formales con piezas y estilos diversos, que respondieron a la presencia monumental del Palacio Federal Legislativo, y la construcción del Centro Simón Bolívar.
Si bien a Hurtado Manrique y a Chataing se les puede atribuir gran parte de la imagen patrimonial e icónica que hoy tiene la manzana de San Francisco en el imaginario caraqueño, esta pieza urbana, lejos de sostenerse bajo una visión puramente patrimonial, es hoy el resultado de múltiples “capas de escritura” aplicadas sobre la misma “superficie” urbana.


En ella tanto el antiguo convento como la iglesia de San Francisco se perciben atrapadas entre dos tiempos históricos: el de finales del siglo XIX, donde se promovió el estilo francés, y el de mediados del siglo XX, donde primó la forma moderna. En ella son visibles los profundos cambios edilicios que experimentó Caracas durante más de 400 años.
Nota
Este texto fue adaptado por su autor para el boletín Contacto FAC tomando como base el ensayo «La manzana del Convento de San Francisco de Santiago de León de Caracas: microcosmos de tensiones urbanas y visiones arquitectónicas», que forma parte del capítulo I del libro Las vidas de San Francisco: arquitectura, patrimonio y ciudad de Rodrigo Pérez de Arce y Emilio de La Cerda (editores). Ediciones UC, Centro UC, 2023.
IGV
Procedencia de las imágenes
1. Captura de Google Earth.
2, 3, 7 y 8. Irma De-Sola Ricardo. Contribución al estudio de
los planos de Caracas. La ciudad y la provincia 1567-1967, 1967.
4, 5, 6, 9 y 12. Graziano Gasparini y Juan Pedro Posani. Caracas a través de su arquitectura, 1969
10. Caracas Antigua (https://www.facebook.com/story.php?story_fbid=524222100669446&id=100092449826410)
11 y 15. Colección Iván González Viso.
13. Archivo de Fotografía Urbana. Foto: Luis Felipe Toro s/f.
14 y 18. Colección Crono Arquitectura Venezuela
16. CCS. Caracas del valle al mar. Caracas monumental (https://guiaccs.com/planos/de-pueblo-ciudad-caracas-monumental/).
17. Henry Vicente. Arquitecturas desplazadas. Rafael Bergamín y las arquitecturas del exilio español en Venezuela. (Tesis doctoral). Universidad Politécnica de Madrid (2014).
19-1, 19-2 y 19-3. Iván González Viso. «La manzana del Convento de San Francisco de Santiago de León de Caracas: microcosmos de tensiones urbanas y visiones arquitectónicas», en Rodrigo Pérez de Arce y Emilio de La Cerda (editores). Las vidas de San Francisco: arquitectura, patrimonio y ciudad de . Ediciones UC, Centro UC, 2023.
20. Iván González Viso (elaboración propia); y Captura de Google Earth.









































