
Archivos diarios: 5 de abril, 2020
ALGO MÁS SOBRE LA POSTAL Nº 204

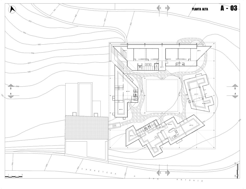
La Villa Lutheon o Casa “El Amarillo” (sector de San Antonio de los Altos, estado Miranda, donde se ubica), proyectada en 1975 por Jorge Castillo (nacido en Maracaibo en 1933, egresado de la UCV en 1959, Premio Nacional de Arquitectura 1999) como vivienda para él y su núcleo familiar (compuesto por su esposa la antropóloga Helia Lagrange y ocho hijos varones), es uno de los numerosos casos dentro de la historia de nuestra arquitectura donde se ha demorado su descubrimiento y abordaje crítico y, en consecuencia, su consideración como pieza que debería ocupar el más alto sitial dados sus valores conceptuales, constructivos, espaciales y ambientales.

Podríamos decir que su “presentación en sociedad” se dio en la exposición “La casa como tema. Primera exposición antológica de la casa en Venezuela”, organizada por la Fundación Museo de Arquitectura (que se encargó de la curaduría asumiendo Celina Bentata y William Niño la Coordinación General) y el Museo de Bellas Artes de Caracas en los espacios de esta última institución del 15 de octubre y el 26 de noviembre de 1989.
Allí dentro de las categorías que se recogen en el excelente catálogo editado para la ocasión, realizado bajo la coordinación editorial de Martín Padrón, se ubicó a “El Amarillo” como parte del capítulo titulado “Apuntes para una casa ideal” cuyo texto explicativo elaboró con lucidez Jorge Rigamonti quien, luego de un interesante paseo que mezcla lo histórico, lo tipológico y lo contextual a favor de lo esencial, concluye lo siguiente: “La casa ideal, como suma de estímulos y lenguajes y no síntesis de la composición arquitectónica impuesta desde afuera, debería quizás representar nuestra interioridad más profunda. Donde prevalezca lo doméstico y lo figurativo en relación con las nuevas tecnologías, los nuevos lenguajes expresivos de la sociedad y al mismo tiempo con las necesidades psicofísicas del hombre. Quizás debamos recomponer el nuevo escenario doméstico tomando en cuenta las nuevas sensibilidades de la organización de las relaciones humanas, uniendo extremos opuestos, lo ambiental, los objetos, los colores, los olores y los circuitos mentales y simbólicos con los territorios imaginarios que definen el lugar como alternativa al contexto. Entender el significado sencillo y siempre nuevo del vivir… y quizás finalmente, debamos preferir a los códigos históricos, los nuevos códigos de la cultura actual, para algunos menos nobles pero sin duda más vitales”.
En la exposición, la ficha que se elaboró (ubicándola erróneamente en El Hatillo) describía a “El Amarillo” como “Utopía constructible (sic) en el tiempo. En ella los recintos habitables individualmente por cada uno de los integrantes de la familia, dibujan una conciencia del espacio de la casa como un ámbito abierto, aglomeración de Arquitecturas en torno a un lugar, la Plaza.
Aquí la tipología de la casa no está definida a partir de un espacio único abierto en su patio central, en su lugar la definición de las unidades habitables, independientes, perfeccionadas a partir de los gustos y las individualidades establecen la idea del pequeño centro comunitario. Lo asombroso de su construcción es que a pesar de estar sustentada espacialmente en una retícula tridimensional que garantiza su crecimiento y variabilidad, nunca se perpetúa como una barrera que limita las posibilidades de expresar independientemente los vuelos, ansiedades y gustos personales”.





Sin embargo y a pesar de la acertada aproximación que de “El Amarillo” se hizo en la muestra, durante unos cuantos años más siguió pasando desapercibida hasta que entre 2003 y 2005 Juan Carlos Castillo Lagrange, uno de los ocho hijos del proyectista de la vivienda, la convirtió en objeto de estudio. El resultado de su aproximación indagatoria se tradujo en un trabajo que presentó para ascender a la categoría de profesor asistente en el sector diseño dentro del escalafón universitario en la FAU UCV. Desdoblado en su triple rol de habitante-arquitecto-hijo de quien diseñó la edificación, Juan Carlos Castillo va develando múltiples facetas de una casa que ofrece desde lo vivencial, lo disciplinar y lo afectivo la oportunidad de asomar la idea de que se trata de una aldea que se ha ido transformando ante los ojos y disfrute de quienes han vivido y crecido allí. Un lugar en el que temas como el cobijo que provee la cubierta, la organización en torno a un espacio central, la pugna entre una esquema totalizador y las partes que lo integran buscando independencia, y la indefinición de sus límites donde la relación interior-exterior alcanza niveles tales que han llevado al propio investigador a expresar “Esta es una casa en la cual no se sabe si sales para adentro! o si entras para afuera!..”, sirven junto a la amplia y minuciosa documentación que acompaña al trabajo de excelente excusa para apropiársela. Para la presentación del trabajo Juan Carlos Castillo elaboró planos de planta, secciones, fachadas y modelado 3D a partir de un riguroso levantamiento arquitectónico en el cual se dibuja la configuración de la vivienda cuando la familia ocupa la casa según se afirma en https://gramho.com/explore-hashtag/lutheonvilla, donde se añade: “No son planos de proyecto, tampoco su evolución. Si algo tiene esta casa es un sentido efímero y cambiante en el tiempo. Se trata de una investigación de fuente primaria, que ha servido de consulta para innumerables experiencias docentes tanto en Venezuela como en el extranjero.”




Desde entonces “El Amarillo”, gracias a su divulgación en el ámbito académico, se ha convertido en lugar de peregrinación de profesores, arquitectos y estudiantes donde de forma generosa la familia ha abierto sus indescifrables “puertas”. Su paulatina conversión en objeto de culto se ha acentuado con el aporte de Jorge Andrés Castillo Lagrange, otro de los hijos (también arquitecto y profesor) del proyectista, quien ha montado una página (https://lutheonvilla.com/) donde busca “… hacer un homenaje a una obra única de la arquitectura en la que tuvimos la dicha de vivir. Varias generaciones crecimos en ese ambiente y nos complace recordar las fascinantes experiencia de la familia y la arquitectura con amigos y allegados”, bellamente ilustrada con excelentes fotos de su autoría e información gráfica proveniente del Trabajo de Ascenso de su hermano. Otros dos buenos fotógrafos, Julio César Mesa y Alfonso Paolini también han convertido a “El Amarillo” en lugar a observar y registrar desde las múltiples facetas que ofrece.
Más adelante, en 2013, cuando dentro del proyecto “Registro nacional voz de los Creadores”, Fundación Casa del Artista, Ministerio del Poder Popular para la Cultura, se entrevista a Jorge Castillo buscando darle espacio, luego de ser distinguido en 1999 con el Premio Nacional de Arquitectura (ver https://www.youtube.com/watch?v=Ecam2m4baKY), este maestro de nuestra arquitectura señala que no le gusta que a sus obras se les ponga fecha. Piensa que esta “mala costumbre” le quita a los edificios parte de su encanto. Prefiere que su obra pertenezca más al territorio de lo atemporal, de lo perdurable. Cree en una arquitectura que, muy próxima al arte, no necesariamente debe ser reflejo de su época en la que se hace aunque inevitablemente si lo sea. También revela que a comienzos de los años 1970 cuando regresa de Londres en compañía de su esposa y toda la familia, con el impacto la construcción del Centro Georges Pompidou muy próximo, es cuando emprende el proyecto de la casa “El Amarillo”. Con algo de rubor por la atracción que empezó a ejercer la casa y valorando la complicidad que en ello tuvo su hijo Juan Carlos (“mucho mejor profesor que yo”), expresa sobre la vivienda: “El nombre de casa no le va. Es más bien un área donde se desarrollaron ocho muchachos de una manera fresca, espontánea y en contacto con la naturaleza”. Sin decirlo, Castillo incorpora a la hora de apreciar la casa otra importante categoría conceptual: lo lúdico, presente en la medida que es muy difícil evitar imaginarse ocho varones jugando y correteando en sus espacios.

También en 2013 María Elena Hernández, docente e investigadora de la FAU UCV presenta en las XXXI Jornadas de Investigación del Instituto de Desarrollo Experimental de la Construcción IDEC la ponencia “Semejanzas y contrastes en el proceso de transformación de la vivienda unifamiliar formal y vivienda unifamiliar informal”, donde “El Amarillo” se convierte en uno de los tres ejemplos analizados. Hernández compara en su trabajo “el tiempo imaginario de la forma construida” con “el tiempo modificado”, desprendiéndose interesantes apreciaciones subjetivas que corroboran y complementan buena parte de lo que hemos apuntado en líneas anteriores. Así, en cuanto a la primera variable expresa: “La forma y uso se contemplan libres, en plena vinculación con el exterior, no se perciben los cerramientos como límite sino como componentes de relación. (…) Los procesos constructivos de la vivienda se reconocen participativos, los individuos técnicos integrados a grupos no especializados. El proceso constructivo como espacio de aprendizaje. (…) Los modos de vida son reflejo de una filosofía de vida, se trasladan y vinculan argumentos esenciales del ser y existir. La casa concebida como techo ‘madre’, estructura de protección que alberga la familia. La amplitud, flexibilidad, libertad y autonomía se entienden como formas de comprender los modos de vida y los modos de ser de este grupo familiar”. Y en lo relativo a la segunda variable: “Una casa exige un compromiso en su mantenimiento, los gastos destinados a tal fin suelen ser constantes y en oportunidades costosos, esto conlleva a operaciones en etapas, razón por la que en oportunidades se percibe una casa como una estructura en pleno proceso constructivo. (…) La casa no muestra ampliaciones o modificaciones de su estructura funcional-espacial original. Al modificarse la estructura de sus ocupantes o simplemente desaparecer alguno de ellos, tiende a volver a sus espacios esenciales y abandonar temporalmente otros recintos”, para finalmente concluir, “La casa es el hogar y el hogar es una estructura sicológica afectiva, entonces la casa genera emociones y afectos familiares, se transforma por la huella de sus ocupantes. Esta casa fue construida como una aspiración personal de los padres para con sus hijos, un bien heredable, por lo que posee un trascendente valor intangible. El valor material de la construcción aunado al fragor del proceso inicial del hacer, se transforma en el transcurso del tiempo, en un valor de significado subjetivo y más personal.”

Finalmente, la “consagración” llega para “El Amarillo” en 2015 cuando, acompañada de un impecable trabajo fotográfico en blanco y negro que aportó directamente el arquitecto (del que hemos escogido una imagen para ilustrar la postal del día de hoy), es una de las obras seleccionadas para representar a Venezuela en la exposición “Latin America in Construction: Architecture 1955–1980” (Latinoamérica en Construcción: Arquitectura 1955-1980) que se exhibió en el Museo de Arte Moderno de Nueva York (MoMA) entre el 29 de marzo y el 19 de julio de ese año. En cuanto al enigmático nombre de Lutheon, cuyo origen no nos ha sido posible descifrar, quedará como interrogante a develar para la próxima vez que tengamos la oportunidad de acercarnos a esta pieza que nos atreveremos a incluir dentro de las casas-manifiesto que hacen de la arquitectura una profesión sin duda aleccionadora y apasionante.
ACA
Procedencia de las imágenes
Postal, 1, 2, 3, 4, 6 y 8. https://lutheonvilla.com/imagenes/
5. https://goljurios.blogspot.com/2009/05/casa-el-amarillo-el-amarillo-venezuela.html?view=snapshot
7. @juliotavolo
9. https://www.moma.org/collection/works/184952?artist_id=46384&locale=es&page=1&sov_referrer=artist
Postal nº 204

Para visualizar la imagen en mejor resolución VER AQUÍ
NOVEDADES EDITORIALES DE AQUÍ Y DE ALLÁ

ANIMALES ARQUITECTOS
Juhani Pallasmaa
Traducción: Pilar Vázquez Álvarez
Editorial Gustavo Gili
2020
Nota de los editores
El ser humano no es el único animal arquitecto. Prácticamente en todo el reino animal puede encontrarse cierto grado de hábito constructor y las especies con mayor capacidad constructora están distribuidas en todos los filos, desde los protozoos hasta los primates.
Asombrado desde niño por la labor arquitectónica de los otros animales, Juhani Pallasmaa repasa en este libro la actividad constructora de innumerables especies poniendo el foco en las funciones de las obras arquitectónicas y en los métodos constructivos. El texto, bellamente ilustrado con grabados decimonónicos, nos invita a resituar la labor arquitectónica del ser humano a la luz de las creaciones del resto de los seres vivos y a repensar la esencia de una de las actividades animales donde se aúnan necesidad e inventiva a la perfección.
ACA
VALE LA PENA LEER
Arresto domiciliario
Luis Fernández-Galiano

24/03/2020
Tomado de arqutecturaviva
El confinamiento se sobrelleva mejor que la incertidumbre. Ejercitándonos en el oficio de vivir, el espacio privado adquiere un sentido diferente, porque el refugio íntimo se transforma en celda penitenciaria, y la vieja pregunta retórica —¿privado de qué?— se responde de inmediato: privado de contacto con los otros. En Huis clos, una obra que se estrenó en el París de la ocupación, Jean-Paul Sartre representa el infierno como un cuarto sin ventanas donde se constata que ‘L’enfer, c’est les autres’. Evitando hoy el contacto para dificultar la propagación vírica, descubrimos que, a diferencia de lo que asegura el dramaturgo, el cielo son siempre los otros. Obligados al aislamiento social, y enfrentados al enclaustramiento doméstico, sentimos como una amputación la ausencia de vínculo físico con nuestros semejantes, pero nada es comparable a la ansiedad que suscitan las sombras que se proyectan sobre el futuro personal y colectivo. Con las ciudades en toque de queda, participamos en la liturgia solidaria de los balcones y consumimos bulímicamente la información de los medios y el chisporroteo de las redes, procurando atisbar el horizonte con los ojos entornados. Ignorantes del censo definitivo de las víctimas, fingimos confiar la supervivencia a las exigentes rutinas de protección, pero en el fondo nos sabemos arrastrados por el torbellino del azar. Es posible que el mundo que emerja de esta convulsión vírica sea más sensato en el consumo de recursos, más justo en su reparto y más seguro frente a las catástrofes: vivir con menos no tiene que significar vivir peor. Sin embargo, también es verosímil que este nuevo paisaje económico, social y geopolítico esté marcado por el desorden y el conflicto, por el auge autoritario y el agostamiento de la libertad, ya que la pandemia ha mostrado la anemia de la gobernanza nacional y europea, por no mencionar la ausencia de gobernanza global. Buscando guía y consuelo en la memoria personal, recuerdo a mi padre microbiólogo y a su héroe de ficción, el doctor Arrowsmith, protagonista de la gran novela de Sinclair Lewis y de la posterior película de John Ford, un médico e investigador que se enfrenta a una epidemia de carbunco y después a otra de peste bubónica, y que refleja bien los dilemas éticos de la ciencia en situaciones límite. Hoy los comentaristas recorren reiteradamente la historia literaria de las pestes, desde Boccaccio hasta Camus, y subrayan tanto la angustia de las poblaciones como los esfuerzos del personal sanitario, pero quizá no se pone suficiente énfasis en la investigación biomédica que al cabo nos suministra remedios y vacunas. En la soledad de sus laboratorios, y en la comunidad virtual de sus hallazgos, esos científicos ofrecen desde su confinamiento las briznas de certidumbre que permiten hacer frente a las incógnitas biopolíticas del tiempo que viene.
ACA
ES NOTICIA
Los aeropuertos transformados en aparcamientos para aviones



Tomado de arquitecturaviva.com
29/03/2020
Miles de aviones se han tenido que dejar en tierra por la falta de operaciones aéreas por el coronavirus y, en estas nuevas circunstancias, las aerolíneas afrontan un nuevo problema: dónde encontrar un lugar para aparcarlos. En todo caso ello ha generado imágenes que difícilmente se repetirán cargadas de un alto contenido estético.
ACA