
2003• Se celebra en la Pontificia Universidad Católica de Chile, en Santiago de Chile, durante los días 7, 8 9 y 10 del mes de octubre, el Seminario Internacional Patrimonio Moderno. Una herencia reciente «Ciudad Universitaria de Caracas Patrimonio de la Humanidad», evento auspiciado por el Programa de Patrimonio Arquitectónico, Urbano y del Paisaje, Facultad de Arquitectura, Diseño y Estudios Urbanos, de la antes citada universidad; por la Facultad de Arquitectura y Urbanismo de la UCV; la Embajada de Venezuela en Chile; el Hotel Neruda, Santiago de Chile; Eurest Alfin y Viña Santa Carolina.
El seminario fue presentado por el arquitecto chileno, profesor Fernando Pérez Oyarzun, participando por parte de Venezuela presentando los siguientes temas: Juan Pedro Posani «La Ciudad Universitaria de Caracas en la obra de Carlos Raúl Villanueva; Nancy Dembo «La Ciudad Universitaria de Caracas, Laboratorio de Ingenierías»; Ana Loreto «COPRED. Un Laboratorio para la Gestión del Patrimonio¨; Frank Marcano «La Ciudad Ideal de la Modernidad: Una lectura desde lo Urbano»; Ana María Marín «Valores Excepcionales de la Ciudad Universitaria de Caracas¨; Silvia Hernández de Lasala «Villanueva y la Arquitectura de la Ciudad Universitaria de Caracas»; y Alberto Sato «La Síntesis de Carlos Raúl Villanueva».
Al término de las presentaciones se llevó a cabo una interesantísima mesa redonda.
Como complemento del evento se realizó en el Campus Lo Contador una exposición fotográfica de la Ciudad Universitaria de Caracas.
HVH

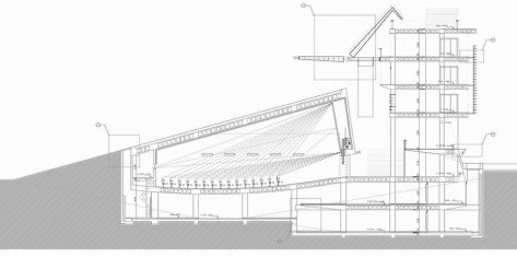
2000• El día 11 de agosto, el Comité Asesor del Concurso Privado de Ideas convocado por la Cinemateca Nacional, integrado por los arquitectos Abner Colmenares, Decano de la Facultad de Arquitectura y Urbanismo de la Universidad Central de Venezuela; Carlos Reimers, Coordinador de la Carrera de Arquitectura de la Universidad Simón Bolívar; Juan Pedro Posani y Gustavo Legórburu, Premios Nacionales de Arquitectura; y Lourdes Colmenares, vicepresidenta del Colegio de Arquitectos de Venezuela, seleccionó como la propuesta ganadora del concurso la presentada por los arquitectos Marcos Sanoja Rial y José Luis Hernández.
El Concurso había tenido dos etapas, una primera en la cual se seleccionó de un grupo de veinte reconocidos profesionales a cinco arquitectos o grupos de arquitectos: Alejandro Borges, Franco Micucci, Andrea Parga, Francisco Martín y -quien resultara el ganador- el equipo conformado por Marcos Sanoja y José Luis Hernández.
La propuesta ganadora, a ser construida en un terreno de 2.400 m2, cedido en concesión de uso en 1995 por la Cámara Legislativa del Municipio Libertador durante la administración del Alcalde Antonio Ledezma, tendrá tres salas de proyección de cine para 340, 190 y 90 espectadores, área de exposiciones, biblioteca, tienda, cafetería, estacionamiento para 80 vehículos y el área de oficinas de la institución.
El proyecto ganador del concurso fue exhibido en la Galería de Arte Nacional y aún espera por ser construido.
HVH

2004• La Alcaldía de Chacao concluye la construcción del Ambulatorio Chacao, ubicado en la avenida Mohedano (frente a la Plaza Bolívar), proyectado por el arquitecto Francisco Bielsa (FAU UCV, promoción 30A/ 1982), quien contó con la asistencia de los arquitectos Carolina Trujillo, Elena, Dayoub, Bernardo Mora, Cristmar Betancourt, María Andreína Dommar, Jane Sanjuanelo y Hanna Narvaéz; desempeñándose como Coordinadores del Proyecto los arquitectos Ines Nutt y Jeymi Sivoli y como Coordinador de la obra el también arquitecto Carlos González.
El Centro funciona bajo la modalidad de citas previas, contando con distintas especialidades y equipos médicos, recibiendo mayoritariamente pacientes de la tercera edad.
HVH
Nos interesan temas relacionados con el desarrollo urbano y arquitectónico en Venezuela así como todo lo que acontece en su mundo editorial.