
Para visualizar la imagen en mejor resolución VER AQUÍ

Para visualizar la imagen en mejor resolución VER AQUÍ

Miguel Braceli recibe una comisión del Percent for Art Program en Nueva York
Fuente: El Nacional, VAM
El arquitecto y artista venezolano Miguel Braceli recibió una comisión para desarrollar una obra de arte público del Percent for Art Program, del Departamento de Asuntos Culturales de la Ciudad de Nueva York. El proyecto, a ser ubicado en el muelle de Tompkinsville en Staten Island, consolida en una obra permanente de gran escala su investigación sobre realidades geopolíticas, conflictos locales y migración, hasta ahora desarrollada de manera efímera por el artista a través de intervenciones colectivas y proyectos participativos.
En esta ocasión, un primer panel de jurados revisó el trabajo de 26 artistas nacionales e internacionales, de los cuales se invitó a 4 finalistas a desarrollar una propuesta específica.
La selección final, realizada por un grupo de curadores y artistas invitados, especialistas y directivos del programa, así como de representantes de la comunidad, escogió como proyecto ganador la propuesta conceptual de Braceli: una intervención de gran formato que aborda temas de inmigración y naturaleza, sobre el frente Marítimo de Staten Island, que dibujará un nuevo icono en el paisaje de Nueva York.
Vaya para Miguel desde aquí nuestras sinceras felicitaciones, nuestros deseos porque siga cosechando éxitos y nuestro reconocimiento.
ACA

1932• El Museo de Arte Moderno MoMA de Nueva York, EEUU. establece el primer Departamento de Curaduría del mundo dedicado a la arquitectura y el diseño, reconociendo así su importante rol cultural junto a medios tradicionales como la pintura y la escultura.
HVH
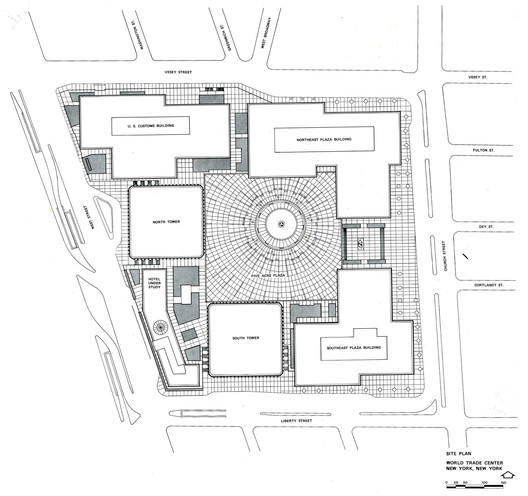
… 4 de abril pero de 1973 se inaugura el World Trade Center de Nueva York.

Por cumplirse el próximo 11 de septiembre veinte años de su destrucción mediante un atentado terrorista que conmocionó al mundo, para el World Trade Center se estableció sin duda un antes y un después marcado por la tragedia: el antes corresponde al proyecto original inaugurado tal día como hoy en 1973 y el después a otro conjunto de edificaciones que asumió el mismo nombre y ocupó el mismo lugar del anterior, cuyo proyecto y realización se emprendió muy poco tiempo después y que hoy se encuentra prácticamente finalizado.

Así, el World Trade Center “original” estuvo conformado por las que se conocieron como las “Torres Gemelas” norte y sur (identificadas como WTC 1 y 2) y otras cinco edificaciones que continuaban la misma nomenclatura. Si la construcción de los emblemáticos rascacielos se inició el 5 de agosto de 1966, finalizándose el primero en diciembre de 1970 y el segundo en julio de 1971, los otros cinco componentes se ejecutaron entre 1975 y 1987. En total, sobre una supermanzana de 65.000 m2, se levantaron 1.240.000 metros cuadrados de oficinas de las cuales cada torre albergaba 350.000. El costo de realización para entonces fue de 900 millones de dólares. El propietario del complejo era la Autoridad Portuaria de Nueva York y Nueva Jersey.
Una vez concluidas, las torres de 110 pisos cada una pasaron a ocupar el primer lugar como las edificaciones más altas del mundo desplazando el que para entonces y durante cuarenta años había ostentado dicha posición: el Empire State Building (1931). Trabajaron allí tras su apertura cerca de 50.000 personas y se calculaba un desplazamiento en general por sus espacios de unas 200.000 diarias dada su estratégica ubicación en el corazón del distrito financiero de Nueva York.
La idea de establecer un “Centro Mundial del Comercio” en el Bajo Manhattan se remonta a 1943 cuando se inician los planes para el proyecto manteniéndose en suspenso durante casi 20 años en los que se le dio prioridad al desarrollo del centro de Manhattan. Cuando a comienzos de los años 60 se retoma la propuesta comenzaron negociaciones ligadas a alcanzar la mejor localización, encontrándose una dura resistencia de parte de la Gobernación de Nueva Jersey por motivos relacionados con el desplazamiento de pasajeros desde esta localidad que tenían en el frente que ocuparía inicialmente el complejo su lugar de llegada. El impasse se destrabó cuando la Autoridad Portuaria decidió trasladar el proyecto del World Trade Center al sitio del edificio de la Hudson Terminal, en el lado oeste del Bajo Manhattan, una ubicación más conveniente para los pasajeros de Nueva Jersey que llegaran por el PATH (nombre del ferrocarril de la Autoridad Portuaria Trans-Hudson). El consenso que se debía alcanzar entre las diferentes autoridades involucradas tuvo que ver, también y muy especialmente, con asuntos relacionados con los impuestos.

Como toda operación de gran envergadura se requirió para el World Trade Center de un cuidadoso proceso de planificación y construcción que no sólo cumpliese con los requerimientos del propietario, la complejidad del programa y las ordenanzas de la ciudad sino que lograse resolver los problemas técnicos y logísticos inherentes al diseño de edificaciones de una altura para entonces no enfrentada. Es así como a comienzos de la década de los años 1960 al equipo conformado por Minoru Yamasaki y Asociados y Emery Roth e Hijos se le encarga la realización del proyecto que permitirá a Minuro Yamasaki (1912-1986) arquitecto norteamericano de padres japoneses, asumir el liderazgo del mismo. El ingeniero estructural sería Leslie Robertson de la firma Worthington, Skilling, Helle & Jackson, y la construcción estaría a cargo de Tishman & Consruction Company.
Según Wikipedia, “el diseño de Minoru Yamasaki para el World Trade Center, revelado al público el 18 de enero de 1964, mostraba para las torres una base cuadrada de aproximadamente 63 metros de cada lado. Los edificios fueron diseñados con ventanas estrechas de 46 centímetros de ancho en las oficinas, lo cual reflejaba el miedo a las alturas de Yamasaki así como su deseo de que los inquilinos se sintiesen seguros dentro de los edificios. El diseño de cada torre contaba con fachadas revestidas en aleación de aluminio, cuyas piezas se ensamblaban una a una a medida que las torres ganaban altura.”

Uno de los escollos que tuvo que sortear Yamasaki y su equipo fue el relacionado con la necesidad de alcanzar los 110 pisos de altura con un sistema eficiente de ascensores ya que en la medida que más alto sea un edificio mayor número se necesitan para servir al mismo y mayor área de planta ocupan. La innovadora solución adoptada consistió en un nuevo sistema con dos vestíbulos especiales (ubicados en los pisos 44 y 78 de cada torre), que permitían a los usuarios pasar de ascensores expresos de alta capacidad (que se detenían solo en ciertos pisos) a un ascensor local (que se detenía en todos los pisos de una sección). Sin embargo, a pesar del incremento de espacio utilizable por piso que se logró, en conjunto el World Trade Center llegó a contar con 95 ascensores entre expresos y locales.

El diseño estructural fue el otro gran desafío que se hubo de afrontar para lo cual se utilizó el sistema de “tubo dentro del tubo” con un centro conformado por el núcleo de ascensores, escaleras y servicios de 27 por 41 metros que contenía 47 columnas de acero que se amarraba a una fachada conformada, según recogemos de Wikipedia, “por fuertes y resistentes columnas de acero perimetrales, conocidas como celosías Vierendeel, que se encontraban a poca distancia una de otra, formando así una estructura de pared fuerte y rígida… La estructura perimetral, que contenía 59 columnas por lado, fue construida con el uso de piezas modulares prefabricadas, cada una compuesta de tres columnas, de tres pisos de altura, conectadas por placas de antepecho”. Justamente, el análisis del comportamiento de la estructura a raíz del impacto causado por el atentado del 11 de septiembre de 2001 ha sido ampliamente documentado para explicar el colapso que posteriormente devino.
Tras unos primeros años donde la ocupación no alcanzó las expectativas esperadas es sólo a parir de 1979 que el WTC logró alquilarse completamente. “Durante la década de 1990, aproximadamente 500 compañías tenían oficinas en el complejo, incluyendo a muchas compañías financieras… La confluencia del sótano del World Trade Center incluía al Centro Comercial … junto con una estación del PATH. La Torre Norte se convirtió en la sede corporativa de Cantor Fitzgerald, al igual que en la sede de la Autoridad Portuaria de Nueva York y Nueva Jersey«. De esta manera las torres pasaron a convertirse en símbolo del sistema capitalista y elemento infaltable del perfil de la ciudad lo cual las convirtió desde muy temprano en objetivo del terrorismo internacional.
Previo al fatídico desenlace que llevó a su total destrucción en 2001, el WTC sufrió anteriormente otros tres incidentes: el 13 de febrero de 1975 se desató un incendio en el piso 11 de la Torre Norte que se extendió a los niveles 9 y 14 no registrándose daños estructurales ya que el acero estaba recubierto por un material resistente al fuego. Asombrosamente, para entonces el edificio no contaba con sistema de rociadores para incendios; el 26 de febrero de 1993 ocurrió un atentado con carro bomba en el estacionamiento subterráneo también de la Torre Norte que produjo importantes daños abriendo un agujero a lo largo de 5 subniveles y cuyo objetivo era derribarla; en un tono diferente, en enero de 1998 “Ralph Guarino, miembro de la Mafia que había obtenido un acceso de mantenimiento al World Trade Center, formó una pandilla de tres hombres para robar más de 2 millones de dólares, que eran trasladados de un camión de la empresa Brinks al piso 11 del WTC.”

La mala fortuna relacionada con el destino final de sus edificios pareciera que persiguió a Yamasaki. Si el World Trade Center, el que le dio mayor notoriedad, tuvo el final que todos conocemos, otro gran proyecto urbanístico desarrollado entre 1954 y 1955 en la ciudad de San Luis, Misuri, los edificios residenciales Pruitt-Igoe, luego de ser diseñados y construidos siguiendo los cánones emanados de los CIAM, se vieron afectados por un descenso dramático del nivel de vida de sus ocupantes para convertirse en una zona con altos índices de criminalidad y segregación. Así, sumido en un creciente deterioro que estuvo acompañado por bajos índices de ocupación, en 1972 menos de 20 años después de su construcción el primero de los 33 superbloques de 14 pisos fue demolido por el gobierno federal. Los otros 32 restantes fueron derruidos en los siguientes dos años en momentos en que inauguraba el WTC.
El fracaso de Pruitt-Igoe le dio alas a Charles Jencks para utilizarlo como elemento central en la introducción de la primera parte de El lenguaje de la arquitectura posmoderna titulada “La muerte de la Arquitectura Moderna”, cuando de manera efectista manifestó lo siguiente: “La Arquitectura Moderna murió en St. Louis, Missouri, el 15 de julio de 1972 a las 3:32 de la tarde (mas o menos), cuando a varios bloques del infame proyecto Pruitt-Igoe se les dio el tiro de gracia con dinamita. Previamente habían sido objeto de vandalismo, mutilación y defecación por parte de sus habitantes negros, y aunque se reinvirtieron millones de dólares para intentar mantenerlos con vida (reparando ascensores, ventanas y repintando) se puso fin a su miseria. Bum, bum, bum.”

Como se sabe, Nueva York quiso pasar lo antes posible la página del atentado a las torres gemelas hasta el punto que el proceso de limpieza y recuperación del sitio llevó ocho meses, finalizando en mayo de 2002. Desde ese momento se acometió la recuperación del predio dándose origen, no sin innumerables tropiezos, a la concepción de un “nuevo” World Trade Center convocándose un concursos de ideas para el Plan Maestro que fue ganado por Daniel Libeskind. El complejo tendrá cinco nuevos rascacielos, cuatro de los cuales se han completado, un memorial y museo a las víctimas de los atentados y un centro de transporte o Transportation Hub. El edificio principal del nuevo conjunto es el One World Trade Center, el edificio más alto de los Estados Unidos desde su finalización en noviembre de 2014 diseñado según las directrices conceptuales de Libeskind con la colaboración en el proyecto de David Childs de Skidmore, Owings & Merril.

A Yamasaki aún se le puede recordar a través de la Rainier Tower de Seattle (1977) y en Madrid con su calco, la Torre Picasso (proyectada en 1974 y terminada de construir en 1988), que, habiendo sido con sus 43 plantas el edificio más alto de la capital española, posee la estampa, proporciones y reminiscencias clásicas que poseían las desaparecidas torres gemelas. De nuevo, es Wikipedia quien nos informa sobre la Torre Picasso y el estigma Yamasaki al publicar lo siguiente: “La banda terrorista ETA confesó en 2002 que derribar este rascacielos era el destino que habían planeado para los 1700 kg de explosivos cargados en dos furgonetas bomba que conducían a Madrid, interceptadas a finales de 1999 cerca de Calatayud (Zaragoza) por la Guardia Civil (la primera en ruta el 21 de diciembre y la segunda al día siguiente abandonada no lejos de allí), suceso conocido como la ‘caravana de la muerte’ ”.
ACA
Procedencia de las imágenes
1, 3, 4 y 5. https://es.wikipedia.org/wiki/World_Trade_Center_(1973-2001)
7. https://es.wikipedia.org/wiki/World_Trade_Center_(2001-presente)
8. https://twitter.com/alejandrocsome/status/1399200642086981635 y https://www.epdlp.com/arquitecto.php?id=178

Unless: The Seagram Building Construction Ecology
Kiel Moe (Editor)
Idioma: inglés
Programado para enero 2021
Nota del editor
Unless: The Seagram Building Construction Ecology analiza la ecología de la construcción, las geografías de los materiales y los sistemas mundiales de una de las obras icónicas de la modernidad: el edificio Seagram de Mies van der Rohe ubicado en Park Avenue, Nueva York. Al hacerlo, tiene como objetivo describir cómo los humanos y la naturaleza interactúan con la delgada corteza del planeta a través de la arquitectura. En particular, la inmensa cantidad de material, energía y trabajo que implica la construcción requiere una interpretación fresca que sitúe mejor el potencial ecológico y social del diseño. La mejora de un edificio en particular debería ser inseparable de la mejora del sistema mundial y la ecología de la construcción. Un edificio «hermoso» engendrado a través de la vulgaridad de los intercambios desiguales y los procesos de subdesarrollo ya no es una presunción sostenible en tal marco. A menos que los arquitectos comiencen a describir los edificios como eventos y artefactos terrestres, los arquitectos, para nuestro riesgo colectivo y profesional, continuarán operando fuera de las dinámicas ambientales clave y los procesos políticos clave de este siglo.
Nota
Para complementar el enfoque crítico que el libro posee, recomendamos leer el artículo «A Case for a More Literal Architecture» escrito por el propio Kiel Moe, publicado en https://www.metropolismag.com/architecture/literal-architecture-kiel-moe/
ACA
Estos son los 6 finalistas del concurso «Reimaginando el Puente de Brooklyn»
Christele Harrouk

Traducido por Mónica Arellano
14 de julio 2020
Tomado de Plataforma arquitectura
Van Alen y el Consejo de la Ciudad de Nueva York ha anunciado a los 6 finalistas para la competencia internacional «Reimaginando el Puente de Brooklyn», tanto en la categoría de profesionales como de jóvenes adultos. Inspirando a los participantes a repensar la icónica pasarela del Puente de Brooklyn, el concurso reunió intervenciones a corto plazo y propuestas a largo plazo para una reconfiguración completa del puente. Los 3 equipos finales en la categoría Profesional incluyen BIG + ARUP; ScenesLab + Minzi Long + Andrew Nash; y Colectivo de Diseño de Proyectos Pilotos, Cities4Forests, Wildlife Conservation Society, Grimshaw y Silman.
El puente de Brooklyn es un símbolo de la ciudad misma y antes de la pandemia de COVID-19, era transitado cruzado por miles de peatones y ciclistas todos los días, estaba abarrotado, incómodo y a veces inseguro. En respuesta a estas condiciones, el Consejo de la Ciudad de Nueva York y el Instituto Van Alen «lanzaron el concurso internacional de diseño que apunta a provocar una nueva conversación pública sobre la infraestructura de la Ciudad de Nueva York».
Esta competencia representa una oportunidad para repensar el puente como una estructura amigable para los peatones ya que aborda principalmente las necesidades de la comunidad. En realidad, el Puente de Brooklyn, uno de los puntos de referencia más reconocidos y fotografiados de Nueva York, tiene el potencial de servir como campo de pruebas para opciones de transporte equitativas, accesibles y sostenibles. El concurso fomenta también la creación de un entorno saludable y seguro al tiempo que genera oportunidades para las pequeñas empresas. Las propuestas elegidas fueron seleccionadas por un jurado interdisciplinario por sus enfoques convincentes y optimistas. De hecho, el jurado consideró los siguientes factores: composición del equipo; accesibilidad y seguridad; beneficio ambiental y seguridad; respeto por el estado histórico del puente; factibilidad y «magia». Es decir: nuevas ideas que sorprenden, deleitan y fascinan. Si bien cada equipo ahora está trabajando con Van Alen, el Ayuntamiento de Nueva York, las partes interesadas locales y las instituciones cívicas para refinar sus propuestas, el 23 de julio, el público puede escuchar a los finalistas y emitir votos en línea en Design Showdown. La votación en línea será en vivo del 23 al 30 de julio, y el ganador se anunciará a fines del verano.
ACA
Nota del 18 de agosto de 2020

El diseño «Brooklyn Bridge Forest» de Pilot Projects Design Collective, Wildlife Conservation Society (WCS), Cities4Forests, Grimshaw Architects LLP y Silman DPC ha ganado la categoría profesional en el concurso mundial Reimagining Brooklyn Bridge (Reimaginando el puente de Brooklyn), con lo cual madera petenera se usará para revitalizar este icónico puente en Nueva York, Estados Unidos.
ACA