
Archivos diarios: 24 de noviembre, 2024
¿SABÍA USTED…
… que en julio de 1983 se inauguró la Plaza Bicentenario?

1983 se inició en Venezuela con el decreto gubernamental que oficializaba la entrada en el “Año Bicentenario del Natalicio del Libertador”, lo cual, aunado al hecho de que se trataba del último de la gestión de Luis Herrera Campíns como presidente de la República y, por ende, año electoral, presagiaba una agitada agenda de actos, inauguraciones y eventos en general. Es así como, por ejemplo, el propio 2 de enero el Metro de Caracas inicia sus funciones al público con la inauguración por todo lo alto del primer tramo de la Línea 1 entre las estaciones Propatria y La Hoyada.

Sin embargo, con lo que no contaba el gobierno, que había programado la realización ese año de los IX Juegos Deportivos Panamericanos en Caracas entre el 14 y el 29 de agosto, es con que el 18 de febrero el bolívar sufriera una abrupta devaluación de casi un 75% en su valor frente al dólar estadounidense (pasando de 4,30 Bs. a 7,50 Bs. por dólar), primera de una serie que se repetiría a lo largo del tiempo y estaría acompañada de otros hechos que minaron la estabilidad de la moneda, deterioraron el poder adquisitivo de la población y derivaron en la implantación de un control de cambio, razones por las que aquel día es recordado como el Viernes Negro.

Pese a tener que afrontar semejante carga sobrevenida, no obstante, el 4 de marzo el gobierno continúa su marcha “bicentenaria” inaugurando el 4 de marzo la nueva sede del Ateneo de Caracas; el 25 de marzo el Hipódromo de Valencia; y el 19 de abril el Teatro Teresa Carreño con un concierto de la Orquesta Sinfónica de Venezuela.

Con ocasión de los Juegos Panamericanos ya en 1981 se había puesto en servicio la Plaza Simón Bolívar y el estacionamiento estructural que complementaron el acondicionamiento de los estadios Olímpico y Universitario, sedes principales del evento, junto al Poliedro de Caracas, el Parque Naciones Unidas (otra obra inaugurada en 1983), el Estadio Nacional Brígido Iriarte (reabierto aquel año luego de una importante transformación) y el Gimnasio José Joaquín «Papá» Carrillo.
También, en el marco del Bicentenario, la Unesco y el Gobierno de Venezuela crearon conjuntamente el Premio Internacional Simón Bolívar, destinado a reconocer las actividades e iniciativas que hayan contribuido a lograr y reforzar la libertad, la independencia y la dignidad de los pueblos. Por otro lado, el 28 de julio es creada la Universidad Pedagógica Experimental Libertador y el 24 de agosto la Academia Nacional de Ciencias Económicas.

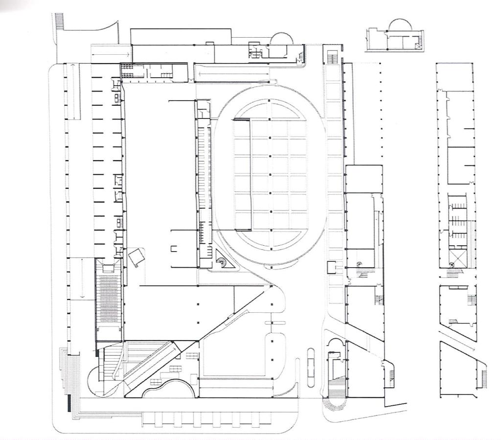
Otras cinco obras vale la pena señalar como parte de la agitación constructiva que acompañó aquel año electoral que culminó con el triunfo de Jaime Lusinchi: la inauguración de la Torre Este de Parque Central y del Monumento a la Virgen de la Paz en Trujillo (el 21 de diciembre); la consagración de la Iglesia de San José de San Cristóbal, cuya realización había durado 43 años; y la apertura de dos importantes espacios públicos: la Plaza Caracas, recuperación para el peatón de la superficie ubicada entre los dos cuerpos bajos del Centro Simón Bolívar, que incorporó una escultura de Simón Bolívar denominada El Genio del artista español Victorio Macho (7 de noviembre); y la Plaza Bicentenario localizada al sur del Palacio de Miraflores y al norte del Liceo Fermín Toro, cruce de las avenidas Sur 8 con Oeste 2 (de Solís a Camino Nuevo y de Solís a Caño Amarillo, respectivamente) en la parroquia Catedral, la cual, en particular, hemos decidido reseñar.

Empecemos diciendo que la Plaza Bicentenario formó parte de un proyecto mayor a escala urbana urbana que incluía una red de espacios públicos denominado “Parque Cultural de Caracas”, que comenzaba en la Plaza Bolívar, pasaba al sur del Palacio de Miraflores, incorporaba el sector de Caño Amarillo y que “yendo en dirección oeste precede a un accidente topográfico que estrecha la ciudad en ese punto y abre el casco histórico hacia la zona de Catia característicamente popular”, señalará Oscar Tenreiro en Todo llega al mar (2020). La propuesta y su nombre se originan en “una iniciativa del Cabildo Caraqueño de comienzos de la década de los setenta”, que dio pie a la elaboración por parte de la Oficina Metropolitana de Planeamiento Urbano (OMPU) de un estudio para el sector que recoge la idea de los legisladores de convertirlo en receptor de actividades culturales y preservar algunos monumentos que pertenecen a la historia de la ciudad: la capilla de Nuestra Señora de Lourdes y el Arco de la Federación (ambos del período guzmancista), la iglesia de Pagüita, el Viaducto Unión (primer puente de estructura metálica construido en la ciudad), la Villa Santa Inés (residencia de Joaquín Crespo) y la antigua Escuela Militar (de los tiempos de Juan Vicente Gómez).

Es así como en 1980 comenzó a gestarse en la oficina del arquitecto Oscar Tenreiro con la participación de Francisco Sesto e Isabel Sánchez, la idea de desarrollar el Parque Cultural de Caracas, el cual contó con el apoyo de la Gobernación del Distrito Federal (GDF) con Enrique Pérez Olivares al frente, quien les permitió hacer una presentación en la que se utilizaron “recursos exploratorios y de expresión muy poco convencionales”. En el “Anteproyecto para el Parque Cultural de Caracas” entregado a la GDF en julio de 1982, que reflejaba claros aires posmodernos, “propusimos … edificios-escenografía capaces de generar espacio público complementario al espacio público natural de la zona, es decir, al que ya existía por estar libre de construcciones o por su vocación formal. (…) El conjunto se iniciaba en lo que llamamos Plaza del Natalicio, parte de los servicios del Palacio Presidencial. Seguían al Oeste espacios públicos hasta llegar a la estación del Metro, punto central alrededor del cual sugerimos -y se aceptó- construir la nueva sede de la Galería de Arte Nacional (y a su lado el Teatro del Oeste). Avanzando hacia el Oeste continuaban los edificios institucionales expresados por volúmenes que figuraban dimensiones pero que no albergaban programa alguno y finalmente hacia el norte con la vivienda construida sobre la línea superficial del Metro”, apuntará Tenreiro.



De tal manera, lo que inicialmente se denominó como Plaza del Natalicio (propuesta, según lo ya dicho, como parte de los servicios del Palacio Presidencial), ubicada en un lugar estratégico dentro del plan, trocó con el apoyo de la presidencia de la República, en Plaza Bicentenario tomándose la decisión de realizar su proyecto e iniciar las obras en 1981 con miras a que estuviese finalizada para el 24 de julio de 1983 cuando se celebraban los 200 años del nacimiento de Simón Bolívar.


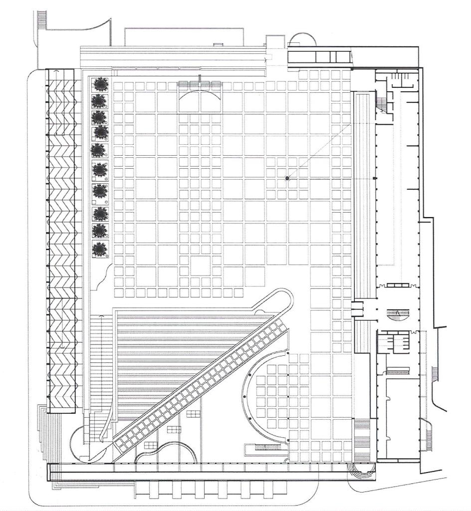
En cuanto a la conformación del programa, apuntará Tenreiro: “Lo que surgió del primer examen de las carencias del Palacio fue la necesidad de un estacionamiento y de una serie de dependencias de apoyo -oficinas, depósitos para el mantenimiento, central de seguridad- además de las área de tipo social para visitantes de un alto nivel con la adición de algunos espacios privados de la presidencia. A ello se sumaban los espacios para el Archivo Histórico de Miraflores, que terminaron ocupando los ambientes servidos por una Galería que servía de límite con la ciudad en el lado Sur, contrario al Palacio, la cual llamamos en su origen Galería de la Reminiscencia…”.


La nota sobre la plaza, escrita por Tenreiro en Caracas del valle al mar. Guía de arquitectura y paisaje (2015), la resume de la siguiente manera: “El conjunto consta de un edificio, de uso administrativo, una plaza sobre los estacionamientos, y una galería de conexión peatonal con Caño Amarillo. Construida con ladrillo, piedra y madera, e iluminada dramáticamente con luz natural, tiene una atmósfera que justifica su nombre original: ‘Galería de la Reminiscencia’. El techo del edificio administrativo es un jardín que prolonga los del palacio, proyecto del paisajista Fernando Tábora. La estructura de la plaza de concreto post-tensado de pórticos sucesivos es única en Venezuela. El pavimento, (fue) concebido con ladrillos de tamaño especial y juntas de grama, así como la fuente que baña el plano inclinado cubierto de ladrillo, uno de los límites de la plaza…”. Sobre la estructura cabe acotar que para su diseño contó con el apoyo de August Komendant, teniendo como contraparte a los ingenieros locales Martín Maiser y Andrés Prypchan.

Tuvo la mala fortuna la Plaza Bicentenario de que, pese a lo avanzado de su construcción, fue inaugurada inconclusa aquel año de 1983 y aunque hasta 1987 hubo varios intentos de completarla ello no terminó ocurriendo, sufriendo desde entonces “numerosas intervenciones ajenas al proyecto original” en palabras de Tenreiro publicadas en Caracas del valle al mar… quien allí también expone, con respecto al destino de la obra, cómo “pese a su importancia, ilustra bien la crisis de las áreas públicas urbanas, y pone en evidencia una gestión ineficiente, evidente en su franco deterioro. Se han ignorado las premisas que le dieron origen, entre ellas, que se constituyera en parte de un proyecto urbano que vinculara a la Plaza Bolívar con Caño Amarillo. Esta realidad se suma a una visión que mantiene la plaza cerrada y custodiada, como una fortaleza, alejada del ciudadano”.
El haber sido concebida como “plataforma escénica que mira hacia el Parque Cultural”, condición que atentó contra su accesibilidad directa desde la calle, facilitó en cierta medida el que la plaza haya pasado de ser un lugar de alegría manifiesto durante el breve tiempo en que funcionó a ser un espacio secuestrado sin mayores problemas por la Casa Militar encargada de la seguridad presidencial.

El diseño de este importante desahogo de una zona problemática de la ciudad, significó para Oscar Tenreiro, junto al del Teatro del Oeste (otra obra inconclusa ubicada en Caño Amarillo), “verdaderos puntos de inflexión en mi vida como arquitecto. Ambas obras comenzaron a construirse en mis cuarenta y pocos años cuando lo que quería decir ya no era una pregunta constante sino asomaban ya algunas certezas. Fueron el producto de búsquedas, experiencias, aportes técnicos, reflexiones sobre la dirección a seguir, que ya tenían raíces firmes en mi conciencia de arquitecto. (…) Si todavía no podía llamarse madurez, estaba mucho más consciente de las búsquedas que debía emprender”.
ACA
Procedencia de las imágenes
1, 7, 8, 9, 10, 11, 12, 13, 15 y 16. Oscar Tenreiro. Todo llega al mar (2020)
2. Caracas en Retrospectiva (http://mariafsigillo.blogspot.com/2013/01/inauguracion-del-metro-de-caracas-1983.html).
3. Nuestra Histórica Caracas. Ateneo de Caracas (http://portaldelahistoriadecaracas.blogspot.com/2010/06/ateneo-de-caracas.html) ; y Wikipedia. Teatro Teresa Carreño (https://es.wikipedia.org/wiki/Teatro_Teresa_Carre%C3%B1o)
4. Mercedes Rangel. Estadium Brígido Iriarte (https://www.pinterest.com/pin/314055774004466042/); y Wikipedia. Gimnasio José Joaquín Papá Carrillo (https://es.wikipedia.org/wiki/Gimnasio_Jos%C3%A9_Joaqu%C3%ADn_Pap%C3%A1_Carrillo)
5. IAM Venezuela. Plaza Caracas (https://iamvenezuela.com/2015/09/plaza-caracas/)
6. Captura de Google Earth.
14. Iván González Viso, María Isabel Peña y Federico Vegas. Caracas del valle al mar. Guía de arquitectura y paisaje, 2015 (http://guiaccs.com/obras/plaza-bicentenario/)
HA SIDO NOTICIA
La UIA anuncia a los ganadores del II Ciclo del Premio 2030 de Arquitectura Sostenible

Escrito por Nour Fakharany
Publicado el 7 de noviembre de 2024
Tomado de https://www.archdaily.com
La Unión Internacional de Arquitectos (UIA), en colaboración con ONU-Hábitat, acaba de anunciar los ganadores del segundo ciclo del Premio UIA 2030. Este prestigioso premio reconoce los logros arquitectónicos que impulsan la Agenda 2030 de las Naciones Unidas para el Desarrollo Sostenible y la Nueva Agenda Urbana. El Premio UIA 2030, que honra los proyectos que incorporan principios de diseño sostenible, celebra las contribuciones al Objetivo de Desarrollo Sostenible 11: «Lograr que las ciudades y los asentamientos humanos sean inclusivos, seguros, resilientes y sostenibles».
Después de recibir 100 propuestas de 33 países, se seleccionaron finalistas regionales en la primera etapa, que representan a las cinco regiones de la UIA: Europa Occidental, Europa Central y Oriental y Oriente Medio, las Américas, Asia y Oceanía, y África. Estos finalistas pasaron a la Etapa 2, donde presentaron videos de tres minutos que mostraban sus proyectos en acción y detallaban su alineación con los ODS. Los ganadores en las seis categorías fueron premiados durante el Foro Urbano Mundial (WUF12), que tendrá lugar en El Cairo, Egipto, del 4 al 8 de noviembre de 2024. Este concurso bienal destaca cómo los arquitectos de todo el mundo están impulsando soluciones urbanas sostenibles e inclusivas para abordar los desafíos globales y dar forma a comunidades resilientes para el futuro.
Los dos ganadores de cada categoría, centrados en Salud y bienestar, Vivienda adecuada, segura y asequible, Acceso a espacios verdes y públicos, Adaptación al cambio climático y resiliencia ante desastres, y Promoción, restauración y uso sostenible de los ecosistemas, fueron los siguientes.
Categoría 1: Salud y bienestar
Centro de desarrollo infantil Angels’ Care, de FGG Architects, Nerø Holt, Sudáfrica y Australia

Biblioteca infantil de la aldea Wanjian, 264313, de OnEarth Studio, China

Categoría 2: Vivienda adecuada, segura y asequible
Nightingale Village por ℅ Nightingale Housing, Australia

ETC Bygg de Kaminsky Arkitektur AB – Arkitekt Hans Eek AB, Suecia

Huebergass Berna por GWJ Architektur AG, Suiza

Categoría 3: Acceso a espacios verdes y públicos
Rehabilitación de espacios públicos en el centro histórico de Qalandiya, Jerusalén, por RIWAQ, Centro de Conservación Arquitectónica, Autoridad Palestina

Parque forestal Benjakitti por Arsomsilp Community and Environmental Architect Co. Ltd., + Turenscape (Consultor de diseño), Tailandia

Categoría 4: Adaptación al cambio climático y resiliencia ante los desastres
Corredor forestal de Badshahpur, de Beyond Built Pvt. Ltd., India

Parque de inundación del río La Tortura: adaptaciones paisajísticas al cambio climático por Entropía, Colombia

Categoría 5: Promoción, restauración y uso sostenible de los ecosistemas
El pabellón principal de la 11.ª EXPO de horticultura de Jiangsu, por China Architecture Design & Research Group (CADG), China

Calle Centro, Ruesta – Capilla de San Juan, Ruesta – Capilla de San Jacobo, Ruesta – Capilla de San Juan, Sigüés por Sebastián Arquitectos SLP, España

ACA
HA SIDO NOTICIA
Se anuncian las obras ganadoras del Premio Latinoamericano de Arquitectura Rogelio Salmona 2024

Escrito por Agustina Íñiguez
Publicado el 25 de octubre de 2024
Tomado de https://www.archdaily.cl
El pasado 24 de octubre de 2024, se realizó la ceremonia de premiación del Premio Latinoamericano de Arquitectura Rogelio Salmona, destacando aquellas obras que hayan generado de forma evidente espacios ciudadanos significativos, abiertos y colectivos en la región. Durante el evento, que tuvo lugar en el auditorio de la Biblioteca Pública Virgilio Barco en Bogotá, Colombia, se anunció a los ganadores de este prestigioso reconocimiento que celebró este año su cuarto ciclo titulado «espacios abiertos/espacios colectivos» con la participación de 47 proyectos.
El jurado, compuesto por figuras internacionales como Sol Camacho (Brasil-México), Nicolás Campodonico (Argentina), Carlos Campuzano (Colombia) y Mauricio Rocha (México), primero eligió 26 obras seleccionadas, de las cuales 2 han sido galardonadas con el primer premio en las categorías Latinoamérica y Colombia.
Ganadores 2024
Categoría Colombia: Parque Educativo Saberes Ancestrales, Vigía del Fuerte

«El jurado premia este proyecto por el conjunto de decisiones que esta obra sintetiza, no solo dentro de una condición sociocultural, económica adversa sino, además, por la importante expresión tectónica que alcanza con una economía de recursos. Las soluciones constructivas como el partido de palafitos en un lugar que se inunda constantemente, así como las relaciones entre interior y exterior, la doble cobertura, la producción de sombra y el despliegue de pisos y paredes tejen un escenario que acoge las relaciones humanas locales», señala el acta de juzgamiento.
Categoría Latinoamérica: UVA TANQUES EPM, Medellín

«Se reconoce la fuerza del proyecto por la sagacidad con la que utiliza un sistema existente como dispositivo de transformación y desarrollo efectivo del espacio urbano. El proyecto es representativo también de un trabajo de colaboración interdisciplinaria, intergeneracional, entre diversos miembros de la sociedad civil y gobierno que valoriza la importancia del espacio público de calidad».
Menciones Especiales
Además de los galardones principales, el jurado otorgó menciones especiales a dos proyectos por su calidad arquitectónica y urbanística:
Centro Cultural Teopanzolco, Cuernavaca, México

«El jurado destaca con mención especial al Centro Cultural Teopanzolco por el diálogo contundente que el edificio contemporáneo genera frente a la construcción prehispánica del sitio con enorme sensibilidad plástica. La escala y configuración del edificio activan un nuevo diálogo con el patrimonio cultural existente y al mismo tiempo generan nuevos espacios de vida en el barrio en donde se localiza en la ciudad de Cuernavaca».
Parques del Río Medellín, Colombia

«El jurado hace mención especial a los Parques del Río Medellín por la importancia que este proyecto le otorga a las diferentes escalas de movilidad urbana. Este proyecto desde su fase inicial reconoce y estimula la movilidad peatonal y de otros medios de transporte alternativos a los tradicionales».
El jurado hace constar en acta que tanto los dos proyectos premiados, como los dos proyectos destacados con mención encabezaron la lista de nueve finalistas, los cuales describe como proyectos de alta calidad arquitectónica, ejemplares soluciones constructivas con estrategias inteligentes de diseño con particular sensibilidad al contexto latinoamericano en términos materiales, tecnológicos, culturales y sociales. Entre estos se encontraban Común Unidad en Ciudad de México, la Cinemateca Brasileira en São Paulo, la obra Fragmentos Contra-monumento en Bogotá, Pabellón Social de Paraisópolis en São Paulo y la Nueva Municipalidad de Nancagua en Chile.

Durante el evento, además se anunció el lanzamiento del libro y la exposición que reúne las 26 obras más representativas de los participantes. Por otro lado, el Premio Latinoamericano de Arquitectura Rogelio Salmona anteriormente ha realizado tres ciclos que han tenido como resultado las obras ganadoras Edificio Projeto Viver, de la firma FGMF Arquitetos (Ciclo 2014), el Mercado 9 de Octubre y Plaza Rotary, del arquitecto Boris Albornoz (Ciclo 2016), y el Parque Cultural Valparaíso, Cerro Cárcel, de la firma HLPS Arquitectos-Martin Labbe, Jonathan Holmes, Carolina Portugueis, y Osvaldo Spichiger (Ciclo 2018).
ACA
ES NOTICIA
Inauguración oficial de la BAQ2024 en el Centro Histórico de Quito

Por: Bienal de Arquitectura
Nov 20, 2024
El pasado lunes 18 de noviembre, la Bienal Panamericana de Arquitectura de Quito BAQ2024 celebró su inauguración oficial en el Centro Histórico de Quito, marcando el inicio de su vigesimocuarta edición. Durante el evento, se reconoció a destacados profesionales tanto nacionales como internacionales por su contribución a la arquitectura y la ciudad.
En esta ocasión la BAQ tiene lugar en el Centro Histórico de Quito, contando como sedes principales al Teatro Bolívar y Teatro Sucre; además de varios espacios emblemáticos como el Centro Cultural Metropolitano, el Museo Archivo de Arquitectura del Ecuador, el Pasaje Amador, el Museo de la Ciudad que contarán con exposiciones durante toda la semana.
El acto protocolario marcó la inauguración oficial y se llevó a cabo en el Teatro Bolívar, un escenario tradicional de la ciudad que acoge a este importante encuentro entre estudiantes, profesionales y académicos de todo el mundo.
El evento contó con la participación de la arquitecta María Samaniego, presidente del Colegio de Arquitectos de Pichincha CAE-P, quien mencionó que “en un escenario donde las ciudades están enfrentadas a difíciles condiciones de crecimiento, desigualdad y muchas complejidades, se agradecen los espacios como los que la BAQ ofrece”.
También estuvo presente la arquitecta Yadhira Álvarez, presidente de la BAQ2024, quien profundizó en la temática de esta edición y subrayó la importancia del evento tanto para la ciudad como para el país. Como parte de la inauguración, se otorgó el Reconocimiento BAQ a la Trayectoria Profesional, un emotivo homenaje a aquellos arquitectos o arquitectas de la región que durante su vida profesional han contribuido a la arquitectura, la ciudad y la colectividad.
El reconocimiento se otorgó al arquitecto argentino Justo Solsona. También fue otorgado a los arquitectos Evelia Peralta y Rolando Moya, arquitectos argentinos quienes han contribuido ampliamente en la difusión y documentación de la arquitectura del Ecuador.
Sobre el escenario, acompañando a las arquitectas estuvieron presentes el arquitecto José Morales, secretario de Hábitat y Ordenamiento Territorial, el economista Galo Sandoval, viceministro de cultura y patrimonio y el arquitecto Humberto Plaza Arguello, ministro de desarrollo urbano y de vivienda, quienes expresaron su apoyo a esta iniciativa, la cual busca generar un espacio de debate sobre los desafíos actuales de la arquitectura y la ciudad contemporánea.
Hasta el 22 de noviembre, la BAQ2024 estará fomentando la participación y el diálogo a través de conversatorios, charlas magistrales, mesas redondas, exhibiciones y exposiciones, con el fin de generar una aproximación de la arquitectura y su potencial en la transformación de los paisajes construidos.
ACA
GRATA NOTICIA
Dos revistas venezolanas seleccionadas para formar parte de la muestra “El papel del diseño. Revistas iberoamericanas del siglo XX al XXI”

El pasado miércoles 20 de noviembre, en el marco de la novena edición de la Bienal Iberoamericana de Diseño 2024, inaugurada en Madrid el 8 de octubre, se abrió la exposición “El papel del diseño. Revistas iberoamericanas del siglo XX al XXI”, comisariada por Iván Cortés (cofundador de la Revista Proyectodiseño -COL-) y Marcelo Leslabay (cofundador de la revista Experimenta -ESP-), y organizada por el Museo Nacional de Artes Decorativas, la Fundación Diseño Madrid (DIMAD) y la Fundación Lápiz de Acero.

La muestra que contó con la participación de un Comité Científico compuesto por representantes de diversos países iberoamericanos, que han trabajado en la consolidación de la investigación que sirve de fundamento a la exposición, versa sobre la función que han desempeñado las revistas que han circulado en Iberoamérica durante los siglos XX y XXI en la dinámica del diseño regional.

En consecuencia, incluye publicaciones cuyos contenidos pertenecen al área del diseño gráfico, industrial o de mobiliario, impresas en papel, que o se comercializaban o se comercializan actualmente en el mercado iberoamericano con una periodicidad establecida. Además, para reforzar el contexto histórico al que alude la exposición, también se exhibirán objetos icónicos del diseño internacional que fueron ampliamente difundidos por las revistas de diseño.

La exposición, que surge como un aporte en el camino de hacer visible la historia del diseño iberoamericano a través de las revistas y en ofrecer un homenaje a todos quienes generosamente han entregado su tiempo, reflexión y pericia a la edición, nos acerca, por tanto, a una selección de revistas publicadas en diferentes países a lo largo del siglo XX y principios del siglo XXI, presentadas dentro del contexto de tres secuencias cronológicas vinculadas a los eventos más destacados del diseño de la región en este período. La iniciativa forma parte de un proyecto abierto, colaborativo y en continua actualización, centrado en la investigación y difusión de la historia del diseño iberoamericano.
Pues bien, dentro de este importante marco, el Comité Científico de la exposición por Venezuela, seleccionó las revistas ESPACIO y Logotipos.

ESPACIO, creada por Henrique Vera (arquitecto venezolano) y Hans Hirsch (librero nacido y formado en Alemania) circuló el año 1988 y de ella, lamentablemente, sólo aparecieron 4 números. Dedicada a la arquitectura, el diseño interior, el diseño industrial, el diseño gráfico y la fotografía, ESPACIO contó con 60 páginas promedio en papel glasé diagramadas por Jacqueline Cherouvrier, y el acompañamiento de un encartado de 24 páginas adicionales (denominado Espacio/Suplementario), en papel periódico e impresión ágil, que bajo el diseño de Martha Sanabria (autora también del logo de la publicación), incorporaba un dinamismo informativo que la producción de la revista limitaba. Ambos, revista y suplemento, venían incorporados en un elegante estuche de cartón. Editorial Arte fue la imprenta seleccionada.

Por su parte, Logotipos fue una publicación bimestral impresa que circuló entre 2000 y 2008 y que tuvo gran significación para el gremio del diseño debido a su nivel de excelencia formal y de contenido. Estuvo presidida por Carlos Alberto López y contó con la coordinación general de Marco Antonio Páez y la dirección editorial de Humberto Valdivieso. El departamento de arte contó con la dirección de Ricardo Rojas Aguado y en la asistencia Norjonep Martínez y Ronald Cuadra en los primeros números. El tiraje inicial fue de 4.000 ejemplares impreso en Soluciones Gráficas, contando con la medida de 31cm alto por 21 cm de ancho y 80 páginas incluyendo portada y contraportada en glasé laminado satinado en su primer año de edición que luego cambio a la medida de 30 de alto x 22 de ancho a partir del año VI de la publicación en 2006. Sus secciones cubrían aspectos relacionado con el mundo del comic, la ilustración, sistemas de impresión, diseño industrial, diseño gráfico y otros temas afines de actualidad que se distribuían en las páginas patrocinadas con una buena cantidad de anunciantes.
En virtud del contexto en el que se lleva a cabo la muestra y alto nivel que acompañó su curaduría es un verdadero privilegio estar presentes en Madrid tan bien representados por dos publicaciones de altísima calidad que han trascendido su tiempo.

“El papel del diseño. Revistas iberoamericanas del siglo XX al XXI”, cuya identidad gráfica ha estado a cargo de A Little Too Much y el diseño expositivo a cargo de MARIANO – Estudio de Diseño, estará abierta en hasta el 2 de enero de 2025 en los espacios del Museo Nacional de Artes Decorativas (MNAD), c/Montalbán 12, Madrid.
ACA