
Archivos diarios: 14 de noviembre, 2021
Postal nº 285

Para visualizar la imagen en mejor resolución VER AQUÍ
ALGO MÁS SOBRE LA POSTAL Nº 285

Convocado como “Concurso Nacional de Ideas” en octubre de 1995 por la Fundación Museo de los Niños de Maracaibo con el auspicio de la Facultad de Arquitectura de la Universidad del Zulia y la Dirección de Cultura de la Alcaldía de Maracaibo, el correspondiente al Museo de los Niños de Maracaibo tuvo su desenlace el 18 de enero de 1996. Ese día el calificado jurado integrado por Fruto Vivas, Ciro Caraballo, Alejandro Carruyo, Giovanni Villalobos, Inés Laredo y Francisco Bellorín seleccionó entre 20 propuestas provenientes de diferentes partes del país las que ocuparían los tres primeros lugares, siendo todas las galardonadas presentadas por arquitectos egresados de la LUZ.
El terreno seleccionado de 14.900 m2 con condiciones de clima semi-desértico tropical, destinado al desarrollo de un complejo de instalaciones educativas y culturales, estaba ubicado en la avenida San Francisco, cabecera oeste del Puente sobre el Lago “Rafael Urdaneta”, en jurisdicción del municipio San Francisco. En las bases del concurso se planteaba que “este museo deberá contribuir a que el niño aprenda y se desarrolle con el conocimiento y la cultura universal, de su entorno, de la zulianidad, importante componente de la venezolanidad y de todos aquellos aspectos esenciales del Zulia potencialmente museables”.
La idea ganadora identificada como “Un mundo de sonrisas”, presentada por los arquitectos Sergio González y Luisa Molero junto al entonces bachiller, que ya cursaba el último año de la carrera, Farid Chacón, consistió “en cuatro módulos o edificios, que representan los cuatro elementos básicos del patrimonio natural: aire, fuego, tierra y agua. Y en relación al patrimonio cultural se considera como tal las acciones del hombre sobre esos cuatro elementos y sobre las interrelaciones que se han producido y se producen entre ellos. Se habla entonces del edificio hombre y otros adicionales, como edificio energía y edificio Lago, ubicado totalmente sobre la superficie de éste. Además contará con un auditórium, sede de la Orquesta Sinfónica Juvenil, una biblioteca especializada en literatura infantil, una plaza de las etnias indígenas, un bosque húmedo tropical con ejemplares robóticos de fauna extinta”.



El proyecto financiado por la Gobernación del Estado Zulia desarrollado en 2002, publicado con detalle como “Museo de los Niños del Zulia” en la revista Escala, nº 228, 2014, estuvo dirigido por Sergio González y Farid Chacón contando como arquitectos asistentes con Janeth Boza, Dalmary Rubio, Adriana Ordóñez, Sandra Velasco; Lourdes Peñaranda como encargada del paisajismo; Pedro Rosales de los detalles arquitectónicos y el ingeniero Adolfo Mibelli Acuña del diseño y cálculo estructural. Abarcó una superficie urbana trabajada de 2,26 há y contemplaba un área construida de 9.165 m2.
De acuerdo a lo que señalan sus autores “el proyecto Museo de los Niños del Zulia está concebido como una unidad institucional de investigación continua que, a diferencia de proyectos convencionales, pretende abarcar y -en lo posible- desarrollar en profundidad todos los aspectos que constituyen la naturaleza de lo que ha de ser una edificación para niños. Abordado desde esta perspectiva, el proyecto siempre ha de estar en condiciones de asumir cualquier innovación o modificación que enriquezca sus contenidos”.
En función de las variables climáticas prevalecientes en la zona, se propone la búsqueda de sombra como condición esencial, “para permitir a los niños desarrollar actividades en el exterior. Por ello las edificaciones se plantean como ‘6 árboles’ que permiten la generación de más de 3500 m2 de parque público en sombra frente al Lago de Maracaibo, espacio único en la ciudad.(…) Compuesto por seis contenedores temáticos dispuestos en sentido norte sur franco, y unidos sólo por sus vértices, el conjunto busca englobar un importante complejo cultural de servicios y apoyo a la niñez de la región. Estos seis árboles convertidos en cestas de acero, están suspendidas a través de un núcleo central en concreto que funge como conexión vertical y dotador de servicios. El desarrollo paisajístico se une en intención con la temática implícita en los edificios, disminuyendo los límites entre lo construido y lo natural, donde la experiencia sensorial y museística comienza no dentro del museo sino desde fuera”.
Tal y como se había prefigurado desde que la idea resultó ganadora del concurso, los seis elementos que definitivamente conformaron el conjunto cuyo dibujo en perspectiva ilustra nuestra postal del día de hoy, dotados de una alegría cromática que recuerda el valor que esta variable tuvo en la primera etapa del Museo de los Niños de Caracas (1983), se identificarán de la siguiente forma:

“Edificio Energía. Puerta de acceso al museo, alberga tanto las oficinas administrativas como los talleres de fabricación y mantenimiento de las exhibiciones; este edificio es el principal abastecedor de servicios al conjunto y el ejemplo vivo de la museabilidad extrema de la propuesta del Museo de los Niños del Zulia, al exhibir al visitante todas las actividades que hacen posible su funcionamiento.

Edificio Agua. Al sureste del conjunto, dota de un gran espejo de agua al parque público y a la terraza del museo; es por sí mismo un sitio de recreación y de juego, donde los niños podrán disfrutar del agua, y aprender sobre este importante y valioso recurso. El edificio contiene más de 1500 m2 de exhibición e interacción con cuerpos de agua como mares, océanos, ríos y por supuesto el lago de Maracaibo, con sus especies, biodiversidad, su conservación y su sano disfrute. Bajo su sombra llueve constantemente refrescando el conjunto y creando un gran parque público de juegos de agua para la ciudad.

Edificio Hombre. Corazón del conjunto y elemento estructurador del complejo, el edificio hombre alberga todas las exhibiciones relacionadas al ser humano, su relación con el medio ambiente que lo rodea y su compromiso con el futuro. Este edificio provee al complejo de referencias y exhibiciones que permiten explicar la riqueza de las raíces del ser humano de estas latitudes, su diversidad étnica y su desarrollo a través de la historia. El edificio hombre dota al conjunto de más de 1500 m2 de área de exhibición terraza y parque público bajo sombra.


Edificio Tierra. Se levanta al suroeste, vistiendo al conjunto de verde y vida natural, es un gran germinador de especies botánicas y cultivos que dota al museo de espacios para la siembra y el disfrute natural a más de 9 m de altura. El elemento tierra se materializará en este edificio explicando y exhibiendo todo lo relacionado con dicho elemento, enseñando el cuidado, conservación y respeto al planeta; 500 m2 de terraza cultivada acompañan a más de 1000 m2 de área de exhibición y parque público.

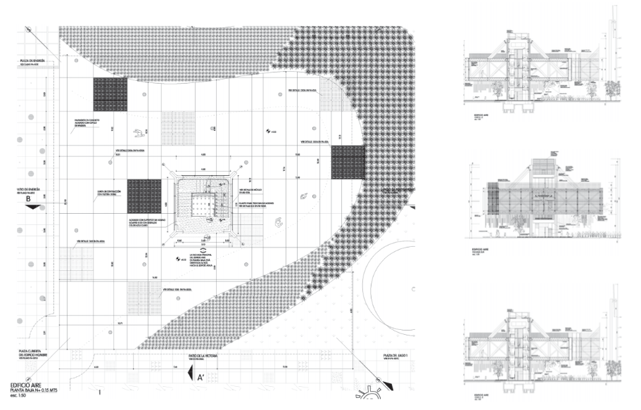
Edificio Aire. Ubicado en el extremo noreste del conjunto, contiene todas las exhibiciones relacionadas a este elemento natural. Sus fachadas norte y este están constituidas por un sistema de hélices traslúcidas de colores, que con el paso del viento y del sol convierten su interior en un gran caleidoscopio de más de 1500 m2 de área de exhibición, terraza y parque público bajo sombra.

Edificio Fuego. Ubicado al noroeste, resume la importancia de este fundamental elemento para la vida. Grandes cilindros textiles de colores cuelgan bajo tragaluces a 4.80 m de altura, dejando entrar la luz natural y creando un gran bosque de color y energía. El edificio fuego contribuye al conjunto con más de 1500 m2 entre terrazas, exhibiciones y parque público bajo sombra y luz”.

Como ya esbozamos, la iniciativa zuliana por dotar a su capital de un museo de los niños estuvo precedida por la caraqueña concebida desde la década de los años 1970 por la entonces Primera Dama Alicia Pietri de Caldera, quien desde la presidencia de la Fundación Festival del Niño entre 1969 y 1974 puso en práctica el Programa Arte y Cultura para los Niños, con la intención de desarrollar sus capacidades mediante actividades participativas. El programa evidenció la necesidad de vincular al niño con el arte, la ciencia y la tecnología para despertar aptitudes y dar respuesta creadora a las inquietudes e interrogantes del hombre del futuro. Esta necesidad se transformó en el objetivo de la Fundación Privada Museo de los Niños. Después de 1974 Doña Alicia, continuó su búsqueda de un sitio para albergar una institución tan especial. En 1979, el Presidente de la República, Doctor Luis Herrera Campins, ofreció una edificación en el Complejo Parque Central como lugar para establecer el Museo. La adaptación y remodelación de los espacios internos del edificio entregado, teniendo como modelo el Ontario Science Center (Toronto, 1969) estuvo a cargo de un equipo de investigación, diseño y montaje liderizado por el arquitecto Domingo Álvarez, lográndose aprovechar al máximo la estructura donada “para convertir al Museo en un símbolo: una gran caja de colores, formada por tacos azules, rojos, amarillos, negros y blancos, sugiriendo un todo que puede armarse y desarmarse”, tal y como se recoge en http://www.maravillosarealidad.com/resena-historica/. Su inauguración se produjo finalmente en 1983. Posteriormente, en 1993, se completó la ampliación del Museo según proyecto a cargo del arquitecto Henrique Siso.

Continuando una tradición que se remonta a 1899 cuando se abre el Museo de los Niños de Brooklyn (considerado el más antiguo del mundo) y será seguida cuando se inaugure el de Indianápolis en 1925 (el de mayor tamaño), alcanzando hoy hasta 190 instalaciones de ese tipo en los Estados Unidos, en fechas cercanas al museo de Caracas se abrirá al público desde el 29 de agosto de 1987 el Museo de los Niños de Bogotá diseñado por el arquitecto Billy Goebertus y también en 1987, el arquitecto Tadao Ando realizará el proyecto de un centro cultural y educativo dedicado a desarrollar las capacidades artísticas y creativas de los niños que se construirá en las afueras de la ciudad de Himeji, Japón, entre 1988 y 1989.

Si entre el momento en que se dio el veredicto (1996) hasta el desarrollo del proyecto (2002) transcurrieron seis años, entre éste último y el inicio de la construcción (2013) pasaron diez, lo cual habla a las claras de las dificultades que ha transitado el Museo de los Niños del Zulia para poderse concretar. Comenzadas las obras se le daría un impulso sostenido hasta el 2016 cuando los trabajos se paralizan hasta el día de hoy encontrándose edificadas “las cestas metálicas y los núcleos centrales en concreto armado de los edificios Hombre y Energía (…) En tal sentido también están construidas las infraestructuras de los núcleos centrales de Aire, Agua y Tierra”, no habiéndose iniciado el edificio Fuego.
En tiempos de elecciones regionales como los que transitamos, bien vale la pena el repaso que hemos realizado para abogar por la necesidad de reiniciar y culminar las obras de un proyecto que a todas luces se constituirá en un importante aporte a la arquitectura marabina.
Nota
Queremos agradecer al arquitecto Francisco Mustieles, Miembro Asociado de la FAC, por el apoyo que nos ha brindado aportándonos muy buena parte de la información con la cual hemos podido elaborar esta reseña.
ACA
Procedencia de las imágenes
Postal, 1, 2, 3, 4, 5, 6, 7, 8 y 11. Cortesía Francisco Mustieles
9. https://www.pinterest.es/pin/357051076686084046/, https://venezuelaaldia.com/2019/07/19/a-oscuras-y-sin-gente-luce-el-museo-de-los-ninos-tras-cierre-fotos/ y http://www.maravillosarealidad.com/2012/06/21/30-anos-del-museo-de-los-ninos/attachment/1/
10. Colección Fundación Arquitectura y Ciudad y https://www.metalocus.es/es/noticias/monumentalidad-en-la-montana-museo-de-los-ninos-en-hyogo-por-tadao-ando
UN APORTE QUE SE AGRADECE

Al finalizar la nota con la que acompañamos la Postal nº 203 dedicada a comentar el anuncio de la compañía Philips Venezolana aparecido en el nº 1 de la revista A, hombre y expresión, publicada en el Contacto FAC 168 del 29 de marzo de 2020, lo hicimos de la siguiente manera:
“Si alguno de nuestros lectores posee mayor información sobre el edificio que le sirvió de sede a la Philips entre los años 50 y 80 en Colinas de Bello Monte, mucho le agradeceríamos nos la haga saber para completar debidamente esta reseña”.
Pues bien, el pasado 24 de octubre recibimos una grata sorpresa de parte del arquitecto y profesor Orlando Marín, incansable y acucioso investigador, Secretario de la Comisión de Historia de la Academia Nacional de la Ingeniería y el Hábitat, quien a través del correo electrónico nos aportó una muy valiosa información relacionada a lo que entonces solicitábamos, y que en una fecha tan importante para este órgano de difusión como lo es haber llegado a su número 250 hemos querido compartir por tratarse de un hallazgo de gran valor.
Con nuestro agradecimiento a Orlando una vez más por leernos, estar atento y ofrecernos generosamente parte de los resultados de su trabajo, esperamos que ustedes aprecien y disfruten lo que a continuación publicamos tanto como nosotros lo hemos hecho.
Feliz domingo.

SALUDOS E INFO SOBRE EDIFICIO DE LA PHILIPS VENEZOLANA EN COLINAS DE BELLO MONTE
Estimados amigos de la Fundación Arquitectura y Ciudad:
Reciban un cordial saludo en la oportunidad de hacerles llegar una información que tengo a la mano sobre el edificio de la Philips Venezolana que estuvo en la av. Caurimare de Colinas de Bello Monte, respondiendo su solicitud de datos sobre la POSTAL Nº 203 de un Contacto FAC de marzo de 2020.
Llevo varios años transcribiendo las listas de permisos de construcción del Distrito Federal y Distrito Sucre que aparecían en la revista del CIV, para tratar de esclarecer las autorías de tantos edificios interesantes que hay y hubo en Caracas. Hasta el momento he podido transcribir casi todos los que aparecen entre los años 1939 y 1955 (un poco más de 8.000 registros), no todos con datos completos. Me quedan aún por transcribir los de los años 1956-59, que quizás sea un poco menos de la mitad de los ya transcritos.

En la Revista CIV N° 189 de diciembre de 1951 aparece el permiso de ese edificio, propiedad de la «Philips Venezolana», concedido por la ingeniería Municipal del Dtto. Federal en noviembre de 1951 a Santiago Goiri como profesional responsable.
Arquitecto egresado de la FAU en la primera promoción, Santiago Goiri Beltrán fue -según Guido Bermúdez- «el primer arquitecto graduado en Venezuela (por haber obtenido su título unos días antes que sus compañeros de promoción) y prestó sus servicios durante muchos años en la División de aeropuertos del MOP. Fue asesor de la Oficina «Guido Bermúdez y Asociados» en el «Proyecto del Aeropuerto Internacional de Margarita» (Bermúdez, 1993, «Diccionario del Arquitecto»: p. 287). Allí mismo Bermúdez registra el fallecimiento de Goiri acaecido el año de 1972.
Yo matizaría un poco el comentario de ser Goiri el «primer arquitecto graduado en Venezuela». En la Escuela Nacional de Ingeniería se otorgó el título de arquitecto a 5 graduados entre 1898 y 1905, y luego el Ministerio de Instrucción Pública se lo otorgó a otros dos, sin contar las 18 reválidas que también hizo la UCV antes de 1948. No obstante, es relevante el dato de ser el primero otorgado por la Escuela de Arquitectura, entonces adscrita a la Facultad de Ingeniería de la UCV.

Por otra parte, investigando sobre los miembros de la primera promoción, en Control de Estudios de la FAU están unas «fichas docentes» con los datos de los primeros estudiantes de la Escuela de Arquitectura, entre ellos Goiri. Allí se registra que nació en Begoña, Vizcaya, el 16 de abril de 1918, hijo de Santiago Goiri y Raquel Beltrán de Goiri (ver anexo). Hasta hace poco, sus datos también aparecían en la web del CNE.
Finalmente encontré un dato curioso hurgando en el Archivo Histórico de la UCV: Goiri fue el único de los estudiantes (aparentemente eran 70) inscritos en la primera -y malograda- cohorte de la carrera de arquitectura de la UCV en 1941 (cuando se creó la Escuela, y que solo cursó el primer año por haber reprobado los cursos o desertado hacia ingeniería la mayoría de sus integrantes) que volvió a inscribirse para la siguiente cohorte de 1944. Según el registro del último año que pude consultar, de ese grupo (apenas quedaron 27), sólo uno terminó estudiando y graduado en arquitectura en Colombia: Miguel Casas Armengol, luego profesor fundador de la carrera en La Universidad del Zulia. Tengo entendido que José Ignacio Sánchez Carneiro, antiguo profesor de la FAU, también formaba parte de esa cohorte «fantasma», y terminó haciendo estudios en Bélgica.

Hasta el momento solo he podido identificar 14 proyectos de Goiri en los permisos de las Ingenierías Municipales de Caracas, casi todos para quintas, que les anexo.
He tratado de documentar el desempeño profesional de la llamada primera promoción de arquitectos de la UCV de 1948. En 2016 asigné ese trabajo a unos estudiantes de arquitectura de la USB. Sin embargo, nadie se ocupó de Goiri en ese momento.
Saludos.
Orlando Marín

P.D.: Olvidaba comentarles que hay otro dato importante sobre Goiri: Encontré que hizo un curso sobre arquitectura de aeropuertos en USA en 1949 (razón por la cual debió recibir el título antes que sus compañeros… (ver mini-biografía publicada en 1953 en anexo).
También se integró tempranamente al cuerpo docente de la UCV, donde dictó los cursos «Introducción y Elementos de la Arquitectura» y «Dibujo lineal», y en 1957 llegó a ocupar la Dirección de la Escuela (dato que aparece registrado en el libro Facultad de Arquitectura y Urbanismo UCV 1953-2003. Aportes para una memoria y cuenta, de 2007).
Le acabo de escribir a un Santiago Goiri, venezolano con negocios en Panamá, que parece ser hijo (o nieto) del arquitecto.
Saludos!
OM

Nota
Como información adicional a la aportada por Orlando Marín vale la pena recordar que Santiago Goiri formó parte junto a Jorge Romero Gutiérrez, Guido Bermúdez, Diego Carbonell y Ernesto Fuenmayor del Comité Directivo de la revista Integral en representación de la Sociedad Venezolana de Arquitectos, que apareció en los créditos de su nº 1 de septiembre de 1955. También participó en el Concurso Nacional de Arquitectura que en 1962 se convocó para diseñar el pabellón que representaría a Venezuela en la Feria Mundial de Nueva York, ampliamente reseñado en la revista SVA nº 7 de agosto-septiembre, 1962.
ACA
Procedencia de las imágenes
Señaladas en las leyendas de cada foto
VALE LA PENA LEER
Modernidad y meritocracia
In Defense of Talent
Luis Fernández-Galiano

27/10/2021
Tomado de arquitecturaviva.com
El término ‘meritocracia’ fue acuñado en 1958 por el sociólogo británico Michael Young, en un libro que ya entonces presentaba el concepto bajo una luz oscura, The Rise of Meritocracy, donde advertía del riesgo de la creación de una nueva casta basada en la educación y el talento. Este debate se ha avivado en fechas recientes con dos obras de eminentes profesores, Daniel Markovits de Yale (The Meritocracy Trap, 2019) y Michael Sandel de Harvard (The Tyranny of Merit, 2020). El primero de ellos resumía su tesis en portada —‘Cómo el mito fundacional americano alimenta la desigualdad, desmantela la clase media y devora a la élite’—, argumentaba que «el mérito no es sino una impostura» y censuraba la transmisión hereditaria del privilegio a través de la educación elitista; y para el segundo —Premio Princesa de Asturias, y traducido ya al castellano— la meritocracia es tóxica, divide la sociedad en ganadores y perdedores, generando tanta altanería como resentimiento, y debe combatirse poniendo énfasis en lo comunitario. Frente a esta demolición intelectual de la movilidad social a través de la formación y el esfuerzo —sobre la que esta revista se pronunció en marzo con ‘Menosprecio del mérito’— se ha alzado en 2021 Adrian Wooldridge con The Aristocracy of Talent, una sólidamente argumentada defensa de la meritocracia, «lo más próximo que tenemos a una ideología universal».
Doctor en Historia por Oxford y ‘political editor’ del Economist, Wooldridge aborda aquí «la idea revolucionaria de la meritocracia», inseparable de una modernidad que pone en cuestión la hermética estratificación social del Antiguo Régimen, donde cada cargo o trabajo estaba asociado a la posición que otorga el nacimiento. Cuando muchas de las ideas que han modelado las sociedades occidentales durante los últimos siglos están en crisis —«la democracia retrocede, el liberalismo pugna por mantenerse, y el capitalismo ha perdido el brillo»—, la meritocracia es popular en todo el mundo porque afirma la capacidad de llegar tan lejos como permita el talento de cada uno, asegura la igualdad de oportunidades a través de la educación, prohíbe la discriminación por raza o sexo, y selecciona evitando el patronazgo o el clientelismo. El tránsito de la ética aristocrática a la ética meritocrática supone una auténtica revolución moral, y este es un argumento en defensa del mérito más poderoso aun que su evidente vinculación con el crecimiento económico y la prosperidad. En su desarrollo histórico, los socialistas del siglo XIX apoyaron la idea como un vehículo hacia una sociedad mejor, mientras los conservadores la veían como una amenaza al orden social, pero tras la II Guerra Mundial la meritocracia alcanzó en Occidente una aceptación unánime, solo agrietada en las últimas décadas por la censura de la izquierda radical, que le reprocha haberse convertido en una plutocracia, y de la derecha populista, que rechaza el cosmopolitismo displicente de las ‘élites cognitivas’.
La aristocracia del talento es desde luego un oxímoron, y al autor no se le escapa que la meritocracia está hoy en el taller de reparaciones, porque se ha hecho hereditaria y el ascensor social está averiado. Wooldridge propone regenerarla volviendo a dar una dimensión moral a la educación de las élites y otorgando estatus a la formación profesional, para evitar el egoísmo arrogante de los unos y el rencor iracundo de los otros. Acepta el fundamento sociológico de las críticas de Markovits o Sandel, pero también polemiza con John Rawls cuando el filósofo asegura que es injusto recompensar a los que tuvieron la fortuna de nacer mejor dotados, porque «hasta el joven Mozart tenía que practicar». Es esa ética del esfuerzo la que ve afianzarse en Asia, y muy especialmente en China, fiel a su tradición confuciana, y que ha extendido la meritocracia del ámbito de la educación al de la política. Y aunque muestra distancia frente a la modernidad autoritaria de la superpotencia asiática, también expresa preocupación porque en Occidente avance la democracia refrendaria, que adopta decisiones de gran calado con mayorías escuetas y sin suficiente debate informado. Ante el desafío de China por el liderazgo global, Wooldridge cree que Occidente solo puede competir con ella templando la democracia con el conocimiento de los expertos, y regenerando una meritocracia genuinamente liberal que conjure el peligro detectado por Young hace seis décadas.

The Aristocracy of Talent
How Meritocracy Made the Modern World
Adrian Wooldridge
Editorial Allen Lane
2021
Idioma: inglés
Nota de los editores
En The Aristocracy of Talent, el estimado periodista e historiador Adrian Wooldridge traza la historia de la meritocracia forjada por los políticos y funcionarios que introdujeron el principio revolucionario de la competencia abierta, los psicólogos que idearon métodos para medir las habilidades mentales naturales y los educadores que construyeron escaleras de oportunidad educativa. Mira más allá de las culturas occidentales y muestra los efectos transformadores que ha tenido en todos los lugares donde se ha adoptado, especialmente una vez que las mujeres ingresaron al sistema meritocrático.
Wooldridge también muestra cómo la meritocracia ahora se ha corrompido y argumenta que el reciente estancamiento de la movilidad social es el resultado del fracaso para completar la revolución meritocrática. En lugar de abandonar la meritocracia, dice, deberíamos pedir su renovación.
ACA
HA SIDO NOTICIA

La Fundación Arquitectura y Ciudad se complace en hacerles llegar este número 250 de nuestro Contacto semanal.
Es para nosotros una enorme satisfacción poder comunicarnos con ustedes a través de esta vía. Largo camino se ha transitado desde aquel domingo 30 de octubre de 2016 donde se compartió esta publicación por primer vez, hasta la fecha de hoy.
El apoyo favorable recibido de ustedes, el intercambio de información producido y sus comentarios, constituyen los motivos que nos llevan a continuar en este muy satisfactorio proyecto para nosotros.
Esperamos poder seguir poniendo en sus manos nuestra información por mucho tiempo más.
Gracias, muchas gracias.
Henrique Vera Hernández
Presidente de la Fundación Arquitectura y Ciudad