Archivo de la etiqueta: Hotel Maracay
ALGO MÁS SOBRE LA POSTAL nº 63

La Red Hotelera Nacional y en particular los edificios que fueron gestionados directamente por la CONAHOTU brinda, como ya habíamos adelantado en otra entrega (ver Contacto FAC, nº 25, 30-04-2017), la oportunidad de apreciar el estado de la arquitectura venezolana del momento en toda su amplitud, es decir, permite palpar el conjunto de los visos que ofrece su variada identidad. De aquí que las fuentes a ser interpretadas por los proyectistas de esas obras provengan tanto de lo tradicional o lo popular como de las corrientes dominantes en el ámbito internacional. Lo interesante es que se produjo casi siempre una traducción más que un simple traslado donde la oportunidad ofrecida por la temática, en lo que de recreo y ocio contiene, hizo que la mitigación de las condiciones climáticas enfrentada desde el funcionalismo se convirtiera en excusa para incluir recursos que imprimieran carácter a la experiencia.

De entre los hoteles que se nutrieron con mayor claridad de lo que se estaba haciendo más allá de las fronteras nacionales, destacaremos en esta oportunidad el hotel Maracay (1955-57) de Luis Malaussena (Caracas,1900-Miami,1962), cuyo aviso aparecido en la contraportada del nº 1 de la revista Punto de 1961, delata que nos encontramos ante una instalación que se encontraba en pleno funcionamiento y promocionaba una de sus fortalezas: la diversidad de salones con los que contaba y su teatro ofrecidos como espacios para la celebración de reuniones, congresos, convenciones y actos sociales.
Maracay, capital del estado Aragua, durante la época de Gómez (quien, como se sabe, había fijado allí su residencia) se había convertido en el eje de la incipiente actividad turística que se comenzaba a desarrollar en el país impulsada fundamentalmente por el Estado. Allí se construyeron el primer hotel Maracay en 1919 y el Hotel Jardín en 1929. Este último, proyectado por Carlos Raúl Villanueva recién llegado de París, considerado por Ciro Caraballo como la «joya de la corona de la hotelería gomecista», lección de lo que debe ser el comportamiento de una instalación de este tipo en el trópico y del respeto por el trazado original de la ciudad, se mantuvo en funcionamiento prácticamente hasta finales de la década de los 50 del siglo XX, sufriendo en el intervalo importantes modificaciones tendientes a su modernización, que lo llevaron en 1939 a tener hasta 115 habitaciones. En 1952 se plantea para este hotel una nueva actualización y ampliación, pero al año siguiente se toma la decisión, desde la recién creada Dirección de Turismo del Ministerio de Fomento, de construir una nueva y moderna instalación adaptada a las exigencias del turismo internacional.
Es al arquitecto que proyecta el “nuevo” hotel Maracay que se inaugura en 1957, Luis Malaussena, al que también se se encargó la remodelación del Hotel Jardín para convertirlo en la sede de la Gobernación del Estado, uso que conserva hasta ahora.

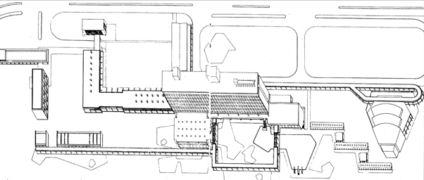
Así pues, el Maracay (1955-57) pasó a ocupar el último eslabón de una cadena que le otorgaba a esa ciudad un curioso privilegio dentro del desarrollo del turismo en el país. De allí que se pensara desde el principio en un hotel en grande para el cual se destinó un enorme terreno flanqueado por colinas ubicado en el sector Las Delicias de esa ciudad y se programaran 132 habitaciones, 25 suites, una suite presidencial, 6 salones de conferencias, 2 salones ejecutivos, un teatro, área para comercios, además de las áreas de servicios, sociales y recreativas contemplando estas últimas la piscina con sus áreas de apoyo, canchas de tenis, caballeriza y un campo de golf de 18 hoyos. Es decir, un establecimiento cinco estrellas por todo lo alto.

Para la época en que realizó el proyecto, Malaussena ya había contratado como colaboradores en su oficina a tres jóvenes arquitectos alemanes: Federico Beckoff, Klaus Heufer y J.P. Jebens (quienes participaron también en el diseño del hotel Guaicamacuto -posteriormente Macuto Sheraton- en el Litoral Central y del Círculo Militar en Caracas), quienes tuvieron mucho que ver con el cambio en los patrones lingüísticos que este hotel presenta dentro de su trayectoria caracterizados, como se sabe, por la impronta de la tradición académica. En efecto, el Maracay es resuelto dentro del privilegiado lugar que se le asignó, con el atractivo de ser un hotel citadino con las ventajas suburbanas que ofrecía el poder practicar el golf y los deportes ecuestres, basado en la tipología predominante en aquellos años que se complementaba con el uso de los códigos propios del Estilo Internacional.

Así, la articulación volumétrica entre un bloque compacto claramente rematado que pareciera estar suspendido sobre una base que se extiende con libertad sobre el terreno, gobierna una composición que además denota dos caracterizaciones totalmente diferentes: por un lado las pretensiones de estar a tono con lo internacionalmente correcto del cuerpo que contiene las habitaciones, a doble crujía con pasillo central, cuyas fachadas principales (norte-sur) han sido resueltas recurriéndose al muro cortina (curtain wall) y, por el otro, la frescura con que se amarran los volúmenes que conforman la base, donde se desarrollan con generosidad y proyección futura las áreas sociales, recreacionales y de servicio, a través de un sistema de variados elementos de circulación que, además de colaborar en la definición de diversas zonas dentro del conjunto, permiten apreciar las particulares condiciones ambientales del lugar.

Mimetismo cosmopolita, contundencia, pesadez y pureza volumétrica en la imagen institucional versus tropicalidad, ligereza y movimiento en el disfrute de los niveles inferiores son categorías útiles para resumir la doble lectura que el hotel Maracay ofrece, lectura que los murales nacionalistas de Pedro Centeno Vallenilla con que se decoran las áreas sociales, aunque nos ubican también en la época, no hacen sino confirmarla.

Resumiendo, podríamos decir que la caracterización del edificio y su adecuación al programa y al sitio, dos de los aspectos que la formación academicista de Malaussena exigía, se logran a cabalidad aún así sea mediante la asunción en parte de un complaciente lenguaje contemporáneo muy próximo, por otro lado, a la imagen que el país pretendía mostrar. El hotel Maracay, como muchos otros de los que administró la CONAHOTU, sufrió con el tiempo los embates de la desidia gubernamental, la cual se tradujo en mala administración, descuido e incapacidad para mantener unas instalaciones de primera que en cualquier parte del mundo serían un negocio sustentable. Su dramático deterioro derivó en su cierre temporal hasta que el año 2015 se firma un convenio con la cadena hotelera internacional Marriot, que ha permitido acometer su remodelación y rescate, albergándose la esperanza de que el ahora llamado «Hotel Golf Maracay» pueda abrir de nuevo sus puertas próximamente. Sin entrar en detalles sobre su discutible intervención, esperamos sinceramente que así sea.
ACA
Procedencia de las imágenes
Postal. Revista Punto, nº1, enero 1961
1. https://twitter.com/marketingmcy/status/1180453508010713088
2, 4 y 5. Lasala S.; Malaussena. Arquitectura académica en la Venezuela moderna, 1990
1957• Se inaugura el hotel Maracay

1957• El 27 de abril el General Marcos Pérez Jiménez inaugura el hotel Maracay, ubicado en la Av. Las Delicias, al sur del sector Cantarrana, Maracay, Estado Aragua, diseñado por Luis Malaussena en 1955, con la colaboración de los jóvenes arquitectos alemanes Federico Beckhoff, Klaus Heufer y Klaus Peter Jebens. En la fecha de su apertura el hotel, construido en un lote de terreno de 20.000 metros cuadrados, tenía 132 habitaciones, 25 suites, una suite presidencial, 6 salas de conferencia, 2 salones ejecutivos, un teatro, un área comercial, servicios recreativos y sociales, piscina, cancha de tenis, caballeriza y un campo de golf de 18 hoyos. Las áreas sociales del hotel tienen murales de artista venezolano Pedro Centeno Vallenilla.
HVH