Archivos diarios: 9 de julio, 2017
LA NOTICIA DE LA SEMANA
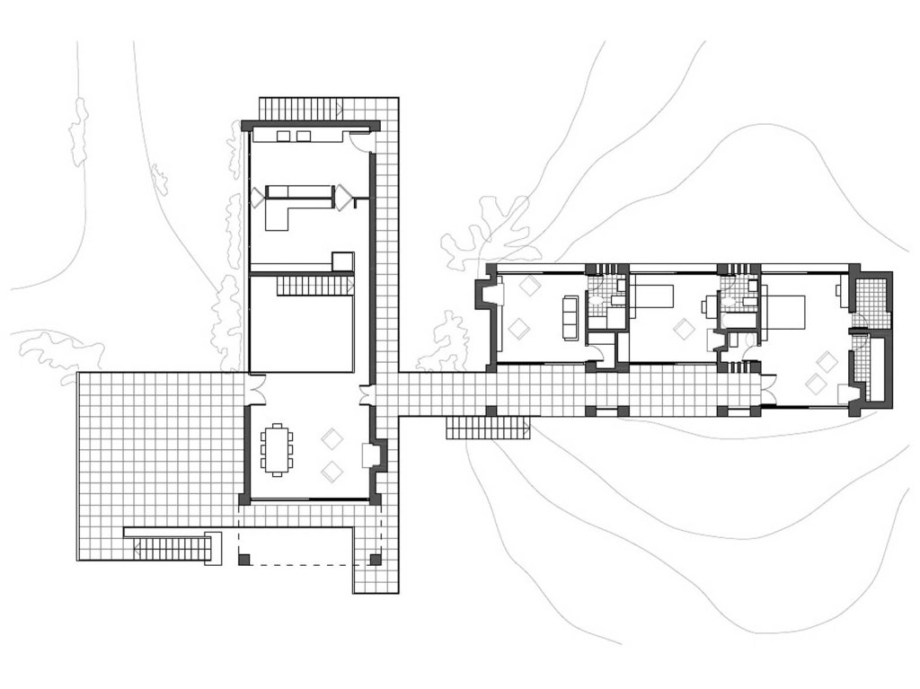
Tres obras de Eladio Dieste son declaradas monumentos históricos en Uruguay
Nicolás Valencia

Tomado de Plataforma Arquitectura
30 de junio 2017
A 100 años de su nacimiento, tres obras diseñadas por Eladio Dieste han sido declaradas Monumentos Históricos por el Ministerio de Educación y Cultura de Uruguay este 29 de junio. Los proyectos se ubican en el departamento de Maldonado y ahora respaldará la postulación uruguaya del ‘Sistema constructivo de cerámica armada” para la Lista del Patrimonio Mundial de la UNESCO.


Las obras seleccionadas son la Casa Berlingieri (Punta Ballena, 1947), el Centro Deportivo Municipal Carolino (San Carlos, 1968) y la Torre de Telecomunicaciones (Maldonado, 1986). En todas ellas, el uruguayo persiguió la máxima expresión arquitectónica a través de la estructura y el uso del ladrillo con sus bóvedas de doble curvatura.




En la Casa Berlingieri, Dieste fue calculista y diseñador estructural del proyecto del catalán Antonio Bonet. Según explica la Comisión del Patrimonio Cultural de la Nación, «la imagen ondulante dominada por la presencia de las bóvedas de cubierta es el antecedente más significativo de las posteriores obras resueltas con bóvedas de doble curvatura”. En el caso del Centro Deportivo Municipal Carolino, la comisión destaca el encofrado móvil utilizado por Dieste, postulando que es «una muestra acabada de la calidad artesanal de nuestros operarios». Mientras en la Torre de Telecomunicaciones destaca que su «forma y esbeltez constituyen un caso emblemático del sistema constructivo de cerámica armada ideado» por el arquitecto fallecido en 2000 en su Uruguay natal.
ACA
Procedencia de las imágenes
1. https://arqtemple.blogspot.com/2017/10/casa-berlingieri-planos-planta-baja-la.html
Contacto FAC 35
¿SABÍA USTED…
… que en 1967, hace ya 50 años, se concluye el proyecto para la ampliación del hotel Tamanaco, realizado por Américo Faillace, Nelson Douahi, Manuel Corao y Manuel Fuentes Madriz?

La construcción del hotel Tamanaco se constituyó para la Caracas de la década de 1950 en una de las más importantes señales de que el espíritu modernizador se estaba apoderando de la ciudad. Son varias las razones que llevan a otorgarle a este edificio un indudable valor referencial. La primera es que se convierte en puntal de la política impulsada desde 1946 por el Ministerio de Fomento por darle prioridad a la actividad turística en el país. El Tamanaco, primera instalación hotelera de gran envergadura que se realiza en una ciudad movida por el auge de la construcción proveniente de la renta petrolera, desplaza de este sitial al hotel Ávila; también Las Mercedes hace otro tanto con San Bernardino como la urbanización hacia la cual se dirige la mayor demanda de servicios comerciales y residenciales para quienes trabajan administrativamente en el negocio de los hidrocarburos. La segunda razón tiene que ver con su localización: una pequeña colina ubicada como remate visual de la avenida principal de Las Mercedes, desde la cual no sólo era posible apreciar la casi totalidad del valle de Caracas sino que, además, le permitía al hotel ser visto desde diferentes puntos de la ciudad, circunstancia que lo convirtió casi de inmediato, gracias a la acertada respuesta dada por sus proyectistas, en ícono arquitectónico y carta de presentación ante el mundo de que el país poseía una infraestructura de primera.

Vale la pena recordar, también, que el Tamanaco es, dentro del proceso de planificación y desarrollo de la urbanización Las Mercedes (“la urbanización más grande y mejor planeada de toda América Latina”), llevado adelante por la compañía constructora Venezolana de Inversiones C.A. (VICA), una de las piezas fundamentales que sirvió para promover la venta de parcelas en una zona entonces alejada e incomunicada con el resto de la ciudad. En tal sentido, VICA, creada en 1943 por la asociación de la familia Eraso (propietaria de las haciendas Las Mercedes y Valle Arriba) con el ingeniero civil mexicano Gustavo San Román, incorporará al trazado de Las Mercedes y en particular de su avenida principal elementos novedosos para la época: dos bombas de gasolina (una al comienzo y otra al final), un centro comercial que refuerza el inicio (con el segundo automercado abierto en Venezuela por la International Basic Economy Corporation -IBEC-) y un hotel que la remata (el Tamanaco). El visionario y emprendedor San Román por su parte se convertirá en el principal promotor del hotel y VICA aportará buena parte del capital para su construcción.
Dentro del proceso de planificación del Tamanaco se registra en 1946 la creación de la empresa operadora Intercontinental Hotels Corporation, subsidiaria de Panamerican Airways para facilitar el alojamiento en las ciudades de Latinoamérica servidas por la línea aérea desde los Estados Unidos y que se comprometerá, además, a promover la realización de por lo menos tres hoteles de la misma magnitud en Puerto La Cruz, Margarita y Ciudad Bolívar. Posteriormente en 1948 se crea la C.A. Tamanaco empresa de capital mixto que será la responsable de iniciar las obras en 1950.
Inaugurado en 1953, el Tamanaco fue diseñado por el reconocido profesional venezolano Gustavo Guinand van der Valls en colaboración con Holabird, Root & Burgee, firma de arquitectura de Chicago que desarrolló numerosos proyectos de hoteles en América Latina para la cadena Intercontinental. Guinand por su parte ya había proyectado y construido para la fecha el cine Lido -hoy demolido- (1946), el edificio Galipán -hoy demolido- (1950) y el edificio Easo (1952), todos ubicados en la avenida Francisco de Miranda al este de Caracas.

Su planta original en forma de «V», abierta hacia el Ávila, responde a una tipología bastante difundida para instalaciones de este tipo, la cual se adapta aprovechando eficientemente la pendiente del terreno. Cuenta con 12 niveles, que reducen su superficie de forma escalonada a medida que se asciende, lo cual le otorga su aspecto característico y permite reconocer las suites en los extremos. En los niveles inferiores se desarrollan espaciosas áreas sociales, recreacionales y de servicios, entre las que destaca la piscina, que por su ubicación se convirtió durante años en el verdadero corazón del hotel. El edificio se proyectó originalmente con capacidad para 400 habitaciones y 42 suites cuyas dimensiones demostraron muy temprano no ser las más acordes para los estándares que poco a poco se fueron imponiendo a nivel internacional, lo cual llevó a sus propietarios ya en 1959 a pensar que era necesario ampliarlo y acondicionarlo.

Tras 14 años de funcionamiento y posicionado como el más importante hotel de la capital, se culmina el proyecto elaborado por Américo Faillace, Nelson Douahi, Manuel Fuentes Madriz y Manuel Corao que le permitirán al Tamanaco Intercontinental actualizar sus instalaciones elevándolas a los más altos estándares internacionales que ya había alcanzado desde su apertura. Para ello se incorporaron a su programa original otras 200 habitaciones y 28 suites (adaptadas a las dimensiones que exigía la norma hotelera vigente en Venezuela), ubicadas hacia el sur en un ala que terminó modificando la planta original en “V” del cuerpo principal por otra en forma de «Y» que hoy lo identifica. Esta intervención, cuya construcción se inició en 1968 luego de su adecuación a las normas sísmicas que se originaron a raíz del terremoto de 1967, discutible en cuanto a la forma como dialoga y asimila el carácter propio de la imagen original “posterior” del edificio (hasta el punto de modificar también la orgánica marquesina que definía la entrada) no afecta, sin embargo, la emblemática fachada que se abre sobre el valle de Caracas. Luego, en 1970, formando parte también del proyecto de Faillace, Douhani, Fuentes Madriz y Corao, volcadas más hacia el este, aprovechando las vistas y buscando una mejor solución de continuidad con lo existente mediante su adaptación a la topografía, se culminarán las complejas obras que permitirán el aumento significativo de las áreas sociales del hotel, pasando a recuperar el esplendor que alcanzó en los años 50 y 60 como lugar de entretenimiento y buen comer para toda la ciudad.

Posteriormente, en 1981, se le encargó a Carlos Gómez de Llarena el proyecto de ampliación de las suites ubicadas a los extremos de la edificación, trabajo que fue realizado teniéndose el cuidado de no alterar la lectura volumétrica de la obra original y de asimilar para su resolución formal el lenguaje preexistente mediante el uso de los elementos fundamentales que lo conforman.
Actualmente, habiendo dejado de pertenecer a la cadena Intercontinental, sus nuevos propietarios han decidido desarrollar una nueva y ambiciosa ampliación signada por un plan maestro que prevé la incorporación de diversos usos así como su construcción por etapas. Ello le permitirá al Tamanaco, convertido en complejo, actualizarse una vez más haciéndolo más sostenible ajustándose a los tiempos que vivimos. El hotel original ante la magnitud de la obra que se propone mantendrá su condición icónica ante la ciudad, preservándose su valor patrimonial y su fotogénica estampa plasmada a través del tiempo en inolvidables postales y estampillas. Ahora bien, si buscamos reconocer su silueta aislada recortada sobre el verde paisaje que lo rodeaba habrá que aceptar que ya hace años se perdió.
ACA
Procedencia de las imágenes
2. https://www.pinterest.com/pin/525654587742285545/visual-search/
3. https://www.ccscity450.com/obra/hotel-tamanaco/
4. Colección Crono Arquitectura Venezuela
5. CT_Presentacion__inglés_HIC-TAMANACO HISTÓRICO_Comprimido.pptx, cortesía del arquitecto Álvaro Rodríguez
ALGO MÁS SOBRE LA POSTAL nº 70

En 1897 la empresa Litografía y Tipografía del Comercio, publica el plano de “Caracas y situación de las parroquias foráneas”, realizado por el arquitecto e ingeniero Ricardo Razetti.
Razetti, graduado en la Universidad Central de Venezuela en 1887, realizó más de 10 planos de Caracas entre 1897 y 1929, registrando en hermosos y detallados documentos gráficos el crecimiento y evolución de la ciudad. Tal y como señalan Iván González Viso y Federico Vegas en el ensayo introductorio del libro Caracas del valle al mar. Guía de arquitectura y paisaje titulado “Historia de Caracas a través de sus planos”, con sus dibujos “Razetti no solo representa lo que existe, también participa construyendo, urbanizando e introduciendo cambios en las ordenanzas recopiladas en las Leyes de Indias que habían mantenido su vigencia desde la Colonia”.
Esta lámina, de 50 x 40,5 cm., primera de la serie elaborada por Razetti, muestra por primera vez a la ciudad dibujada en dos escalas: en su contexto geográfico inmediato, tal y como se venía representando históricamente, mediante un plano a escala 1:10.000; y en un contexto más amplio, en la parte inferior derecha, a escala 1:200.000, a través de un mapa, que representa territorialmente la relación entre el denominado “Distrito Federal” y las “parroquias foráneas”.
Esta doble representación, de plano y mapa, no solo permite ver a la ciudad en si misma, sino contrastar su dimensión en relación a su área de influencia circundante, la distancia en relación al mar y a los pueblos de la periferia como Antímano, Macarao y Petare. Así mismo, evidencia sus accidentes geográficos, ríos, y vías de comunicación con las áreas que posteriormente pasaron a formar parte del área metropolitana de Caracas.
Razetti muestra a la capital como una ciudad próspera, incorporando perimetralmente en la composición del documento los principales comercios, dando también cuenta de una amplia y diversificada oferta de especialidades y servicios, lo que indica que seguramente mediante estos avisos se financió la ejecución e impresión del plano. Cabe destacar que cada anuncio publicitario (aparecen 158 locales organizados en 48 tipos de comercio) tiene su dirección física relacionada a la nomenclatura de calles que sigue el método de Cristóbal Rojas (norte, sur, este y oeste según parten en esa orientación desde la Plaza Bolívar), con numeración ascendente siguiendo los puntos cardinales, dejando los nombres de las esquinas en el plano como referencia de localización.
Pudiéramos asegurar que este plano, además, posee las cualidades de un plano turístico, por el énfasis que pone en explicar detalles de interés para el visitante de la ciudad. Se incluyen detalladamente los principales medios de transporte disponibles: ferrocarriles y trenes (que salen o llegan a Caracas hacia o desde Valencia, La Guaira, Petare, El Valle o El Cementerio), tranvías (señalando, líneas, estaciones y rumbo), y coches (de número y de lujo), acotando los puntos de embarque, itinerarios, precios y forma de adquirir los billetes. Así mismo, señala los sistemas disponibles para la transmisión de mensajes como el correo, telégrafo, cablegrama, y sus tarifas. Y, finalmente, se enumeran las jefaturas civiles, hospitales, cuarteles, templos, cementerios y estanques, así como espacios públicos, teatros, puentes y monumentos que incluyen unas 60 edificaciones notables y más de 20 espacios presentados como “Paseos”, calificativo que Razetti seguramente asociaba a una especie de red de espacios públicos y no a lugares aislados.
En su condición de ingeniero, Razetti acusa por primera vez en este plano topográfico el dibujo de las curvas de nivel, que van desde la cota 880 msnm., a la altura del río Guaire; hasta la cota 1.040 msnm., cercana al camino hacia la Guaira. Ello da cuenta de que Caracas crece sobre una superficie con una ligera pendiente en sentido de oeste a este, que salva una diferencia más pronunciada de 160 metros entre sus extremos norte (el Ávila) y sur (río Guaire).
La planta de algunos edificios comienza a dibujarse en el plano (el Capitolio, el Hospital Vargas, el Teatro Nacional) y de igual forma las infraestructuras urbanas, tales como los puentes, se representan evidenciando su sistema constructivo con una adecuada escala y longitud. Gracias a ello es posible ver como la ciudad se extiende mas allá de los límites geográficos mas inmediatos, traspasando las fronteras de la quebrada Anauco prolongando un brazo al este, (avenida Este 0) hacia la estación Santa Rosa del Ferrocarril Central, a través de puente Anauco; y hacia el sur por medio de nuevos dispositivos que salvan el río Guaire, (Puente Hierro, Puente Sucre y Puente Paraíso). Estos puentes permitirán, por un lado, el desarrollo del Ferrocarril de Sur hasta El Valle (Puente Hierro) y por el otro se enlazarán a la avenida Paraíso, permitiendo el surgimiento de la urbanización del mismo nombre y su conexión a la estación Palo Grande del Ferrocarril Venezuela. Allí ya se observa, aislada, la primera “Villa” (Villa Trina), que instaura un nuevo modelo arquitectónico y urbano, abandonando el damero como sistema de expansión. La extensión de la ciudad por medio de puentes que interconectan las estaciones ferroviarias, permite presumir que su crecimiento estuvo íntimamente relacionado al interés de extender el sistema conformado por el Tranvía Bolívar y el Tranvía Caracas que posteriormente estarían a cargo de la Compañía Tranvías Eléctricos de Caracas.
Este plano es quizás la primera evidencia de la aparición de nuevos modelos urbanos definitivamente opuestos al modelo colonial, fenómeno que dejará de lado progresivamente el sistema de cuadras, calles, plazas y patios, con o sin variantes.
IGV
Procedencia de las imágenes
Postal. González Viso I.; Peña M.I.; Vegas F. Caracas del Valle al mar. Guía de arquitectura y paisaje, 2015
NotiFAC (Contacto nº 35)

La Fundación Arquitectura y Ciudad (FAC) y Ediciones Facultad de Arquitectura y Urbanismo de la Universidad Central de Venezuela (Ediciones FAU UCV) llaman a participar a autores de cualquier parte del mundo en el
CONCURSO DE ENSAYOS
CARACAS
1567-2017
Caracas al llegar a su 450 aniversario luce agotada, descuidada, olvidada, deteriorada, desarticulada y agredida, y a la vez preservada por su inmejorable clima, su inigualable paisaje y el calor de su gente. Por ende, ofrece la oportunidad única de mirarla sin dejar de pensarla, sentirla, mimarla, reivindicarla, desearla, soñarla, recordarla, imaginarla, proyectarla…
El concurso de ensayos Caracas 1567-2017 se convoca con la intención de dejar plasmadas las múltiples lecturas de que puede ser objeto esta ciudad que es eje de nuestros pensamientos, motivo de nuestras angustias y territorio de nuestros pesares, objeto de amor y de odio, siempre verde como la esperanza.
La convocatoria estará vigente desde el viernes 17 de febrero de 2017 hasta el jueves 31 de agosto de 2017.
Se otorgarán 2 premios en efectivo y tantas menciones como el jurado considere pertinentes. Para conocer las bases completas ir a www.edicionesfau.com
